**Standout Features:**
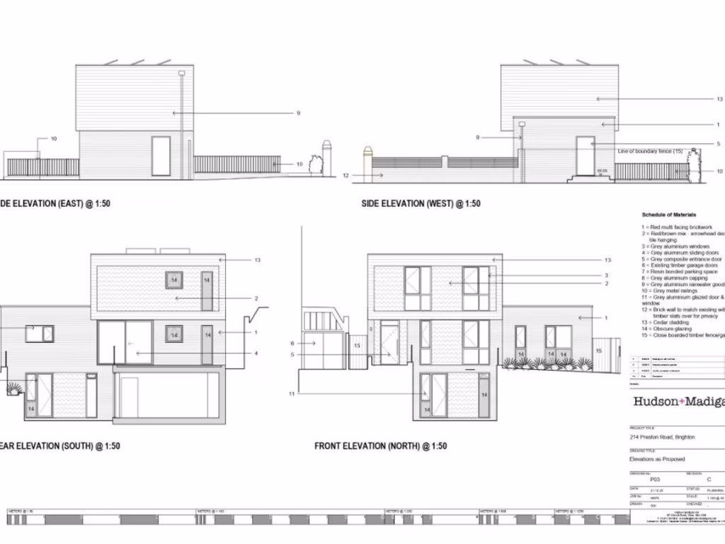
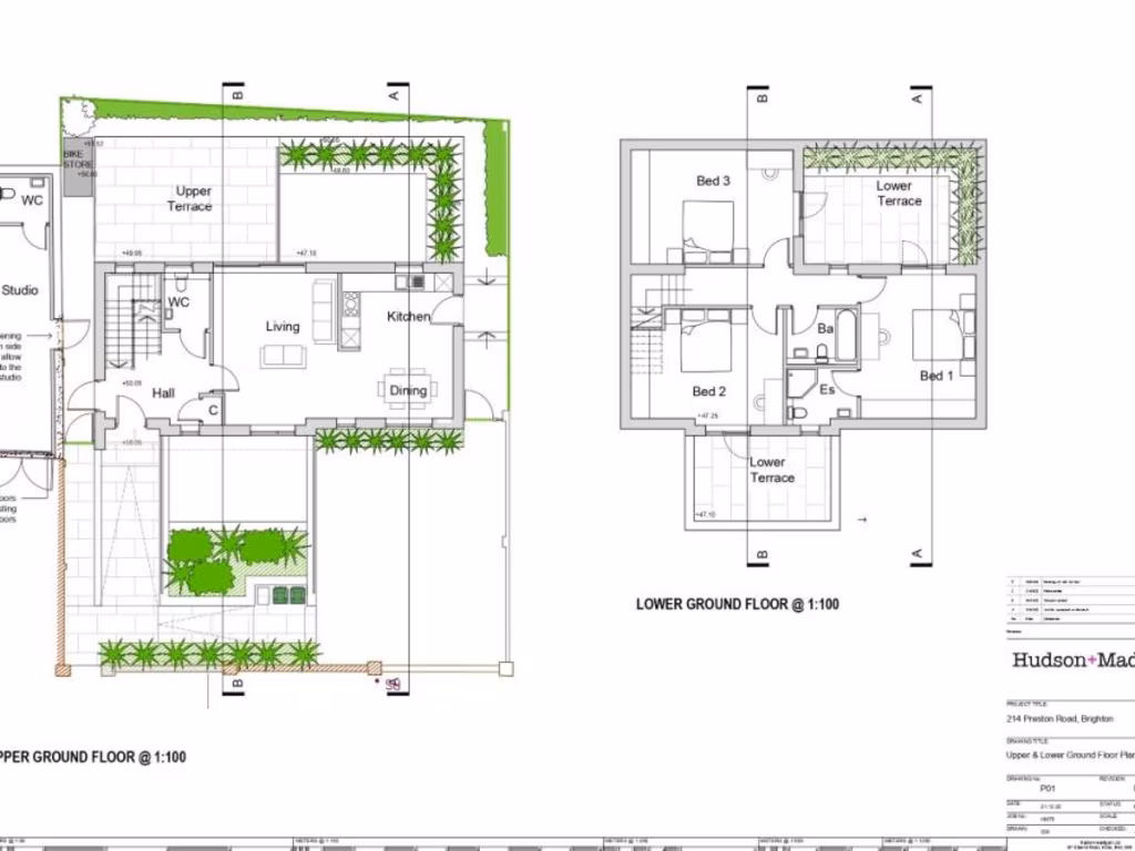
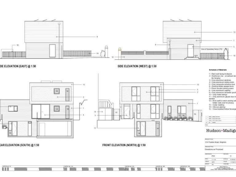
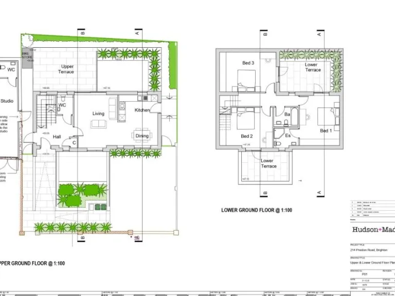
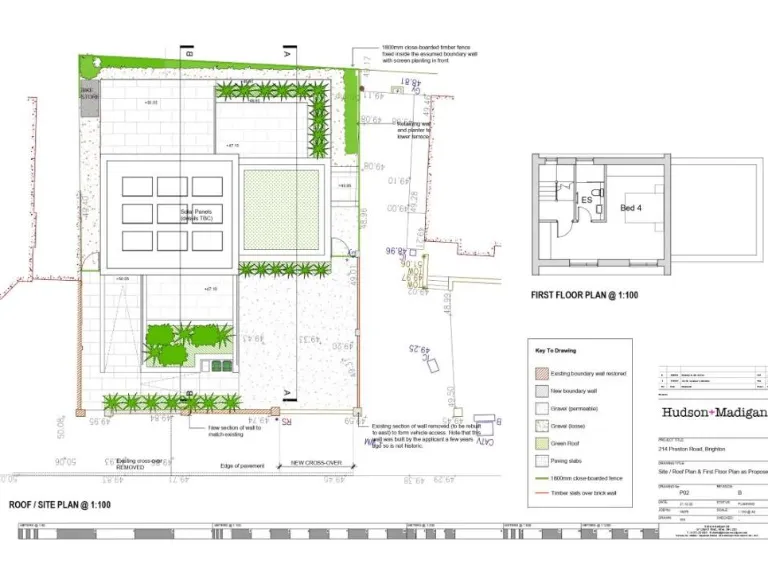
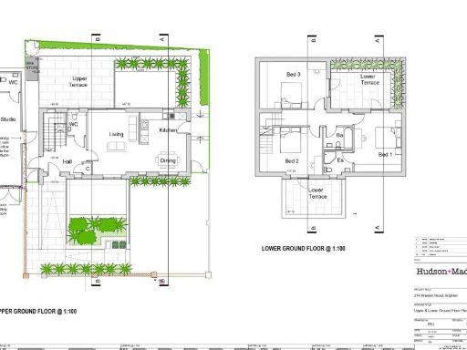
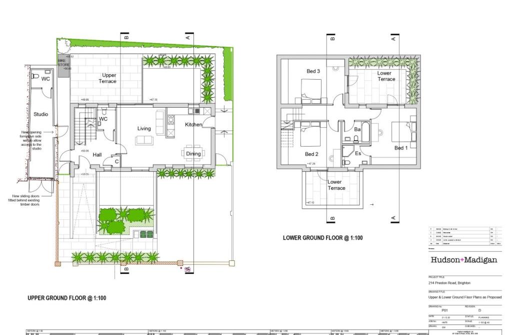
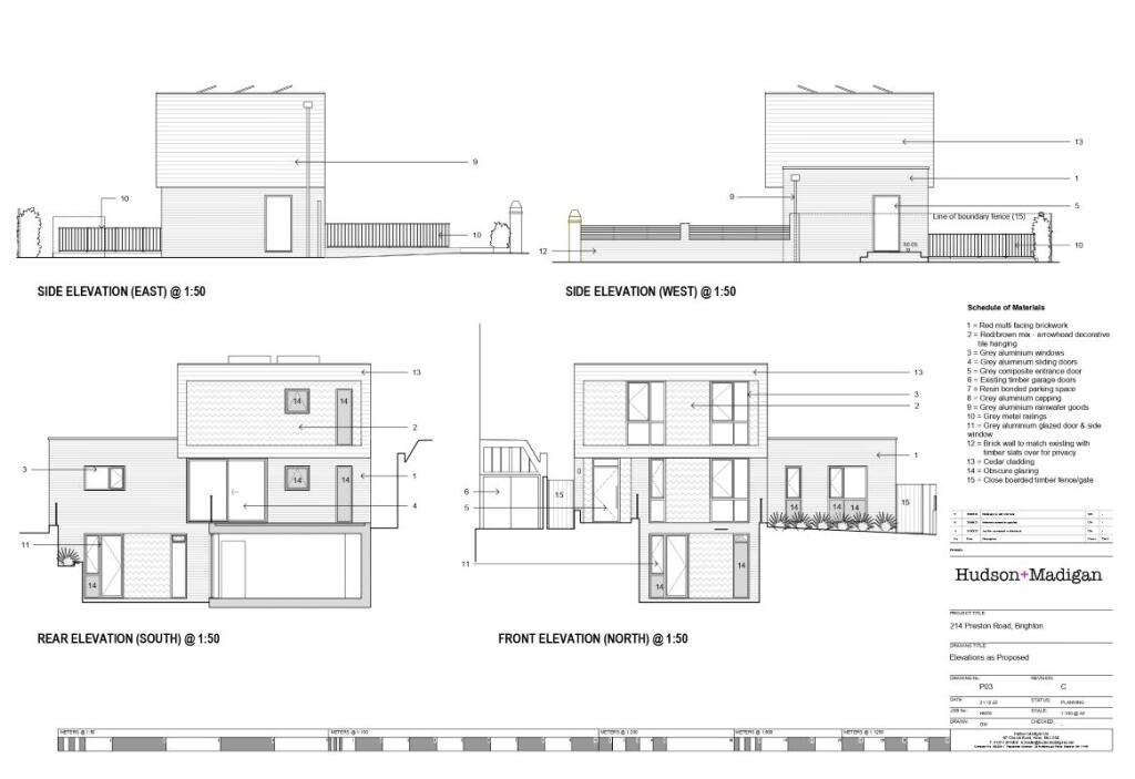
- Development site with planning permission for a three-storey, four-bedroom family home.
- Located in the desirable Preston Park area, only a 5-minute walk to the mainline station with direct routes to London.
- Comes with a single leasehold garage and a block of four freehold garages.
- Planning permission has been granted for a new dwelling (Planning No. BH2024/00673).
- Set within an affluent area, surrounded by reputable schools and amenities.
**Concise Summary:**
A unique opportunity to secure a development site in Brighton's sought-after Preston Park area, perfect for investors and home builders alike. This plot, featuring a single leasehold garage and a block of four freehold garages, has received planning permission to construct a spacious three-storey, four-bedroom family home, offering significant potential for capital growth. It's ideally situated just a short walk from Preston Park mainline station and close to the vibrant city center.
While the property's current condition may necessitate some renovations, the site boasts excellent connectivity and a variety of nearby amenities, making it a prime choice for those looking to create their ideal home in this desirable location. With planning permission already in place, this is an exciting chance to develop a dream family residence or investment property. Don't miss out on this exclusive offering—take action to secure your future today!
Land for sale in 186-187 Lewes Road, Brighton, BN2 3LD, BN2 — £500,000 • 1 bed • 1 bath
Garage for sale in Garage at 16, Florence Road, Brighton, BN1 6DJ, BN1 — £25,000 • 1 bed • 1 bath
Plot for sale in Middleton Rise, Brighton, BN1 — £110,000 • 1 bed • 1 bath • 2200 ft²
Plot for sale in Bevendean Road, Brighton - Potential Building Plot, BN2 — £150,000 • 1 bed • 1 bath
11 bedroom detached house for sale in 49, Florence Road, Brighton, East Sussex, BN1 6DL, BN1 — £950,000 • 11 bed • 1 bath • 2721 ft²
3 bedroom maisonette for sale in Davigdor Road, Hove, BN3 — £375,000 • 3 bed • 2 bath • 1200 ft²






































