**Standout Features:**
- Historic character property dating back to 1760
- Original features like fireplaces, beams, and a Victorian patio bay window
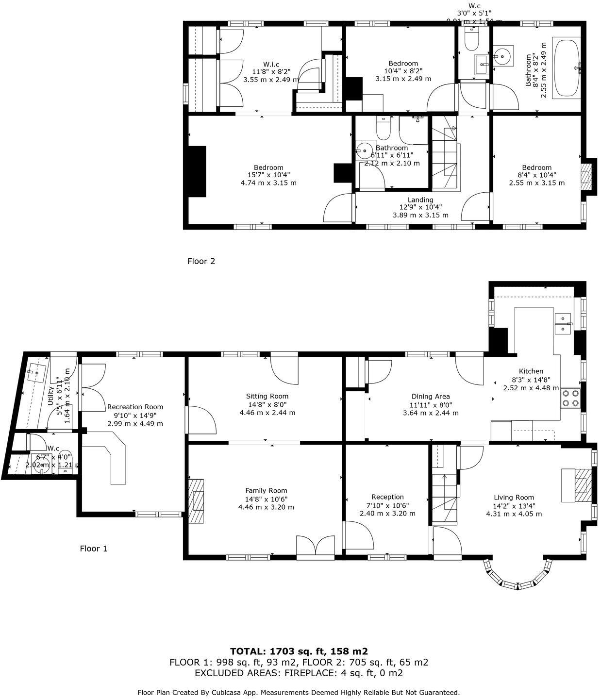
- Spacious interiors with over 1,700 sq ft of living space
- Expansive landscaped gardens and a separate secluded patio
- Versatile layout with potential for a self-contained annex (subject to planning permission)
- Double garage and parking for two cars
- Located in a picturesque village with essential amenities
This enchanting character cottage, rich with history, boasts original elements from its 1760 origins, including charming fireplaces and exposed wooden beams. With over 1,700 sq ft, this spacious detached home offers three double bedrooms, with the master suite featuring a generous dressing area and stunning views. Ideal for families or those seeking room to grow, the property includes flexible spaces perfect for creating a self-contained annex, enhancing its value for multigenerational living or a guest suite.
Set within beautifully landscaped gardens, the serene outdoor space invites you to unwind, with a secluded courtyard framed by climbing plants like stunning wisteria. Located just five miles east of Lewes, the community-centric village of Laughton provides access to local amenities such as a shop, tearoom, and pub, while also being close to the enchanting South Downs National Park.
While the property retains its charming character, it is worth noting some maintenance considerations: the double glazing is pre-2002, and the cavity walls assume no insulation. However, these elements present an excellent opportunity for future upgrades, enhancing comfort and efficiency. Don’t miss your chance to own this slice of countryside history; properties like this with such charm and potential don’t stay on the market for long.
3 bedroom detached house for sale in Church Lane, Laughton, BN8 — £900,000 • 3 bed • 2 bath • 2082 ft²
4 bedroom link detached house for sale in Church Lane, Laughton, Lewes, East Sussex, BN8 — £1,150,000 • 4 bed • 3 bath • 2950 ft²
5 bedroom detached house for sale in Shortgate Lane, Laughton, Lewes, East Sussex, BN8 — £1,650,000 • 5 bed • 3 bath • 3940 ft²
3 bedroom detached house for sale in East Hoathly, Lewes, East Sussex, BN8 — £645,000 • 3 bed • 2 bath • 1518 ft²
4 bedroom detached house for sale in Holmes Hill, Lewes, BN8 — £575,000 • 4 bed • 2 bath • 1187 ft²
3 bedroom semi-detached house for sale in Ham Lane, Ringmer, Lewes, BN8 — £575,000 • 3 bed • 2 bath • 1736 ft²


















































































