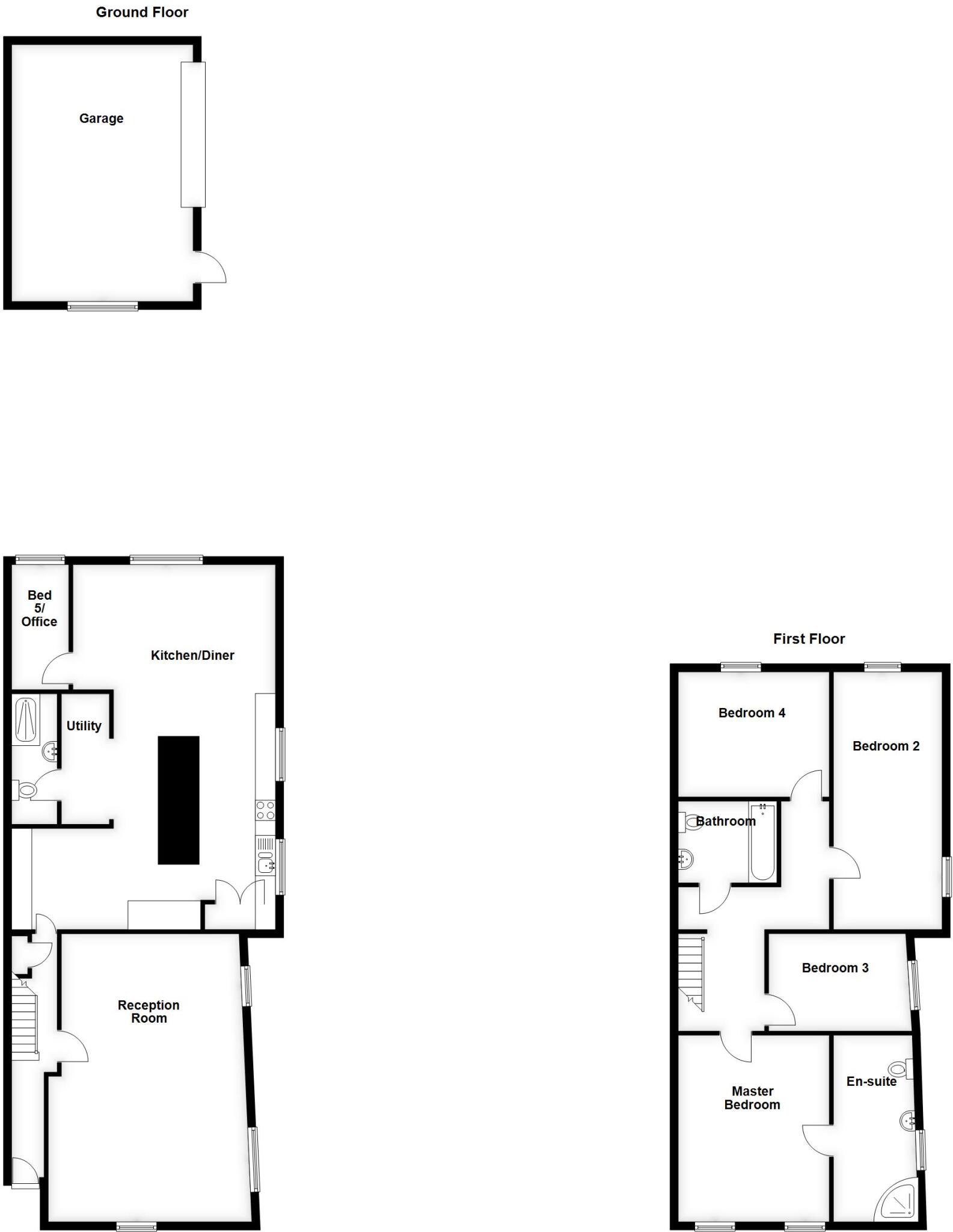
**Standout Features:**
- Versatile 4/5-bedroom end-of-terrace period house
- Three well-appointed bathrooms, including an en suite
- Immaculately presented with automated heating and NEFF kitchen appliances
- Off-road parking and a detached garage
- Well-kept, low-maintenance garden
- Chain-free with an average-sized living space of 1,927 sq ft
- Located in a family-friendly neighborhood with good local schools
Presenting an outstanding opportunity for families or investors, this stunning 4/5 bedroom end-of-terrace house occupies an enviable corner plot within a tranquil, residential enclave in Erith. Lovingly maintained, this property boasts an impressive open-plan kitchen diner, three modern bathrooms, and a spacious living room adorned with traditional features. The automated heating system and NEFF appliances add a touch of contemporary luxury, while the well-kept low-maintenance garden is perfect for gatherings or relaxation.
Despite being impeccably presented, potential buyers should note the property's solid brick walls with no insulation and the average council tax rate. Conveniently located near quality schools like St Fidelis Catholic Primary, and just a stone's throw from Bexley Borough’s amenities, this residence seamlessly combines community and comfort. Your chance to seize this exceptional property with no onward chain is now—schedule your viewing today to appreciate everything this home has to offer!























































































































