Contemporary family home with private garden, parking for three and en-suite.
Built approximately five years ago, modern fixtures and finishes
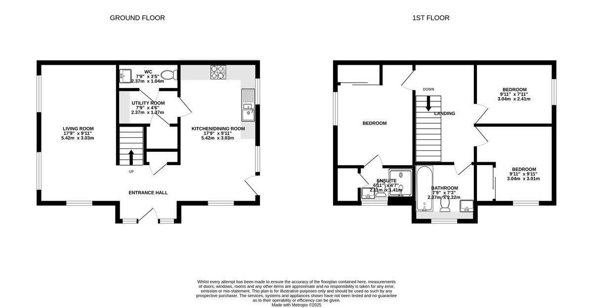
A modern three-bedroom semi-detached home built around five years ago, designed for comfortable family living on the edge of Inverness. The ground floor offers a large, light sitting room with triple windows and a stylish open kitchen/dining area with glossy grey units and glazed doors to the private garden. Practical additions include a utility space with laundry plumbing, a convenient downstairs WC and an en-suite to the master bedroom.
Outside, the low-maintenance landscaped garden combines paved, gravel and decked areas beneath a pergola, creating distinct outdoor zones for dining and play. Private off-street parking for up to three vehicles and on-roof solar panels add convenience and efficiency. The property benefits from PVC double glazing, gas central heating and an Alpha Flow hot water cylinder for reliable hot water and heating.
This home will suit young families or professionals seeking a move-in-ready house in a modern development close to Inverness. Note the property sits in an area classified as very deprived and council tax is above average — factors to weigh alongside the home’s practical layout and modern finish. Overall size is average at about 1,033 sq ft and the semi-detached layout means one shared wall.
Practicalities: freehold tenure, no flood risk, fast broadband and excellent mobile signal. EPC rating B (82) and early entry available for a quick move.
3 bedroom semi-detached house for sale in Ballimore Gardens, Inverness, IV2 7AS, IV2 — £235,000 • 3 bed • 2 bath • 947 ft²
3 bedroom semi-detached house for sale in Skye Court, Inverness, IV2 7BJ, IV2 — £265,000 • 3 bed • 3 bath • 1012 ft²
4 bedroom detached house for sale in Sullivan Street, Inverness, IV2 7BD, IV2 — £315,000 • 4 bed • 3 bath • 1141 ft²
3 bedroom semi-detached house for sale in Lochindorb Drive, Inverness, IV2 6EE, IV2 — £250,000 • 3 bed • 3 bath • 915 ft²
2 bedroom terraced house for sale in Averon Gardens, Inverness, IV2 6HL, IV2 — £199,000 • 2 bed • 2 bath • 710 ft²
3 bedroom detached house for sale in 7 Balblair Place, Stratton, Inverness, IV2 7AJ, IV2 — £275,000 • 3 bed • 3 bath • 722 ft²






























































































































