RM1 3EF - 2 bedroom flat for sale in Nayland Court, Market Place, Rom…

View on Property Piper

2 bedroom flat for sale in Nayland Court, Market Place, Romford, RM1

Summary - Nayland Court, Market Place, Romford RM1 3EF

2 bed 2 bath Flat

**Standout Features:**
- Top-floor maisonette with lift access
- Two double bedrooms, two modern bathrooms
- Open plan kitchen/living area with balcony
- Close proximity (10-minute walk) to Romford Station
- Average garden space
- Leasehold with 114 years remaining
- Annual service charge: £2,450
- Council tax: moderate

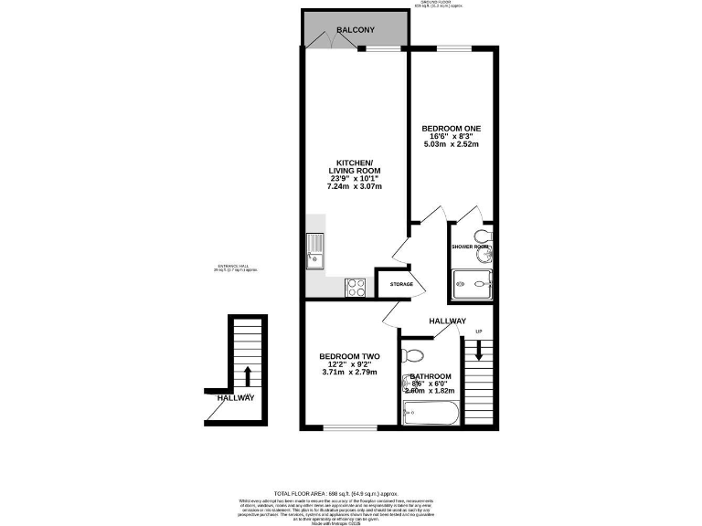
Ideal for first-time buyers or small families, this modern top-floor maisonette in Romford presents a unique opportunity for urban living. Covering approximately 698 square feet, the bright and airy open-plan kitchen and living area features large windows and access to a charming balcony, perfect for relaxation or entertaining guests. The property boasts two double bedrooms, one with an en-suite, and two well-appointed bathrooms that enhance convenience and comfort.

While the surrounding area has a very high crime rate, the home itself offers a secure environment with excellent mobile signal and average broadband speeds. With a manageable service charge and a moderate council tax band, the property remains affordable in the inner-city cosmopolitan setting. Local amenities, including shops, schools, and public transport, add to the appeal, though prospective buyers should consider the average garden size and necessary ongoing maintenance. This property’s blend of space, light, and location makes it a worthwhile investment—don’t miss your chance to make it your own!

Property Details

Brochure Descriptions

Image Descriptions

Floorplan Description

Rooms

Textual Property Features

Detected Visual Features

EPC Details

Nearby Schools

Nearest Bars And Restaurants

,,,,}

Nearest General Shops

,,}

Nearest Grocery shops

,,}

Nearest Supermarkets

,,}

Nearest Religious buildings

,,}

Nearest Medical buildings

,,,}

Nearest Airports

,}

Nearest Leisure Facilities

,,,,}

Nearest Tourist attractions

,,}

Nearest Train stations

,,,,}

Nearest Bus stations and stops

,,,,}

Nearest Hotels

,,}

Tags

Local Market Stats

AirBnB Data

Similar Properties

Meta

High Res Images

Compatible Images

Low res Images

Thumbnails

Raw Images

High Res Floorplan Images

Compatible Floorplan Images

Low res Floorplan Images

FloorplanImages Thumbnail

Raw Floorplan Images