Bright character flat with private low-maintenance garden and cellar storage.
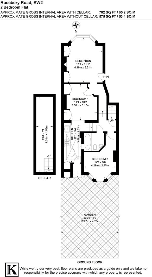
Ground-floor two-bedroom Victorian conversion with period features
A bright two-bedroom ground-floor flat in a Victorian conversion, this home blends period character with practical modern updates. High ceilings, a bay-windowed reception with original cornicing and a feature fireplace create a welcoming living space, while double glazing and contemporary kitchen and bathroom fittings deliver everyday comfort.
The property includes a private decked garden with artificial lawn — a low-maintenance outdoor space that extends living during warmer months — plus useful cellar storage accessed from within the flat. At about 702 sq ft, the layout works well for first-time buyers seeking character close to Clapham and Brixton or investors seeking a well-located rental.
Material facts to note: the flat is leasehold with 88 years remaining, so buyers should factor future lease-extension costs into their budgeting. The building is solid brick (constructed c.1900–1929) and is assumed to have no wall insulation, which could mean higher heating bills unless improved. The property has one bathroom and is an average-sized urban flat, so space is compact compared with larger family homes.
Location is a key selling point: Rosebery Road is a quiet, residential street with easy access to Brixton and Clapham amenities, good primary and secondary schools nearby, and excellent transport (Victoria and Northern lines plus multiple bus routes). Low local crime, fast broadband and strong mobile signal add to everyday convenience.
2 bedroom flat for sale in Rosebery Road, SW2 — £520,000 • 2 bed • 1 bath • 702 ft²
2 bedroom flat for sale in Rattray Road, SW2 — £585,000 • 2 bed • 1 bath • 759 ft²
2 bedroom flat for sale in Cotherstone Road, SW2 — £575,000 • 2 bed • 1 bath • 875 ft²
1 bedroom flat for sale in Thornbury Road, SW2 — £525,000 • 1 bed • 1 bath • 818 ft²
2 bedroom flat for sale in Prideaux Road, Clapham, London, SW9 — £650,000 • 2 bed • 1 bath • 767 ft²
2 bedroom flat for sale in Lyham Road, SW2 — £675,000 • 2 bed • 1 bath • 724 ft²






























































