Light-filled family living with private courtyard and garage.
Converted historic property with characterful features
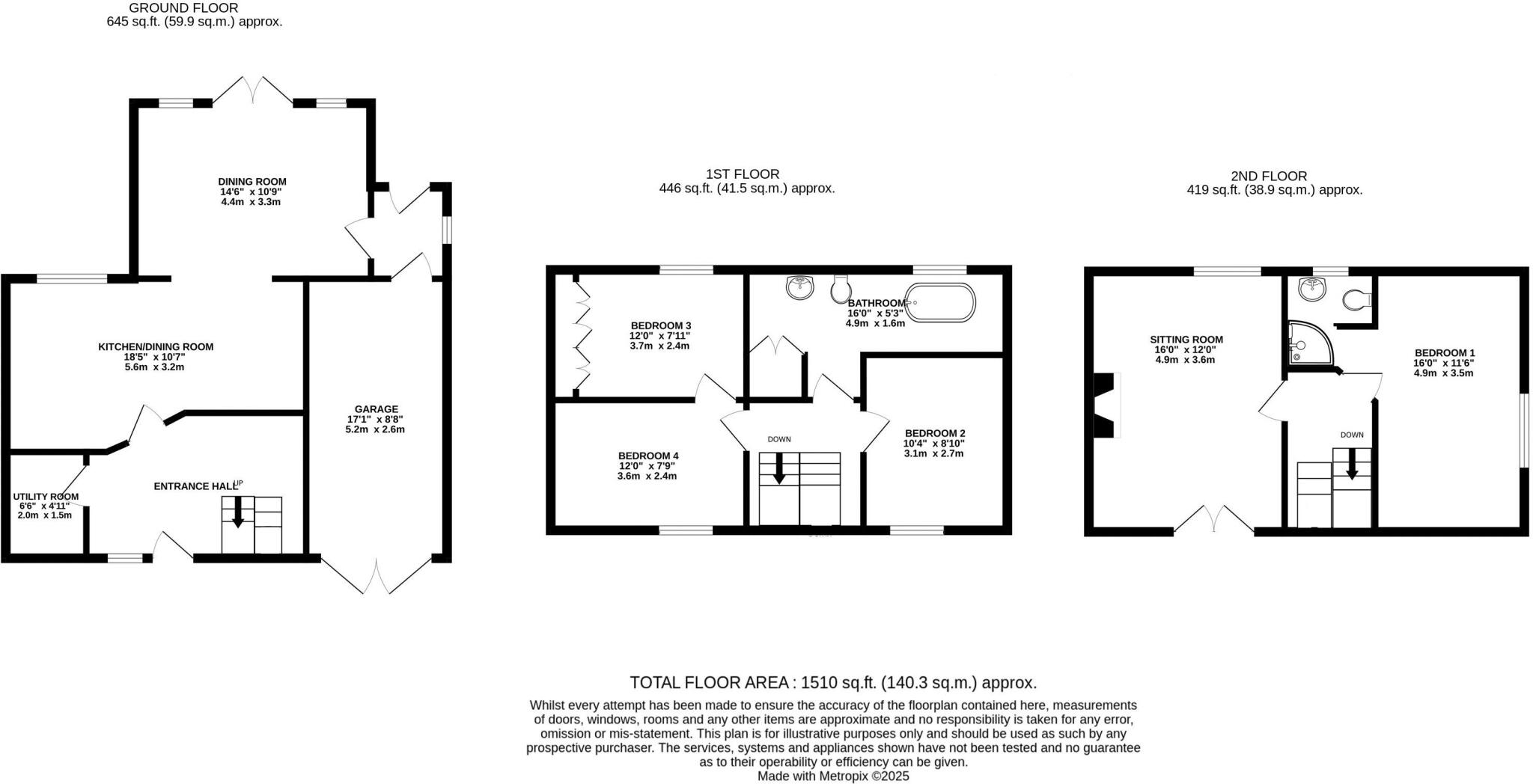
This converted character home, set over three floors, offers flexible family living in a peaceful village setting two miles from Wellington. The ground floor benefits from a vaulted family/dining room that opens to a private, sunny courtyard garden, plus a fitted kitchen, utility space and integral garage. Newly renovated throughout, the house blends original historic conversion charm with modern fixtures and maple flooring in the dining room.
Upstairs provides practical family accommodation: three first-floor bedrooms (two interconnecting), a family bathroom, and a second-floor master suite with ensuite shower and an additional sitting room with village and farmland views. The layout suits a growing family who want separate reception space, homeworking room or a play area.
Practical points to note: the plot is small and the house sits in an ageing rural neighbourhood, so outdoor space is courtyard-style rather than expansive. Broadband speeds are reported as very slow, which may affect heavy homeworking or streaming without alternative solutions. Parking is available via the integral garage plus additional front parking; freehold tenure and no flood risk are positive ownership features.
Overall this is a well-presented, characterful family house offering immediate move-in condition and scope to adapt internal rooms to changing needs. It will particularly suit buyers seeking village life, good nearby schools and countryside views, while those prioritising fast internet or large gardens should consider the limitations.
3 bedroom semi-detached house for sale in Rackfield, Westford, Wellington, TA21 — £400,000 • 3 bed • 2 bath • 1472 ft²
4 bedroom end of terrace house for sale in High Street, Stoke sub Hamdon, TA14 — £400,000 • 4 bed • 2 bath • 2048 ft²
4 bedroom detached house for sale in Ham, Creech St. Michael, Taunton, Somerset, TA3 — £780,000 • 4 bed • 2 bath • 2495 ft²
4 bedroom detached house for sale in Grange Close, Wellington, Somerset, TA21 — £625,000 • 4 bed • 2 bath • 2020 ft²
6 bedroom house for sale in Ham, Wellington, 6.02 Acres, TA21 — £1,495,000 • 6 bed • 5 bath • 8853 ft²
4 bedroom terraced house for sale in Hyacinth Terrace, Mantle Street, Wellington, Somerset, TA21 — £475,000 • 4 bed • 2 bath • 1741 ft²






























































































