Chain-free three-bedroom home minutes from the beach and local amenities.
- Detached three double bedrooms, one on the ground floor
- Open-plan kitchen/dining plus separate utility room
- Conservatory with double doors to landscaped garden
- Driveway plus integral garage for parking and storage
- Chain free; approx 1,131 sq ft living space
- EPC E and cavity walls assumed uninsulated (upgrade likely)
- Single family bathroom only; may be tight for some families
- Built 1930–49 — period character, potential modernisation needed
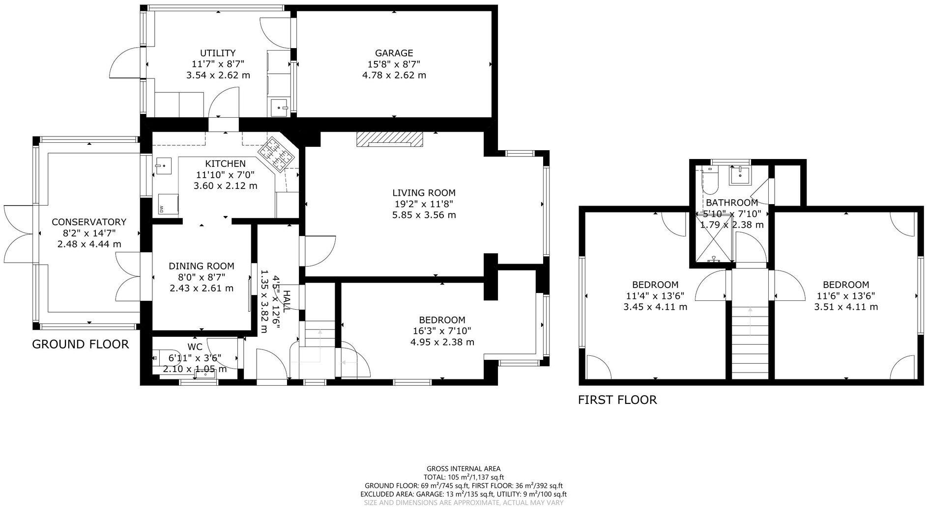
This detached three-bedroom bungalow sits on a decent plot in the sought-after village of Middleton-on-Sea, within easy reach of the beach and local amenities. The ground floor offers a living room with feature fireplace, open-plan kitchen/dining, separate utility and a conservatory that opens onto a landscaped rear garden — ideal for family life and summer entertaining. There is driveway parking and an integral garage for extra storage or a workshop.
Accommodation includes three double bedrooms (one on the ground floor) and a single family bathroom, so it suits families wanting level living with some upstairs space. The property is offered chain free and has an overall footprint of about 1,131 sq ft, making it an average-sized, comfortable home for growing households.
Practical points to note: the EPC is rated E and the cavity walls are assumed to have no insulation, so energy-efficiency upgrades would be needed to reduce running costs. The house dates from the 1930–49 period and, while immaculately presented, may benefit from modernisation in parts. Tenure is not specified and should be confirmed. Viewing is recommended to appreciate the location and layout.
Local conveniences are strong — good and outstanding-rated schools nearby, a doctors surgery, post office, sports club and easy access to Bognor Regis and Chichester. The A27 and mainline rail links make commutes and weekend travel straightforward.
3 bedroom detached house for sale in Shrubbs Drive, Middleton-on-Sea, Bognor Regis, West Sussex, PO22 — £575,000 • 3 bed • 2 bath • 1610 ft²
3 bedroom bungalow for sale in Ashmere Gardens, Middleton-On-Sea, Bognor Regis, PO22 — £425,000 • 3 bed • 1 bath • 1475 ft²
4 bedroom detached house for sale in West Avenue, Middleton-on-Sea, Bognor Regis, West Sussex, PO22 — £615,000 • 4 bed • 1 bath • 1590 ft²
4 bedroom detached house for sale in Lavender Close, Middleton-On-Sea, PO22 — £549,950 • 4 bed • 2 bath • 1871 ft²
1 bedroom semi-detached house for sale in Montgomery Drive, Bognor Regis, PO22 — £225,000 • 1 bed • 1 bath • 500 ft²
3 bedroom character property for sale in Tudor Close, Middleton-On-Sea, PO22 — £675,000 • 3 bed • 2 bath • 2407 ft²


















































































