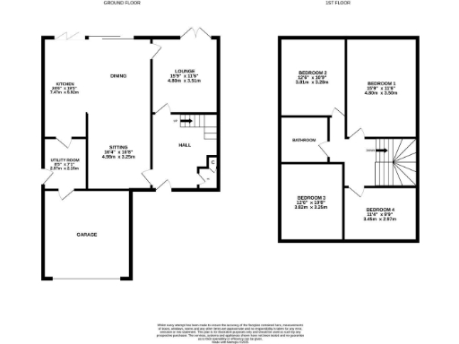
Extended four-bedroom detached home with large open-plan living and private south garden..
32‑foot open‑plan kitchen/diner with bi‑fold and sliding doors to south-facing garden
Tucked away in Walkington yet a short drive from Beverley, this extended four-bedroom detached house suits families seeking generous, modern living in a peaceful village setting. The ground floor centres on an impressive 32-foot open-plan kitchen/diner with two sitting areas and wide sliding/bi-fold doors that open onto a private, south-facing garden — ideal for family meals and year-round entertaining.
Practical living is well catered for: a separate lounge with multi-fuel stove, utility room with garage access, downstairs WC and a sizeable integral garage with driveway parking for multiple cars. Four double bedrooms on the first floor give flexible sleeping space; built-in wardrobes feature in several rooms and the family bathroom is a generous, well-tiled layout.
Important practical points: the main heating fuel is oil with a boiler and radiators (not a community supply), the property dates from the late 1970s/early 1980s and walls are cavity with assumed partial insulation. Double glazing is in place but the installation date is unknown. Council tax sits above average for the area. These are factors to consider for running costs and potential modernisation.
Overall this is a well-maintained, substantial family home on a decent plot in a very low-crime, affluent area with fast broadband and excellent mobile signal. The layout and garden give strong scope for comfortable long-term family living, while the oil heating, age of the build and single family bathroom are realistic items to budget for when viewing.
4 bedroom detached house for sale in Westfield Garth, Walkington, HU17 — £450,000 • 4 bed • 2 bath • 1450 ft²
5 bedroom detached house for sale in Thelwall Close, Walkington, HU17 — £750,000 • 5 bed • 3 bath • 2229 ft²
4 bedroom detached house for sale in Birch Lea, Walkington, HU17 8TH, HU17 — £365,000 • 4 bed • 2 bath • 1505 ft²
4 bedroom detached house for sale in Saunders Croft, Walkington, Beverley, East Riding of Yorkshire, HU17 8TG, HU17 — £550,000 • 4 bed • 2 bath • 2000 ft²
4 bedroom house for sale in Manor House Lane, Walkington, Beverley, HU17 — £475,000 • 4 bed • 1 bath • 1450 ft²
4 bedroom detached house for sale in Pine Lodge, Redgates, Walkington, Beverley, HU17 — £795,000 • 4 bed • 4 bath • 2820 ft²






















































































































































