**Standout Features:**
- No onward chain and freehold
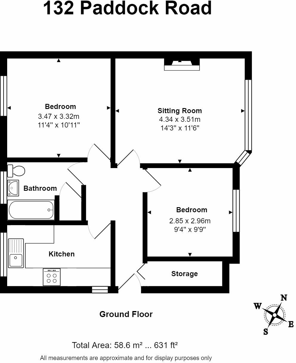
- Two spacious double bedrooms
- Private garden and driveway
- Convenient location within walking distance to Newbury town center
- Modern traditional living room with feature fireplace
- Access to fast broadband and mains gas heating
**Potential Concerns:**
- Average size property may not suit larger families
- High crime rate in the area
- Limited insulation in the walls
Located in a highly desirable area of South Newbury, this beautifully presented two-bedroom maisonette is perfect for first-time buyers or investors looking for a low-maintenance property. The inviting living room boasts a feature fireplace and large windows, creating a bright and airy atmosphere. The well-appointed kitchen offers ample cupboard and countertop space while the attached private garden provides a tranquil outdoor retreat, ideal for relaxation or entertaining.
With no onward chain, you can move swiftly into a home that features double glazing installed after 2002, ensuring energy efficiency and comfort. Although the property is relatively compact and lacks comprehensive insulation, it offers a fantastic canvas for future personalization. Enjoy the convenience of being minutes away from local amenities, parks, and excellent schools, while benefiting from the fast transport links to London and surrounding areas. Act quickly—properties like this at this price in Newbury don't stay on the market for long!
2 bedroom maisonette for sale in Newbury, Berkshire, RG14 — £190,000 • 2 bed • 1 bath • 649 ft²
2 bedroom apartment for sale in Redfield Court, Newbury, Berkshire, RG14 — £190,000 • 2 bed • 1 bath • 719 ft²
2 bedroom maisonette for sale in Westfield Way, Newbury, Berkshire, RG14 — £170,000 • 2 bed • 1 bath • 661 ft²
2 bedroom maisonette for sale in Newbury, Berkshire, RG14 — £220,000 • 2 bed • 1 bath • 655 ft²
2 bedroom apartment for sale in Saffron Close, Newbury, Berkshire, RG14 — £225,000 • 2 bed • 1 bath • 659 ft²
2 bedroom maisonette for sale in Christopher Court, Newbury, Berkshire, RG14 — £220,000 • 2 bed • 1 bath • 705 ft²






















































