High-spec four-bedroom detached home with terraces, balconies and energy-efficient heating.
Brand-new detached four double bedrooms, three bathrooms
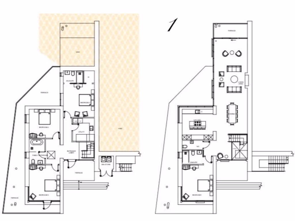
A striking, brand‑new detached home on a private cul‑de‑sac in Southshore, Seaton, finished to a high luxury standard. The house offers four double bedrooms, three bathrooms and generous open-plan living spaces arranged to maximise natural light through large glazed elevations and balconies. Modern comforts include an air‑source heat pump and underfloor heating throughout, making this an energy-efficient family home.
Set into a south‑facing slope with tiered stone retaining walls, the property sits on a substantial plot footprint with paved parking and broad terraces. The design favours large balconies and terraces for alfresco living and likely coastal views, while the interior provides generous living/dining volumes and a large utility room that suits family circulation and storage needs.
Be aware the outdoor space is terraced and stepped rather than a single large lawn: usable terraces and balconies give excellent social and sea‑facing spots but limit traditional lawned garden activities. As a brand‑new build, maintenance needs are minimal, but the elevated, sloping site means external steps and retaining walls are a permanent feature of the plot.
This property suits families seeking a high‑spec coastal residence with substantial internal space (circa 2,333 sq ft), modern energy features and off‑street parking. It will also appeal to buyers wanting a contemporary, low‑maintenance home with strong indoor/outdoor flow rather than extensive flat garden grounds.
6 bedroom detached house for sale in Downderry, PL11 — £1,950,000 • 6 bed • 4 bath • 5259 ft²
4 bedroom detached house for sale in Spaven Mor, Portuan Road, Hannafore, West Looe, PL13 — £1,900,000 • 4 bed • 5 bath • 3000 ft²
5 bedroom detached house for sale in Kendall Park, Polruan, Fowey, Cornwall, PL23 — £800,000 • 5 bed • 3 bath • 2000 ft²
6 bedroom detached house for sale in Buttlegate, Downderry, Cornwall, PL11 — £850,000 • 6 bed • 4 bath
4 bedroom detached house for sale in Downderry, Cornwall, PL11 — £850,000 • 4 bed • 3 bath • 1625 ft²
4 bedroom detached house for sale in Downderry, Cornwall, PL11 — £950,000 • 4 bed • 3 bath • 2185 ft²






























































































































































































