Smart, low‑cost family living close to transport and local schools.
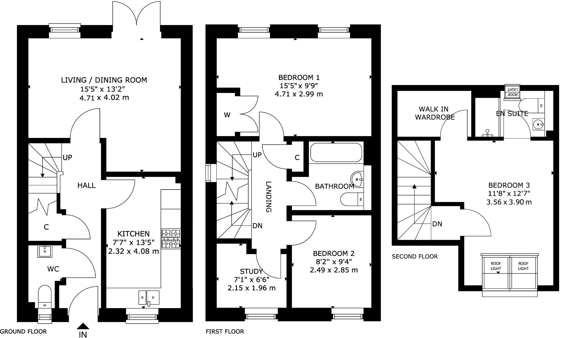
- Three bedrooms plus study; principal bedroom with walk-in wardrobe and ensuite
- Open-plan living/dining room with French doors to garden
- Photovoltaic panels and high-performance insulation for low running costs
- EV charging provision and fast broadband
- Choice of kitchen units, worktops, handles and designer tiles
- £5,000 mortgage contribution; flooring package included
- Up to £10,000 cashback on selected plots; reservation deadline applies
- Modest garden size and average overall property footprint
A bright, energy-efficient three-bedroom mid-terrace with flexible accommodation suited to growing families or downsizers. The principal bedroom benefits from a walk-in wardrobe and ensuite shower; an additional room works well as a home study. Contemporary fixtures include choice-led kitchen selections, stylish white sanitary ware and a modern open-plan living/dining room with French doors to the garden.
Built as part of a new mews development, the home comes with photovoltaic panels, high-performance insulation and EV charging provision to keep running costs low. Buyers receive a £5,000 mortgage contribution plus a stylish flooring package; selected reservations before the end of November may qualify for up to £10,000 cashback (terms apply).
Practical points to note: this is a compact, average-sized property with modest rear garden space typical of planned mews developments. The wider area is described as deprived despite comfortable suburbia characteristics locally, and the cashback offer applies only to selected plots with entry by end of January 2026. Broadband speeds are reported fast and public transport links are nearby, including Hawkhead train station for commuting to Glasgow.
3 bedroom end of terrace house for sale in Hawkhead Mews,
Arthur Henderson Avenue,
Paisley,
PA2 7EZ, PA2 — £302,500 • 3 bed • 2 bath • 1152 ft²
3 bedroom terraced house for sale in Hawkhead Mews,
Arthur Henderson Avenue,
Paisley,
PA2 7EZ, PA2 — £293,000 • 3 bed • 2 bath • 1152 ft²
3 bedroom terraced house for sale in Hawkhead Mews,
Arthur Henderson Avenue,
Paisley,
PA2 7EZ, PA2 — £293,000 • 3 bed • 2 bath • 1152 ft²
3 bedroom terraced house for sale in Hawkhead Mews,
Arthur Henderson Avenue,
Paisley,
PA2 7EZ, PA2 — £293,000 • 3 bed • 2 bath • 1152 ft²
3 bedroom terraced house for sale in Hawkhead Mews,
Arthur Henderson Avenue,
Paisley,
PA2 7EZ, PA2 — £295,000 • 3 bed • 2 bath • 1152 ft²
3 bedroom end of terrace house for sale in Hawkhead Mews,
Arthur Henderson Avenue,
Paisley,
PA2 7EZ, PA2 — £302,500 • 3 bed • 2 bath • 1152 ft²














