Renovated Georgian home: high-spec open-plan living and low-maintenance gardens close to Cheltenham amenities.
Newly renovated Georgian townhouse with period features
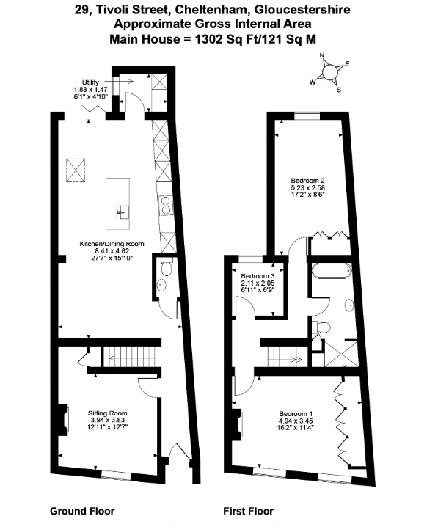
A beautifully renovated Georgian town house on Tivoli Street, combining period character with contemporary convenience. The owners’ extension has created a bright, open-plan kitchen/dining/living space with a lantern rooflight, bi-fold doors and a central island — ideal for everyday family life and entertaining. High-spec finishes include Silestone worktops, Neff appliances, integrated utility room and remote-controlled underfloor heating.
The front reception room retains period charm with plantation shutters, an antique fireplace and engineered oak flooring through the hall. Upstairs are three bedrooms with bespoke fitted wardrobes and a spacious, vaulted family bathroom finished in Porcelanosa marble tiles and a freestanding bath. The house measures about 1,302 sq ft and sits on a small, low-maintenance plot with a gravelled front courtyard and a modern rear garden with composite decking and artificial lawn.
Practical points are straightforward: the property is freehold, has excellent mobile and fast broadband, and no recorded flood risk. It sits in a very affluent, professionally qualified neighbourhood close to Tivoli’s cafés, shops and festivals, with Cheltenham Spa station and shopping districts within easy walking distance. Notable limitations include a compact plot and only one bathroom, and council tax is above average — factors to weigh for larger families or those requiring outdoor space.
This property will suit buyers seeking a ready-to-move-in period home with contemporary living spaces and low-maintenance outdoor areas — particularly professionals, couples or small families wanting central Tivoli convenience with strong specification and finished presentation.
3 bedroom terraced house for sale in Tivoli Street, Cheltenham, Gloucestershire, GL50 — £695,000 • 3 bed • 2 bath • 1112 ft²
2 bedroom end of terrace house for sale in Tivoli Street, Cheltenham, GL50 2UW, GL50 — £350,000 • 2 bed • 1 bath
2 bedroom house for sale in Princes Road, Tivoli, Cheltenham, GL50 2TX, GL50 — £399,995 • 2 bed • 1 bath • 837 ft²
2 bedroom terraced house for sale in Lypiatt Street, Cheltenham, Gloucestershire, GL50 — £470,000 • 2 bed • 1 bath • 742 ft²
3 bedroom terraced house for sale in Tivoli Street, Tivoli, GL50 — £400,000 • 3 bed • 1 bath • 828 ft²
3 bedroom house for sale in Tivoli Street, Tivoli, Cheltenham GL50 2UW, GL50 — £595,000 • 3 bed • 1 bath • 1081 ft²














































































