Large sea-view apartment with roof terrace and secure parking for relaxed coastal living.
Panoramic marina, Bristol Channel and Quantock Hills views
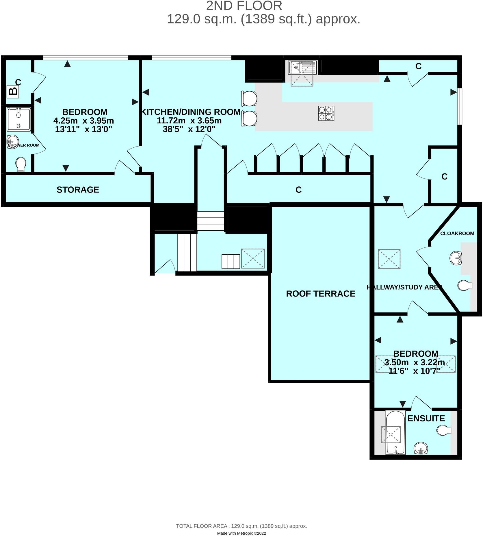
Large 1,389 sq ft penthouse — unusually spacious two-bedroom layout
Two double bedrooms, both with en-suite bathrooms
Private roof terrace and allocated off-street parking space
Gated community with gas central heating and double glazing
Leasehold property; service charge £1,035.17 (2021–22)
Average broadband and mobile signal; local area shows deprivation
Chain free sale, former hotel conversion (2003–2006)
Set high above Watchet marina, this two-bedroom penthouse delivers expansive Bristol Channel and Quantock Hills views from a large open-plan living space and private roof terrace. The apartment is one of six conversions in a former Victorian hotel, combining period character with modern comforts such as gas central heating and double glazing. At approximately 1,389 sq ft it feels considerably larger than many two-bedroom homes — ideal for anyone wanting roomy, low-maintenance living by the sea.
The accommodation includes two double bedrooms each with en-suite facilities, eaves storage and plentiful natural light from Velux and picture windows. The kitchen is fitted with integrated appliances beneath a solid granite worktop; oak and Karndean flooring add durable, contemporary finishes. Outside benefits include allocated off-street parking, a gated entrance and a service charge that covers building insurance, communal cleaning, water, fire alarms and maintenance.
Important factual points: the property is leasehold and currently chain free, with an annual service charge (2021–22) of £1,035.17. The building was converted in the 2003–2006 period and is served by mains gas central heating. Local broadband and mobile signals are average and the wider area shows higher levels of deprivation; buyers should verify lease terms and running costs via their solicitor.
This penthouse suits downsizers or buyers seeking a spacious, low-upkeep coastal home with striking views and secure parking. It offers a ready-to-enjoy living space with potential for personal updating rather than major structural work.
2 bedroom apartment for sale in South Road, Watchet, Somerset, TA23 — £165,000 • 2 bed • 1 bath • 760 ft²
2 bedroom penthouse for sale in Market Street, Watchet, Somerset, TA23 — £175,000 • 2 bed • 1 bath • 618 ft²
4 bedroom detached house for sale in St. Decumans Heights, St. Decumans Road, Watchet, Somerset, TA23 — £475,000 • 4 bed • 3 bath • 1714 ft²
3 bedroom terraced house for sale in West Street, Watchet, Somerset, TA23 — £284,000 • 3 bed • 2 bath • 1275 ft²
2 bedroom penthouse for sale in Western Lane, Minehead, TA24 — £325,000 • 2 bed • 2 bath • 1088 ft²
2 bedroom apartment for sale in West Street, Watchet, TA23 — £140,000 • 2 bed • 1 bath • 766 ft²






































































