SP5 5DW - 2 bedroom bungalow for sale in Broad Chalke, Salisbury, Wil…

View on Property Piper

2 bedroom bungalow for sale in Broad Chalke, Salisbury, Wiltshire, SP5

Summary - Grey Shades, Broad Chalke SP5 5DW

2 bed 2 bath Bungalow

Newly renovated two-bed bungalow in Chalk Valley with garden and off-street parking..
Chain free two-bedroom detached bungalow, built/renovated 2024
Light dual-aspect sitting room with French doors to paved terrace
Open-plan kitchen/breakfast with central island and integrated appliances
Principal bedroom with en suite; second double with fitted wardrobes
Low-maintenance landscaped garden with raised beds; decent plot size
Block-paved driveway and remote-controlled vehicle turning circle
Oil-fired boiler and radiators — heating runs on heating oil
Council tax above average; mobile signal only average
A contemporary two-bedroom detached bungalow set in the Chalk Valley, recently renovated to a high standard and finished in 2024. The light-filled dual-aspect sitting room opens via French doors onto a paved terrace and a low-maintenance landscaped garden with raised beds — ideal for alfresco dining and easy outside living. The open-plan kitchen/breakfast area features a central island, integrated appliances and a breakfast bar, creating a practical social hub for everyday life and entertaining.

The principal bedroom includes built-in storage and an en suite shower room; a second double with fitted wardrobes, a family bathroom and a utility room complete the accommodation. The property sits on a decent plot with a block-paved driveway and a remote-controlled vehicle turning circle — a rare, practical benefit for easier manoeuvring. Offered chain free, the home is well suited to downsizers, those seeking single-story living in a village with strong community amenities and good access to Salisbury.

Buyers should note fuel and running-cost particulars: the heating system runs on oil with a boiler and radiators, and council tax is above average for the area. Mobile signal is average though broadband speeds are fast. Overall this is a low-maintenance, contemporary bungalow in a desirable AONB village, ready to occupy with minimal immediate work required.

Property Details

Brochure Descriptions

Image Descriptions

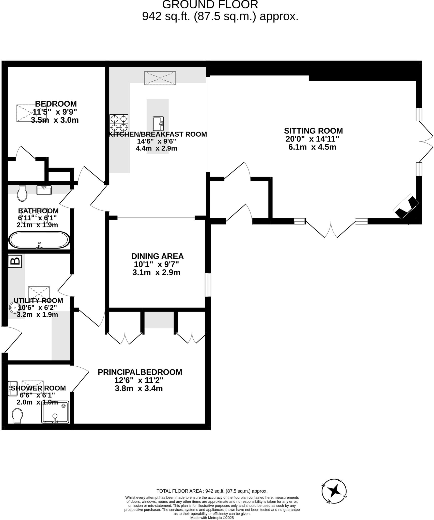
Floorplan Description

Rooms

Textual Property Features

Target Audience

AI Tags

Detected Visual Features

EPC Details

Nearby Schools

Nearest Bars And Restaurants

,,,,}

Nearest General Shops

,,}

Nearest Grocery shops

,,}

Nearest Supermarkets

,,}

Nearest Religious buildings

,,}

Nearest Medical buildings

,,,}

Nearest Leisure Facilities

,,,,}

Nearest Tourist attractions

,,}

Nearest Train stations

,,,,}

Nearest Bus stations and stops

,,,,}

Nearest Hotels

,,}

Tags

Local Market Stats

AirBnB Data

Similar Properties

Meta

High Res Images

Compatible Images

Low res Images

Thumbnails

Raw Images

High Res Floorplan Images

Compatible Floorplan Images

Low res Floorplan Images

FloorplanImages Thumbnail

Raw Floorplan Images