Four double bedrooms, large south-facing gardens and chain free in desirable Fakenham location.
Extensive south-facing gardens with greenhouse and vegetable patch
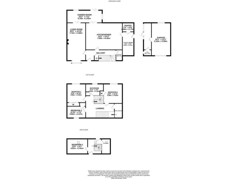
A substantial, light-filled detached home set over three floors, ideal for families who value outdoor space and proximity to town amenities. The house offers four double bedrooms and versatile living space anchored by a large kitchen/diner, separate pantry and utility — practical for daily family life and entertaining.
The garden is the property's standout: extensive south-facing lawns, mature trees, multiple seating areas, a greenhouse and an enclosed vegetable patch create a private, productive outdoor haven. A garden room with bi-folding doors provides a seamless indoor–outdoor connection and plenty of natural light.
Practical benefits include a detached garage with potting shed and WC, gated gravel driveway with ample parking, and an EPC rating of C. The home is offered chain free, close to Fakenham town centre, local schools rated Good, and a short walk from the River Wensum — attractive for those wanting semi-rural living with amenities nearby.
Known negatives are factual and important: the total internal area is modest (about 1,023 sq ft) for four double bedrooms, which may mean some rooms feel compact. Broadband speeds are slow locally and council tax is described as expensive. Tenure details are not supplied and should be confirmed before purchase.
4 bedroom detached house for sale in Rudham Stile Lane, Fakenham, NR21 — £350,000 • 4 bed • 2 bath • 1260 ft²
4 bedroom detached house for sale in Rudham Stile Lane, Fakenham, Norfolk, NR21 — £425,000 • 4 bed • 1 bath • 1448 ft²
4 bedroom detached house for sale in Norwich Road, Fakenham, NR21 — £375,000 • 4 bed • 1 bath • 1303 ft²
4 bedroom detached house for sale in Driftlands, Fakenham, Norfolk, NR21 — £350,000 • 4 bed • 1 bath • 1373 ft²
4 bedroom detached house for sale in Mallard Close, Fakenham, NR21 — £343,000 • 4 bed • 3 bath • 1195 ft²
4 bedroom semi-detached house for sale in Field Lane, Fakenham, NR21 — £360,000 • 4 bed • 2 bath • 1152 ft²






















































































































































































