Quiet Fulham home with private garden and easy access to Parsons Green station.
Wider-than-average end-of-terrace Victorian maisonette
Private street-level entrance and high Victorian ceilings
Generous wrap-around private garden with direct kitchen access
Large principal bedroom with good built-in storage
Bathroom with separate shower plus separate w/c for convenience
Long lease (approx. 170 years) and chain-free sale
Solid brick construction with no original wall insulation (assumed)
Double glazing installed before 2002 — potential upgrade opportunity
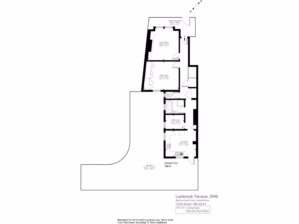
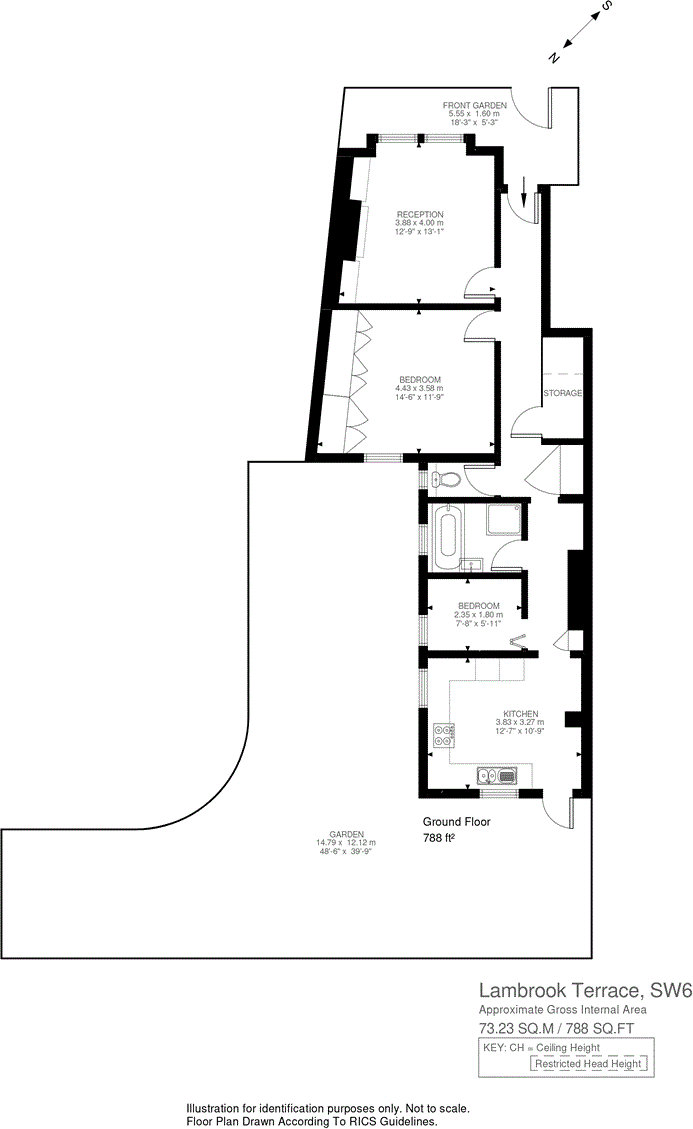
Set on a quiet Fulham street, this wider-than-average end-of-terrace Victorian maisonette offers two bedrooms, a reception room and a generous wrap-around private garden — a rare outdoor asset so close to Parsons Green. The apartment benefits from a private entrance, high Victorian ceilings and good built-in storage in the principal bedroom, giving comfortable family living in a well-connected, affluent neighbourhood.
The layout includes a sizeable kitchen breakfast room with direct garden access, a bathroom with separate shower plus a separate w/c, making morning routines straightforward for families. Broadband speeds are fast, mobile signal is excellent and Parsons Green underground (District Line) is within easy walking distance, alongside local restaurants, Bishops Park and Thames Path.
Practical points to note: the property is leasehold (long lease of c.170 years) and offered chain-free. The building is solid-brick Victorian with no built-in wall insulation (as originally constructed) and double glazing was installed before 2002 — both factors to consider if you plan significant energy-efficiency upgrades.
With excellent nearby primary and secondary schools (including Outstanding and Good Ofsted ratings) and low local crime, this maisonette will suit a family seeking period character, outdoor space and convenient access to Fulham amenities. There is scope to modernise heating and insulation for lower running costs and future value uplift.
2 bedroom maisonette for sale in Lambrook Terrace, London, SW6 — £750,000 • 2 bed • 1 bath • 743 ft²
2 bedroom flat for sale in Lambrook Terrace, Bishops Park, SW6 — £575,000 • 2 bed • 1 bath • 660 ft²
1 bedroom flat for sale in Lambrook Terrace, London, SW6 — £599,950 • 1 bed • 1 bath • 664 ft²
3 bedroom terraced house for sale in Munster Road, London, SW6 — £1,375,000 • 3 bed • 2 bath • 1476 ft²
2 bedroom maisonette for sale in Munster Road, London, SW6 — £900,000 • 2 bed • 1 bath • 953 ft²
3 bedroom maisonette for sale in Wardo Avenue, Fulham, London, SW6 — £750,000 • 3 bed • 1 bath • 824 ft²






















































