Ideal for commuters or buy-to-let investors seeking low-maintenance town-centre living.
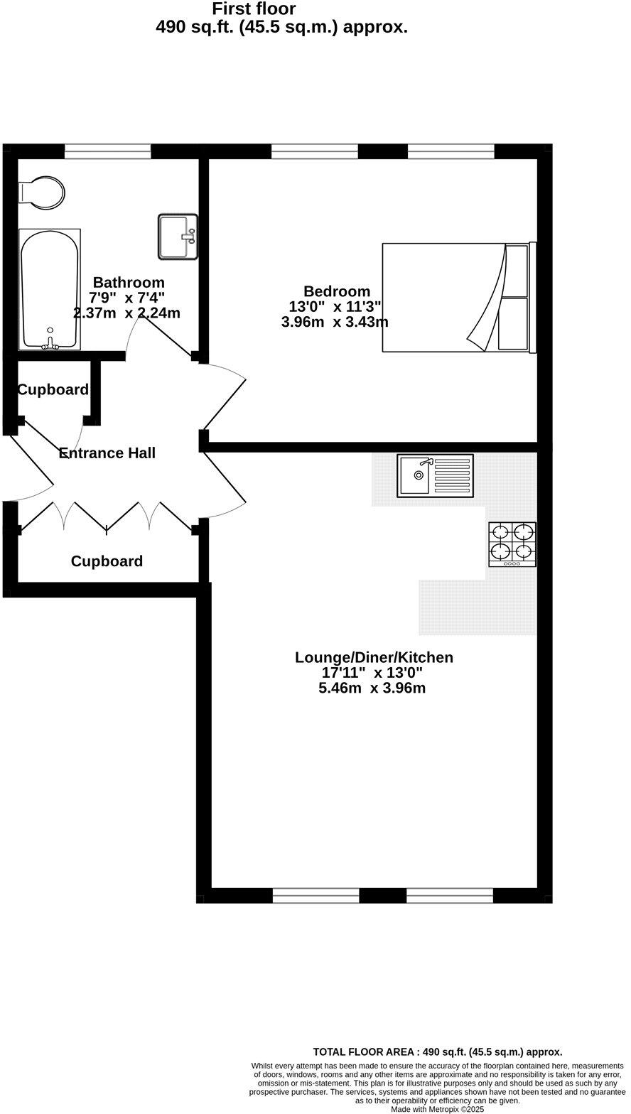
Bright open-plan lounge, diner and kitchen with integrated appliances
A bright, modern ground-floor apartment in the heart of East Grinstead, close to shops and the train station. The open-plan living area, contemporary kitchen with integrated appliances, and generous double bedroom make the flat an efficient, low-maintenance home or rental proposition.
Practical details work in the buyer’s favour: 549 sq ft overall, no onward chain, 119 years remaining on the lease and affordable council tax. The secure entry phone and communal landscaped approach add convenience and a pleasant welcome for residents and visitors.
Buyers should note the property is leasehold and has no private garden — only a small communal entrance area. The local area records higher-than-average crime figures, which may concern some purchasers or affect lettings; the building is mid-20th century and external pipework is visible.
Overall, this apartment suits a first-time buyer or investor wanting a town-centre base with easy station access and straightforward presentation, but buyers wanting private outdoor space or a very quiet neighbourhood may prefer to look elsewhere.
1 bedroom apartment for sale in Kings Court, 4 Little King Street, East Grinstead, West Sussex, RH19 — £200,000 • 1 bed • 1 bath • 624 ft²
1 bedroom apartment for sale in West Street, East Grinstead, West Sussex, RH19 — £215,000 • 1 bed • 1 bath • 603 ft²
1 bedroom flat for sale in High Street, East Grinstead, West Sussex, RH19 — £175,000 • 1 bed • 1 bath • 1156 ft²
2 bedroom flat for sale in Cantelupe Road, The Market House, RH19 — £230,000 • 2 bed • 1 bath • 650 ft²
1 bedroom flat for sale in Station Road, East Grinstead, RH19 — £180,000 • 1 bed • 1 bath • 582 ft²
1 bedroom apartment for sale in Queens Road, East Grinstead, West Sussex, RH19 — £210,000 • 1 bed • 1 bath • 534 ft²






























































