Bright, secure retirement flat overlooking landscaped communal gardens for peaceful downsizing.
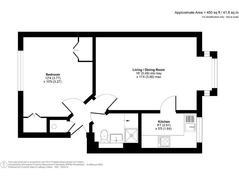
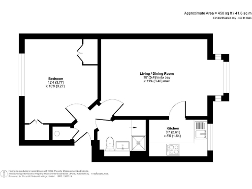
- One-bedroom upper ground-floor retirement apartment, c.450 sq ft
- Bright living room with bay window and garden outlook
- Fully fitted kitchen; modern presentation throughout
- On-site lodge manager five days a week
- 24-hour Careline emergency system and secure entry
- Service charge £2,753.70 pa; no separate ground rent
- New 99-year lease on purchase; property is leasehold
- Electric storage heaters; limited communal heating provision
A comfortable one-bedroom upper ground-floor retirement apartment in Southcote Lodge, presented in modern order with a bright bay-windowed living room and fitted kitchen. The flat faces well-kept communal gardens and sits within a development designed for owners aged 55+, with an on-site manager and regular social events.
Safety and community are strong selling points: a 24-hour Careline emergency system, secure entry and communal fire detection provide reassurance, while the owners’ lounge and organised activities support social living. The apartment’s footprint is modest (around 450 sq ft), suited to a single person or couple downsizing from a larger home.
Practical points to note: heating is via electric storage heaters and the property is leasehold with a new 99-year lease issued on purchase. The annual service charge is £2,753.70 which covers building insurance, communal utilities, garden maintenance, lift and manager services. There is no ground rent, but a transfer fee applies on sale (a percentage of the sale price plus an additional percentage per year of occupation).
1 bedroom retirement property for sale in Southcote Lodge, Reading, RG30 — £115,000 • 1 bed • 1 bath • 425 ft²
1 bedroom retirement property for sale in Southcote Lodge, Reading, RG30 — £110,000 • 1 bed • 1 bath • 493 ft²
1 bedroom retirement property for sale in Burghfield Road, Reading, RG30 — £110,000 • 1 bed • 1 bath • 468 ft²
2 bedroom apartment for sale in Burghfield Road, Reading, Berkshire, RG30 — £130,000 • 2 bed • 1 bath • 462 ft²
1 bedroom apartment for sale in Burghfield Road, Reading, Berkshire, RG30 — £115,000 • 1 bed • 1 bath • 431 ft²
2 bedroom retirement property for sale in Burghfield Road, Reading, RG30 — £105,000 • 2 bed • 2 bath • 875 ft²






















































