Spacious gardens and woodland outlook ideal for family living.
Detached 1928 period home in elevated wooded setting
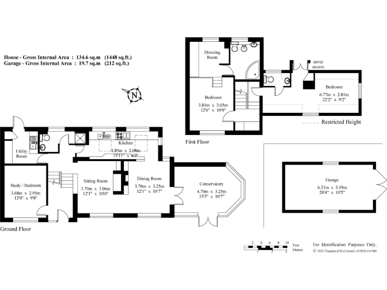
Set on an elevated, wooded plot on Hosey Hill, this 1928 detached home combines period character with generous outdoor space. The house offers a versatile layout: sitting and dining rooms, conservatory, ground-floor study/bedroom, compact kitchen with adjoining utility, principal bedroom with dressing room and en suite, plus a guest bedroom with an en suite cloakroom. A detached garage and driveway add practical parking.
The plot is a major asset — very large terraced gardens with scenic rural views and strong privacy from mature trees. The property has retained period charm and benefits from double glazing installed after 2002 and mains-gas central heating with a boiler and radiators. Westerham High Street, local schools and countryside are within easy reach, while the M25 and nearby towns provide faster rail and shopping options.
Important practical points: the location falls within a high flooding risk area and the cavity walls are assumed uninsulated, so buyers should factor potential flood mitigation and insulation works into plans. One upstairs bedroom has restricted head height and some rooms are modest in scale; the kitchen is relatively compact compared with overall house size. Council tax is noted as quite expensive.
This home will suit buyers looking for a character property with substantial gardens and scope to modernise or reconfigure. It is particularly appealing to families who value countryside setting and local schools, or purchasers seeking a renovation project to add energy-efficiency and personalise the interior.
3 bedroom detached house for sale in Hosey Hill, Westerham, TN16 — £895,000 • 3 bed • 2 bath • 1452 ft²
3 bedroom terraced house for sale in Hosey Hill, Westerham, TN16 — £449,950 • 3 bed • 2 bath • 940 ft²
5 bedroom detached house for sale in South Bank, Westerham, Kent, TN16 — £975,000 • 5 bed • 3 bath • 2871 ft²
5 bedroom detached house for sale in Marwell, Westerham, Kent, TN16 — £950,000 • 5 bed • 2 bath • 2401 ft²
4 bedroom detached house for sale in Sunnybank, Hosey Common Road, Westerham, Kent, TN16 — £650,000 • 4 bed • 3 bath • 1462 ft²
5 bedroom detached house for sale in Farley Croft,Westerham,TN16 1SA, TN16 — £950,000 • 5 bed • 3 bath • 2829 ft²






















































