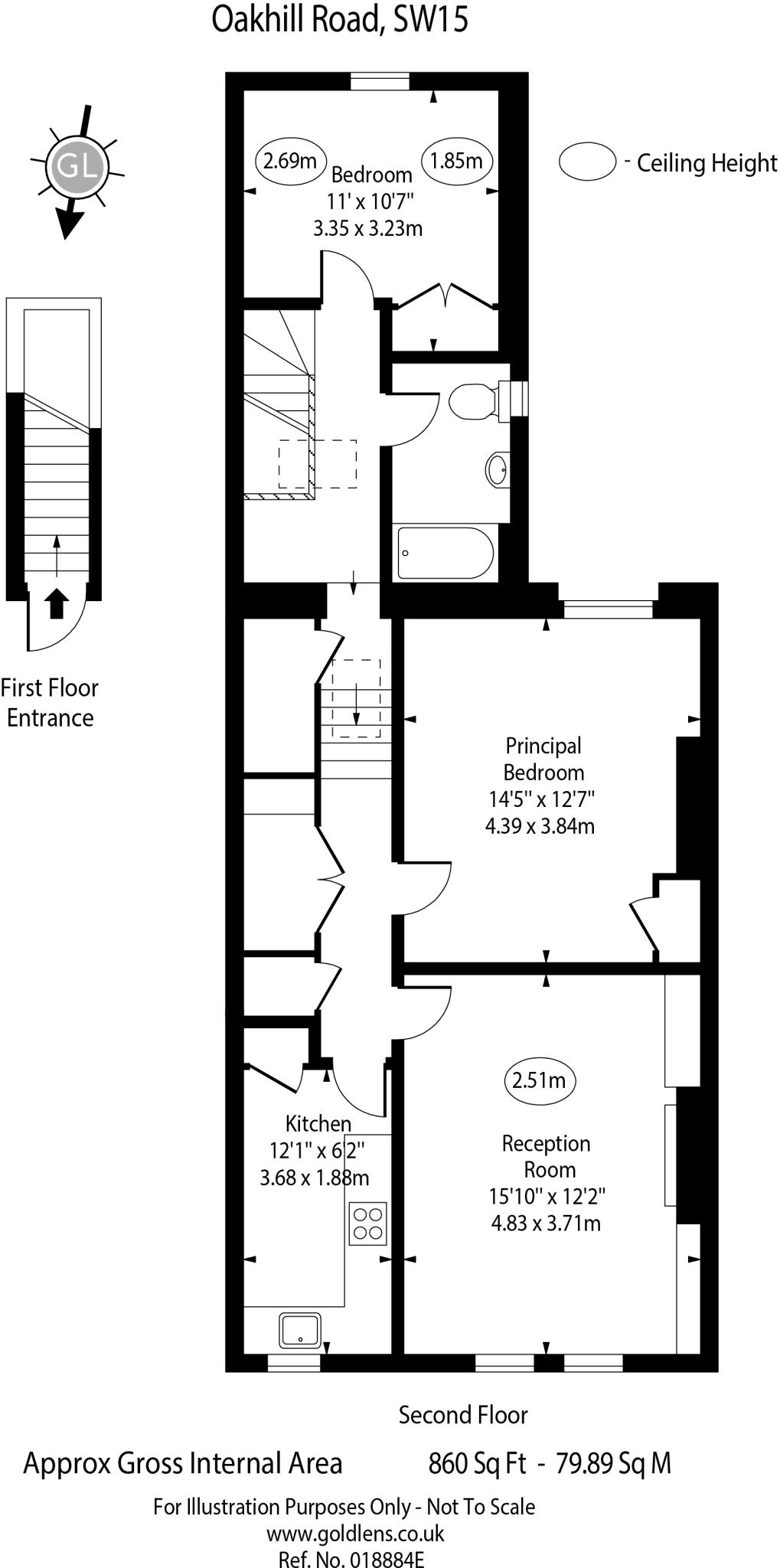
Top-floor (second) flat with high ceilings and period features
Spacious 860 sq ft — two double bedrooms, large living room
0.3 miles to East Putney Tube (District Line)
Separate modern kitchen; built-in storage and utility cupboards
Share of freehold ownership
Likely solid brick walls with no insulation (assumed) — possible heat loss
Single family bathroom; no lift — stairs required to access flat
Council tax above average; double-glazing age unknown
Set on the top (second) floor of a handsome Victorian conversion, this two-bedroom flat delivers bright, airy living across 860 sq ft. Tall ceilings and period details — bay window, fireplace and built-in shelving — create a strong sense of space and character. A separate modern kitchen and useful storage/utility cupboards make day-to-day life comfortable for first-time buyers or couples.
The location is a major draw: 0.3 miles to East Putney Tube (District Line), easy access to Putney and Wandsworth amenities, parks and riverside walks. Broadband and mobile signal are excellent, and the neighbourhood is affluent with low crime and well-regarded local schools nearby, including several top-performing secondaries.
Buyers should note this is a top-floor flat with no lift and a single family bathroom; the upper-floor position means stairs are unavoidable. The building’s original solid-brick walls are assumed to be uninsulated, and the double glazing install date is unknown — both could mean higher heating costs and are worth investigating. Council tax is above average.
Sold as a share of freehold, the apartment suits those wanting period character with practical modern updates and proximity to transport. It works well as a first home or long-term pied-à-terre for central-London commuters, but buyers seeking step-free access or minimal running costs should factor in the flat’s top-floor position and likely insulation needs.



































































