Chain-free, refurbished one-bed with sea-view balcony and parking..
Newly refurbished one-bedroom with contemporary fittings
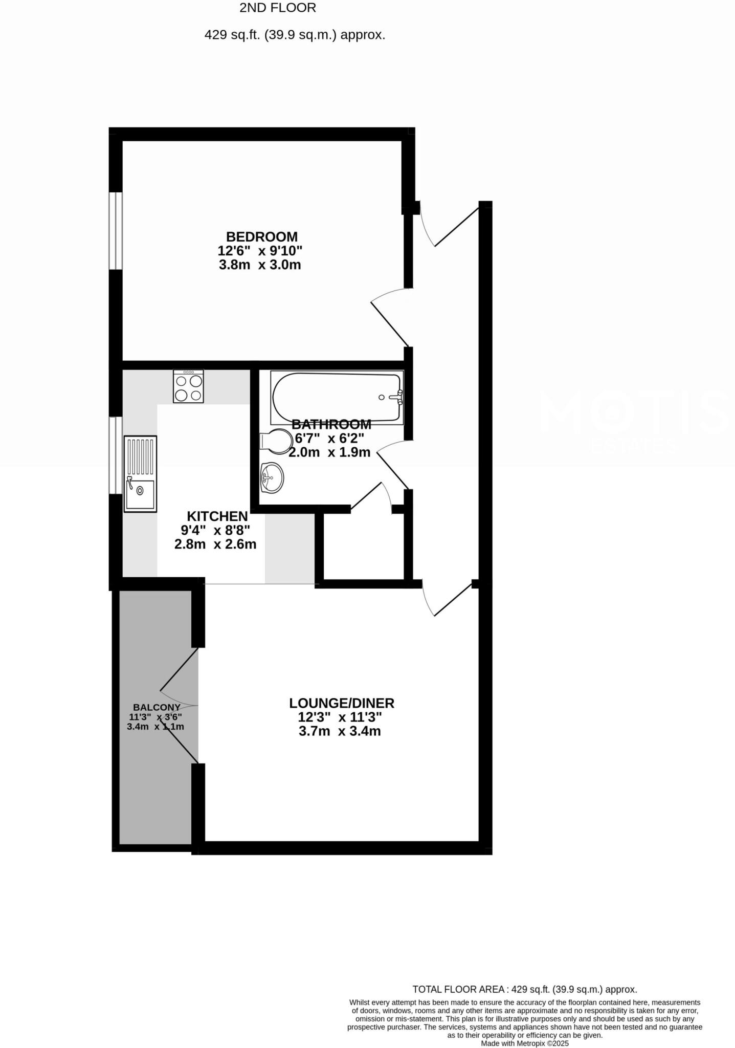
Bright, newly refurbished one-bedroom apartment on Sandgate Esplanade, ideal for a first-time buyer or buy-to-let investor seeking seaside location with low entry costs. The flat has been fully refreshed, including a new Benchmarx kitchen, modern bathroom and recently installed double glazing. A private balcony faces the sea, offering morning sun and pleasant coastal views from the living space.
Practicalities are straightforward: the flat is chain free, comes with a designated off-street parking space and sits on a newly issued 99-year lease. Annual running costs include a service charge of £1,183 and a ground rent of £100. Heating is by electric room heaters, so consider energy use and costs when budgeting.
Accommodation is compact at about 429 sq ft with a simple two-room layout. The small footprint makes it easy to maintain but limits space for larger furniture or those needing extra storage. The building’s grounds are well kept and the property sits directly overlooking the seafront with Sandgate High Street and local amenities a short walk away.
This apartment suits someone after a low-hassle coastal home or a rental asset that should appeal to holiday or long-term tenants. Key positives are the recent renovation, sea views, parking and long lease; key considerations are the apartment’s compact size and electric heating costs.
1 bedroom flat for sale in Sandgate High Street, Sandgate, Folkestone, Kent, CT20 — £150,000 • 1 bed • 1 bath • 367 ft²
1 bedroom flat for sale in Castle Road, Sandgate, Folkestone, Kent, CT20 — £250,000 • 1 bed • 1 bath • 519 ft²
1 bedroom property for sale in Sandgate High Street, Folkestone, Sandgate, CT20 — £100,000 • 1 bed • 1 bath • 405 ft²
1 bedroom apartment for sale in Sandgate Esplanade, Sandgate, Folkestone, Kent, CT20 — £180,000 • 1 bed • 1 bath
2 bedroom flat for sale in Castle Bay, Sandgate, CT20 — £375,000 • 2 bed • 2 bath • 797 ft²
2 bedroom flat for sale in Sandgate High Street, Sandgate, Folkestone, CT20 — £235,000 • 2 bed • 1 bath • 643 ft²














































