Bright two-bedroom home near Hoxton and the flower market, ideal for first-time buyers.
Private garden, rare for Columbia Road flats
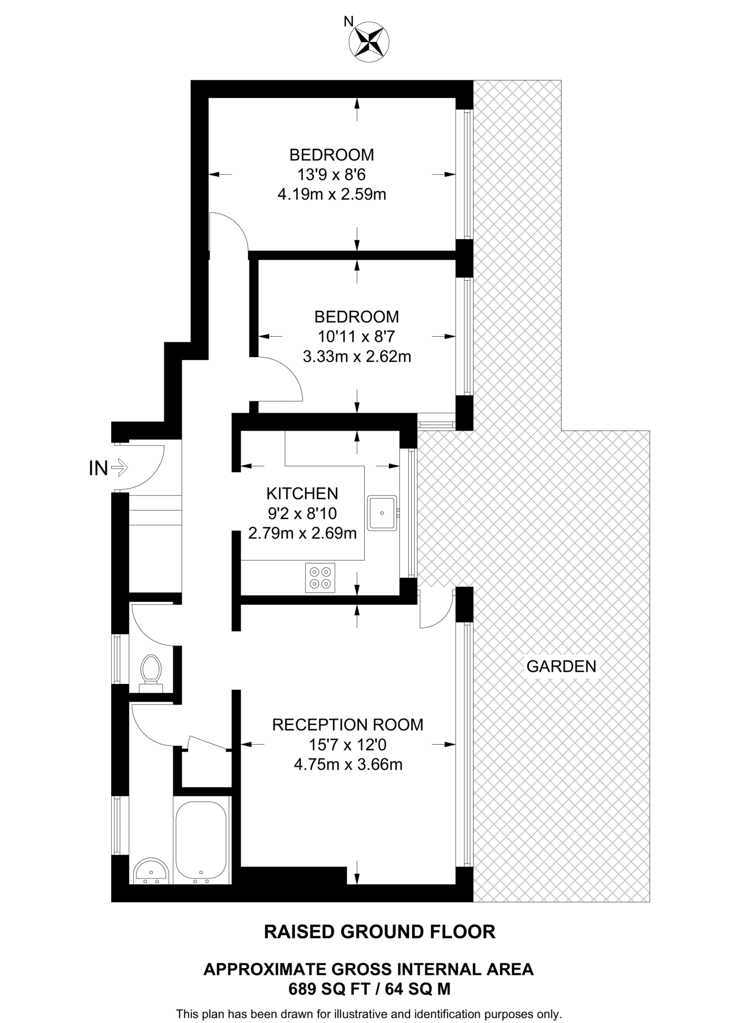
Bright two-bedroom flat with a private garden in the heart of Columbia Road, moments from the famous flower market. The living space is well laid out across approximately 689 sq ft, with a spacious reception room and two well-proportioned bedrooms suited to a couple or first-time buyers seeking an easy-living London base.
Practical features include a stylish bathroom plus separate WC, double glazing (install date unknown) and mains gas supply. Hoxton station is within walking distance for fast links across the city, and several well-regarded state schools are nearby, making this an appealing choice for buyers prioritising local amenities and transport.
Buyers should note this is a leasehold property in a very deprived, high-crime area — factors that affect long-term desirability and insurance. Heating relies on room heaters with mains gas; the building dates from c.1950–66 and may present ongoing maintenance needs. Overall this is a solid opportunity for someone wanting a well-located flat with garden space and potential to add value over time.
1 bedroom apartment for sale in Georgina Gardens, Columbia Road, London, E2 — £330,000 • 1 bed • 1 bath • 466 ft²
2 bedroom apartment for sale in Clarkson Street, London, E2 — £550,000 • 2 bed • 1 bath • 702 ft²
2 bedroom flat for sale in Diss Street, Bethnal Green, London, E2 — £350,000 • 2 bed • 1 bath • 687 ft²
2 bedroom flat for sale in Hackney Road, Hoxton, E2 — £600,000 • 2 bed • 2 bath • 680 ft²
2 bedroom flat for sale in London Terrace, Hackney Road, Bethnal Green, London, E2 — £525,000 • 2 bed • 2 bath • 916 ft²
2 bedroom flat for sale in Hackney Road, Bethnal Green, London, E2 — £650,000 • 2 bed • 1 bath • 673 ft²










































































