Character-filled three-bedroom home near Brentwood station and top schools.
Victorian mid-terrace with original bay window and decorative fireplace
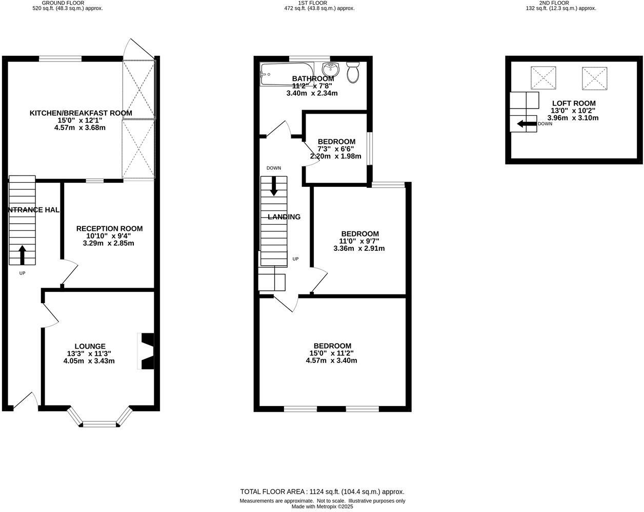
Set in the sought-after Old Hartswood area, this Victorian mid-terrace blends original character with practical family living across three floors. The ground floor offers a bay-front lounge, separate reception and a wide kitchen/breakfast room with direct access to a private rear garden. Upstairs are three well-proportioned bedrooms and a modern family bathroom, with a useful loft room over serving as a guest bedroom, home office or playroom.
The location is a key strength: short walks bring you to Brentwood mainline services/Elizabeth line connections and several highly rated schools, making daily commutes and school runs straightforward. Fast broadband and excellent mobile signal support remote working and family tech needs. The property is freehold, sits within a very affluent area and carries no flood risk.
Accommodation is presented to a good standard with neutral contemporary finishes while retaining period features such as the bay window and decorative fireplace. The house is an attractive option for families seeking space and flexible layout, or investors targeting long-term rental demand in a strong commuter town. The footprint is average for this terrace type and the small front and rear gardens are low maintenance.
Considerations: there is a single main bathroom serving three bedrooms, and the plot is modest in size. While presented well, the house offers scope for light cosmetic updating to personalise rooms or improve value. Council tax is moderate and local crime levels are average.
2 bedroom end of terrace house for sale in St. Peters Road, Warley, Brentwood, Essex, CM14 — £450,000 • 2 bed • 2 bath • 778 ft²
2 bedroom cottage for sale in Woodman Road, Warley, Brentwood, CM14 — £400,000 • 2 bed • 1 bath • 691 ft²
3 bedroom semi-detached house for sale in Junction Road, Warley, CM14 — £600,000 • 3 bed • 2 bath • 1099 ft²
4 bedroom semi-detached house for sale in Ongar Road, Brentwood, CM15 — £725,000 • 4 bed • 1 bath • 1331 ft²
3 bedroom terraced house for sale in Britannia Road, Warley, Brentwood, Essex, CM14 — £350,000 • 3 bed • 1 bath • 829 ft²
4 bedroom semi-detached house for sale in Ingrave Road, Brentwood, CM15 — £800,000 • 4 bed • 1 bath • 1372 ft²


























































