Newly refurbished family house with garden and studio near parks and shops.
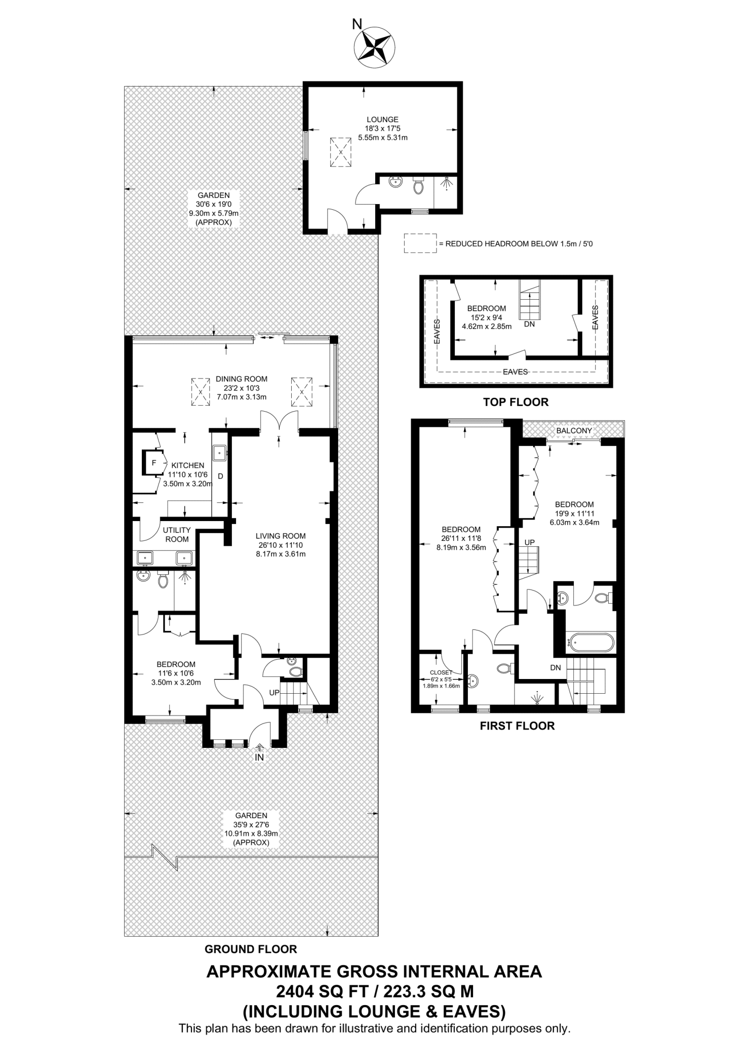
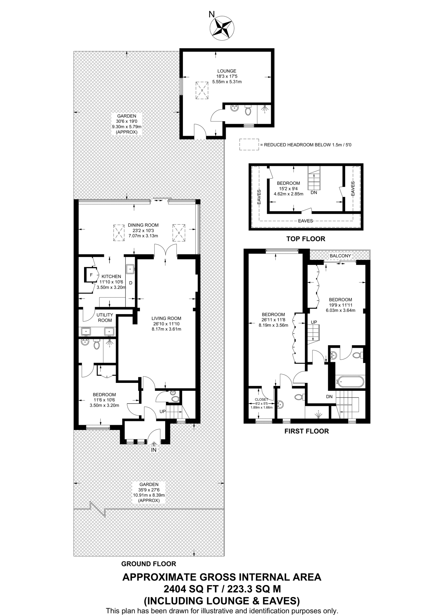
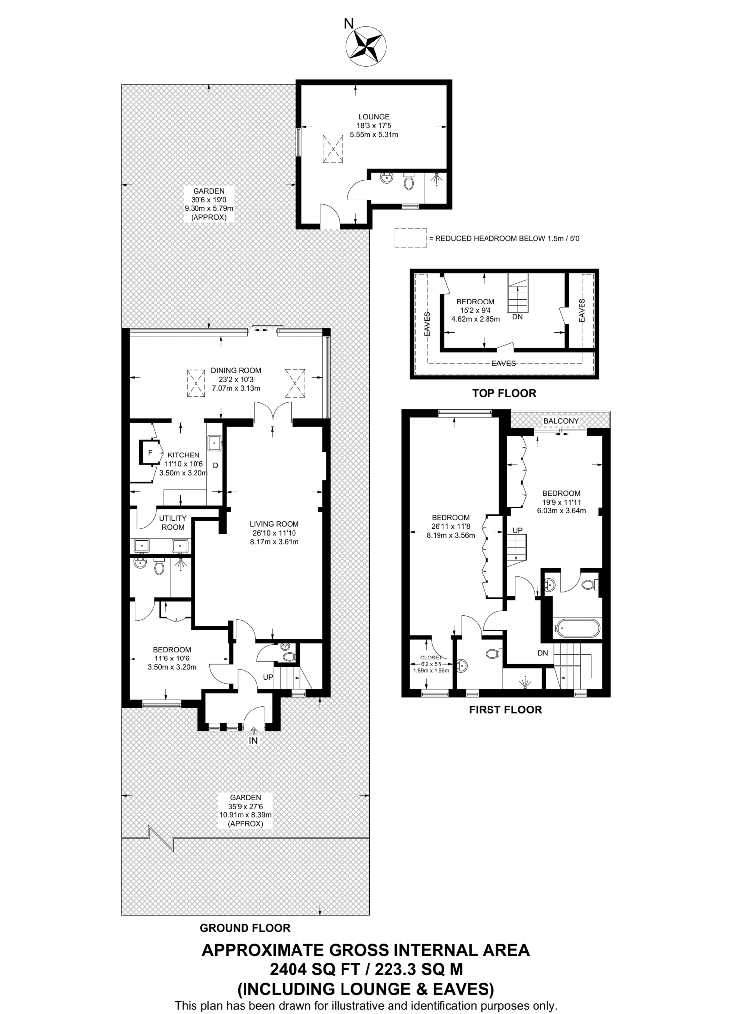
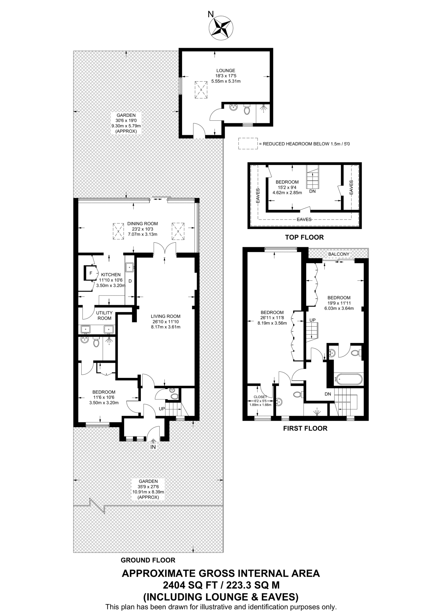
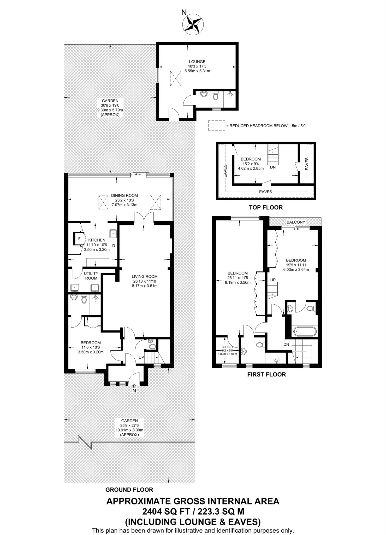
Approximately 2,404 sq ft of multi-storey living space
This newly renovated 4-bedroom semi-detached house in East Acton offers generous living space across multiple floors with high-quality fixtures and integrated appliances throughout. A modern extension and bright studio/office open onto a well-landscaped garden and patio, creating versatile indoor‑outdoor living for families or home-workers.
Practical conveniences include secure gated off-street parking for 2–3 cars, mains gas central heating, double glazing, and a sizeable footprint of approximately 2,404 sq ft. Several well-rated primary and secondary schools are within easy reach, and Acton Park, local shops on Churchfield Road and Acton High Street, plus transport links toward Shepherd's Bush and Westfield, are nearby.
Buyers should note the wider area has above-average crime and some local deprivation indicators. The house was built in the 1930s with cavity walls that are assumed to have no added insulation; further insulation work may be desirable. Overall, the property blends period bones with a contemporary finish, offering strong family accommodation and workspace potential in a well-connected inner-city location.
6 bedroom house for sale in Ashfield Road, Acton, W3 — £1,300,000 • 6 bed • 4 bath • 2017 ft²
3 bedroom terraced house for sale in First Avenue, Acton, W3 — £1,300,000 • 3 bed • 3 bath • 2404 ft²
4 bedroom semi-detached house for sale in First Avenue, Acton, W3 — £1,300,000 • 4 bed • 4 bath • 2404 ft²
4 bedroom semi-detached house for sale in St Dunstans Avenue, Acton, London, W3 — £1,000,000 • 4 bed • 2 bath • 2485 ft²
4 bedroom semi-detached house for sale in Creswick Road, London, W3 — £925,000 • 4 bed • 3 bath • 1740 ft²
4 bedroom flat for sale in Friars Way, Acton, London, W3 — £925,000 • 4 bed • 2 bath • 1365 ft²






























































































































































































































































































































































































































































































