Multi‑generational barn complex with pool, triple garages and income potential in Loders village.
Ten bedrooms across three converted barn dwellings (main house + two units)
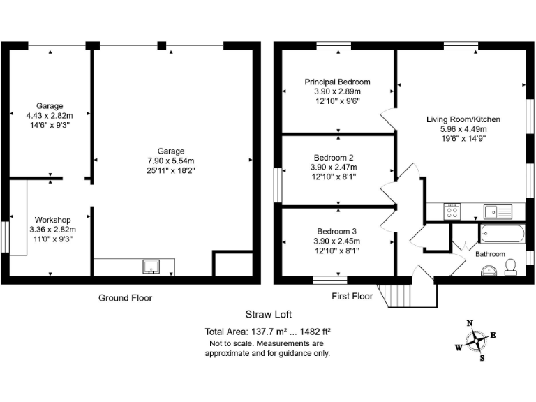
A rare, multi‑generational converted barn complex in the heart of Loders, set within c.0.75 acre of landscaped gardens and courtyard parking. The main L‑shaped barn (1980 conversion) provides generous reception spaces including a 40' living room, large kitchen with underfloor heating, principal suite with dressing room, and four further bedrooms — arranged to accommodate a large family or communal living. Two further dwellings (Hay Barn and Straw Loft) add three-bedroom and three-bedroom apartment accommodation respectively, offering flexible living or rental income potential. The site includes triple garages/workshops, a modern leisure cabin, sauna, heated swimming pool, hot tub, pond and productive gardens.
Practical features suit self-sufficient living: oil‑fired boiler with zoned heating, PV panels (providing income), mains services, and double glazing. The property sits in a Conservation Area and Area of Outstanding Natural Beauty, backing onto pasture and near the River Asker, while village amenities and a Good-rated primary school are within walking distance. Parking is gated and private, and the complex is secluded from the village lane.
Notable considerations: parts of the fabric are stone with assumed no wall insulation and the main heating is oil — buyers should budget for energy upgrades. The site has a medium flooding risk and multiple dwellings carry mixed Energy Performance ratings (D, E, C). The property is large and will require ongoing maintenance for pool, outbuildings and extensive gardens. Intended buyers should be comfortable managing a multi‑building estate or commissioning professional management for holiday lets/income use.
This is an attractive proposition for a large family seeking village life with workspace and leisure facilities, or for purchasers seeking income from holiday lets or workshops. The layout and range of outbuildings create opportunities for adaptation (wellness, teaching, studios), subject to planning and conservation considerations.
3 bedroom detached house for sale in Highacres, Loders, Bridport, Dorset, DT6 — £500,000 • 3 bed • 2 bath • 1101 ft²
6 bedroom detached house for sale in Southover, Frampton, Dorchester, Dorset, DT2 — £1,100,000 • 6 bed • 5 bath • 4007 ft²
2 bedroom detached house for sale in Mabeys Cottage, Pilsdon, Bridport, Dorset, DT6 — £1,450,000 • 2 bed • 1 bath • 2485 ft²
4 bedroom barn conversion for sale in The Old Stables, Warmwell, DT2 — £650,000 • 4 bed • 3 bath • 2102 ft²
3 bedroom detached house for sale in Loders, DT6 — £625,000 • 3 bed • 1 bath • 1195 ft²
4 bedroom barn conversion for sale in Manor farm barn, Bishops caundle, Sherborne, DT9 — £799,950 • 4 bed • 4 bath • 3178 ft²






















































































































