Affordable modern two-bed with parking and balcony, close to shops and transport.
- 45% shared ownership; monthly rent approx. £406.80 on remaining share
- Service charge approx. £130 per month (average)
- Long lease: approx. 996 years remaining
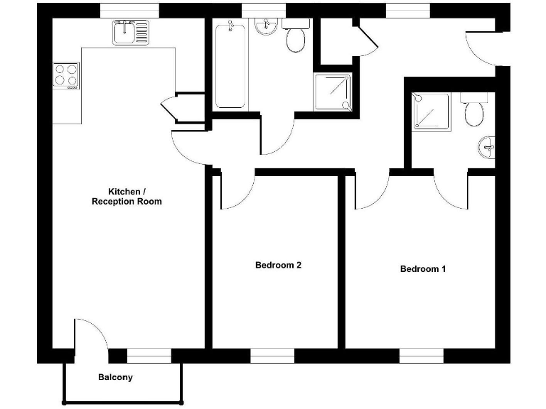
- Compact overall size: about 474 sq ft
- Two double bedrooms; en-suite plus four-piece family bathroom
- Two allocated off-street parking spaces and balcony
- Built 2019 with gas central heating and EPC B
- Local area: above-average crime levels; check neighbourhood suitability
A bright, modern ground-floor apartment released in 2019, offered as 45% shared ownership — ideal for a first-time buyer stepping on the ladder. The open-plan lounge/kitchen opens onto a balcony, and two double bedrooms include an en-suite, making the layout comfortable for couples or small families. Built-in appliances and contemporary finishes reduce immediate work needs.
Practical benefits include two allocated parking spaces, gas central heating, double glazing, an EPC B rating and an unusually long lease (approx. 996 years). Running costs to note are an estimated service charge of about £130 per month and a monthly rent of around £406.80 payable on the remaining 55% share. Council tax sits in band B.
The apartment is compact at about 474 sq ft, so space-conscious buyers should inspect to confirm it meets storage and room-size needs. The property is leasehold and in an area with above-average local crime statistics, which may be relevant for some buyers. Buyers should verify service charge, rent and any legal details with their solicitor prior to exchange.
For someone seeking a low-maintenance, contemporary home close to shops, schools and good commuter links, this apartment offers an affordable route into the local market. The shared-ownership model suits those who prefer lower upfront costs but should be chosen with a clear understanding of ongoing rental and service commitments.
1 bedroom apartment for sale in Snitterfield Drive, Shirley, Solihull, B90 — £77,500 • 1 bed • 1 bath • 442 ft²
2 bedroom apartment for sale in Apt 7, 137 Warwick Road, B92 — £74,250 • 2 bed • 2 bath • 797 ft²
1 bedroom retirement property for sale in Connaught Close,
Shirley,
B90 — £142,500 • 1 bed • 1 bath • 560 ft²
1 bedroom flat for sale in Warwick Road, Olton, Solihull, B92 — £62,000 • 1 bed • 1 bath • 535 ft²
1 bedroom apartment for sale in Warwick Road, Solihull, B92 — £40,500 • 1 bed • 1 bath • 530 ft²
3 bedroom semi-detached house for sale in Magnolia Drive, Shirley, Solihull, West Midlands, B90 — £216,600 • 3 bed • 2 bath • 897 ft²






























