**Standout Features:**
- Spacious semi-detached family home with three double bedrooms
- Versatile office/fourth bedroom option
- Beautifully presented with an open-plan kitchen/dining area
- Enclosed private garden and single garage, with driveway parking
- Conveniently located in a quiet cul-de-sac within a modern estate
- Close proximity to local amenities, schools, and leisure facilities
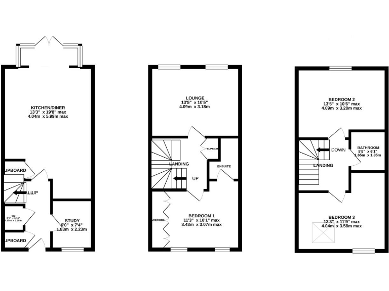
This well-appointed family home located in the sought-after Berry Edge development benefits from a charming and private garden, making it perfect for families looking for outdoor space. The layout is functional and flexible, featuring an entrance hall, utility space, and a generous kitchen diner with French doors leading to the garden, ideal for entertaining. The first floor boasts a cozy lounge, along with a double bedroom with an en-suite bathroom, while the second floor includes two additional double bedrooms and a family bathroom.
Convenience is paramount, as the home is within walking distance to Consett retail park, schools, and leisure amenities, along with being surrounded by scenic countryside walks and cycle routes. Although the property is in good condition, the leasehold status involves a modest ground rent of £150 per year, with 135 years remaining on the lease—an appealing option for first-time buyers or young families seeking a comfortable and versatile living space. Don’t miss out—this beautiful home won’t stay on the market for long!
4 bedroom semi-detached house for sale in Fenwick Way, Consett, County Durham, DH8 — £190,000 • 4 bed • 2 bath • 923 ft²
4 bedroom detached house for sale in Abbotts Way, Consett, County Durham, DH8 — £325,000 • 4 bed • 3 bath • 1275 ft²
3 bedroom terraced house for sale in Richardson Way, Consett, County Durham, DH8 — £150,000 • 3 bed • 2 bath • 650 ft²
3 bedroom semi-detached house for sale in Richardson Way, Consett, County Durham, DH8 — £200,000 • 3 bed • 2 bath • 951 ft²
3 bedroom semi-detached house for sale in Elliott Way, Berry Edge, Consett, DH8 — £149,000 • 3 bed • 1 bath • 748 ft²
4 bedroom semi-detached house for sale in Agar Close, Consett, County Durham, DH8 — £200,000 • 4 bed • 2 bath • 1207 ft²














































































































































