Dramatic vaulted living, mature gardens and consented 3-bed wing — almost 12 acres included.
Vaulted open-plan reception/kitchen with large south-facing balcony and stunning Exmoor views
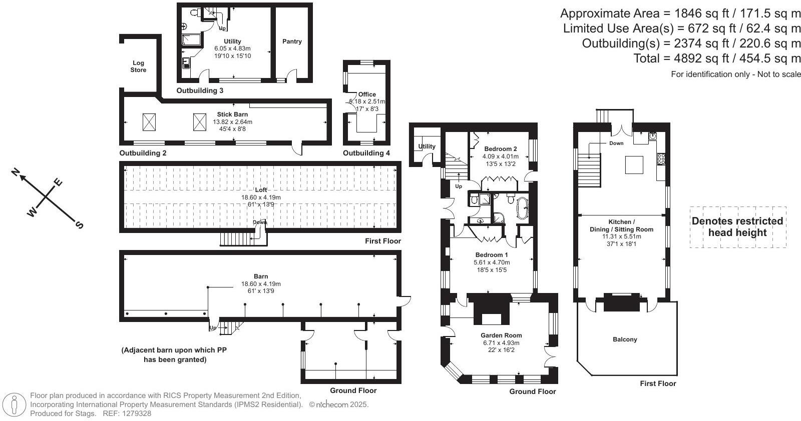
Ashelford House is an atmospheric detached barn conversion set in almost 12 acres of landscaped gardens and pasture, with a further 11.49 acres available to purchase. The property combines a dramatic, vaulted open-plan reception/kitchen (37'4 x 19') and extensive south-facing balcony with two double bedrooms, two bathrooms and a garden room that enjoys sheltered views over the pond and grounds. A detached office and several useful stone outbuildings add functional space for hobbies or home business.
Planning permission (North Devon DC ref 79709, granted 06/05/2025) exists to convert and link an adjacent period barn to create a three-bedroom wing, potentially creating a five-bedroom family home. That consent is a major value driver for buyers who want to expand accommodation and create a substantial principal house while managing the project on site. The gardens are mature and varied, with specimen planting, a spring-fed pond and established vegetable areas created over 25 years.
Practical considerations are clear: heating is oil-fired with a private borehole water supply and private drainage. Broadband is via Airband and reported very slow; mobile signal is limited. There is a covenant preventing conversion of one retained stone barn and, if only the 11.96-acre lot is purchased, the vendors will require pedestrian and vehicular rights over the upper drive. Council Tax Band E and EPC Band D apply.
This property will suit buyers seeking privacy, space and rural character — families wanting scope to extend, buyers looking for a land-rich rural base, or those who value period features and bespoke living areas. It is chain-free and presented newly renovated, but the expansion potential will require capital and practical project management to realise.
2 bedroom detached house for sale in East Down, Barnstaple, EX31 — £1,150,000 • 2 bed • 2 bath • 1846 ft²
5 bedroom detached house for sale in Parracombe, Exmoor, EX31 — £825,000 • 5 bed • 3 bath • 2207 ft²
7 bedroom detached house for sale in Kentisbury, Barnstaple, Devon, EX31 — £1,150,000 • 7 bed • 5 bath • 4768 ft²
6 bedroom detached house for sale in Bratton Fleming, Barnstaple, EX31 — £1,200,000 • 6 bed • 5 bath • 3877 ft²
6 bedroom detached house for sale in Bratton Fleming, Barnstaple, EX32 — £1,295,000 • 6 bed • 4 bath • 3968 ft²
4 bedroom semi-detached house for sale in Challacombe, Challacombe, Devon, EX31 — £475,000 • 4 bed • 2 bath • 1320 ft²


















































































































































































