Large three-bedroom top-floor apartment near shops, transport and park.
Top-floor corner flat with dual-aspect lounge and high ceilings
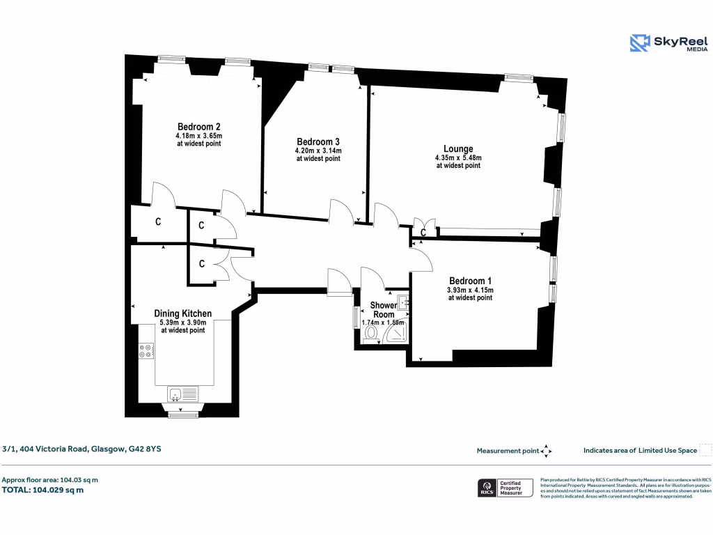
Generous 1,119 sq ft footprint; three double bedrooms
Dining-sized kitchen with integrated appliances and pantry
Secure entry, communal back court and shared lawn space
Double glazing and gas central heating throughout
Single bathroom for three bedrooms; consider household needs
EPC Rating D; energy improvements may be needed
Located in a very deprived area despite strong local amenities
This spacious top-floor corner flat in Queen’s Park occupies a generous 1,119 sq ft and offers true three-bedroom living in a sought-after part of Glasgow. High ceilings, large dual-aspect windows and a contemporary finish give the main rooms a bright, airy feel; the corner lounge and dining-sized kitchen will suit families or sharers who value space for everyday life and entertaining.
Practical features include double glazing, gas central heating, integrated kitchen appliances and a secure door-entry system. Accommodation is arranged around a sizeable reception hallway with storage, three double bedrooms and a modern, tiled shower room. Externally there is a communal back court and shared lawn space, while immediate local amenities and transport links — shops, cafes, buses and Queen’s Park rail station — are all within easy reach.
Buyers should note a few material points: the property has a single bathroom serving three bedrooms, and the Energy Performance Certificate is rated D. The wider neighbourhood is classified as very deprived, which may affect long-term resale or rental appetite despite the area’s growing popularity and convenience. The flat is freehold and presented in contemporary condition, though some buyers may wish to check the EPC recommendations.
This property will be sold via a closing date on Friday 17 October at 2.00pm — an attractive opportunity for first-time buyers or families seeking generous internal space close to Queen’s Park’s amenities and green space.
3 bedroom apartment for sale in Albert Avenue, Strathbungo, Glasgow, G42 — £290,000 • 3 bed • 1 bath • 1282 ft²
2 bedroom apartment for sale in Prince Edward Street, Queens Park, G42 — £175,000 • 2 bed • 1 bath • 758 ft²
1 bedroom apartment for sale in Torrisdale Street, Queen's Park, Glasgow, G42 — £135,000 • 1 bed • 1 bath • 463 ft²
2 bedroom flat for sale in Flat 2/1, 481 Victoria Road, Glasgow, G42 — £220,000 • 2 bed • 1 bath • 871 ft²
1 bedroom flat for sale in 2/3, 30 Nithsdale Street, Glasgow, Glasgow City, G41 — £130,000 • 1 bed • 1 bath • 624 ft²
3 bedroom flat for sale in Glenapp Street, Pollokshields, G41 — £289,000 • 3 bed • 1 bath • 1332 ft²






















































































