**Standout Features:**
- Chain-free studio apartment on the 7th floor
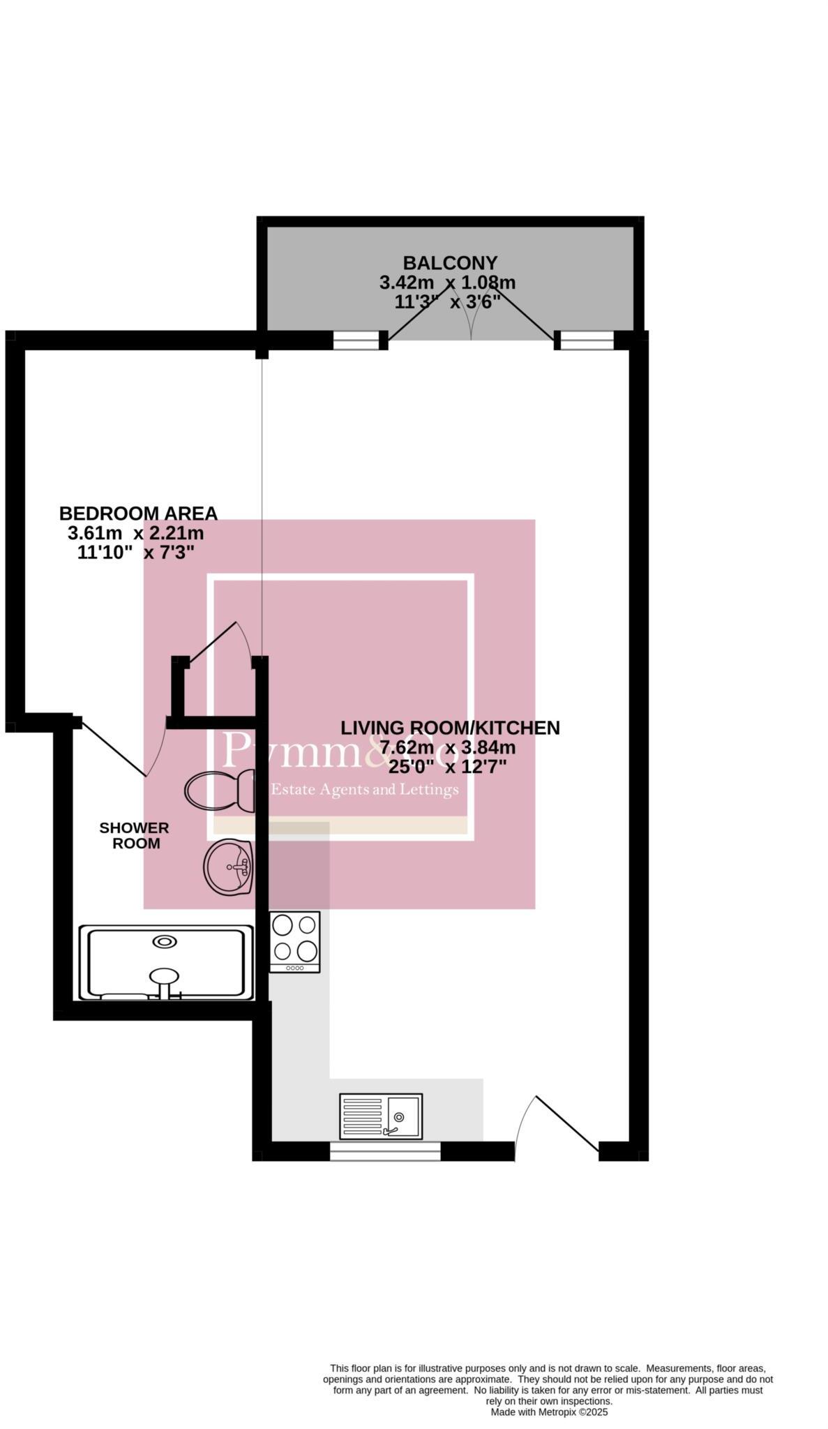
- Spacious 24'7" x 10'6" living area with contemporary design
- Good size balcony with fantastic city views
- Double glazing and electric underfloor heating
- Excellent location near amenities and transport links
- Affordable price at £115,000 with low council tax and reasonable ground rent
This modern studio apartment offers an ideal opportunity for first-time buyers or as a buy-to-let investment. Nestled in a vibrant neighborhood just off Carrow Road, the property features a well-designed living space that combines a spacious living area with an open-plan kitchen and ample storage. The balcony provides stunning views, perfect for enjoying morning coffee or relaxing after a long day.
With local amenities including the Riverside Leisure Complex and the bustling city center within walking distance, residents enjoy convenient access to restaurants, bars, and recreation—perfect for a cosmopolitan lifestyle. The apartment is well-maintained, featuring double glazing for energy efficiency and electric underfloor heating for year-round comfort.
Although the area has a high crime rate, its overall affluent nature and excellent transport links make it highly attractive. The opportunity to invest in a sought-after locality while enjoying modern living should not be missed; act fast as properties of this caliber in prime locations are rarely available for long!
1 bedroom apartment for sale in Allison Bank, Norwich, NR1 — £90,000 • 1 bed • 1 bath • 431 ft²
1 bedroom flat for sale in Geoffrey Watling Way, Norwich, NR1 — £117,500 • 1 bed • 1 bath • 345 ft²
Studio flat for sale in St Ann Lane, Norwich, NR1 — £150,000 • 1 bed • 1 bath • 412 ft²
1 bedroom flat for sale in Robinson Bank, Geoffrey Watling Way., NR1 — £150,000 • 1 bed • 1 bath • 534 ft²
1 bedroom apartment for sale in Ashman Bank, Norwich, NR1 — £140,000 • 1 bed • 1 bath • 511 ft²
2 bedroom apartment for sale in Ashman Bank, Norwich, NR1 — £220,000 • 2 bed • 1 bath • 720 ft²






































































































































