Comfortable, low-maintenance living with strong on-site support and landscaped gardens.
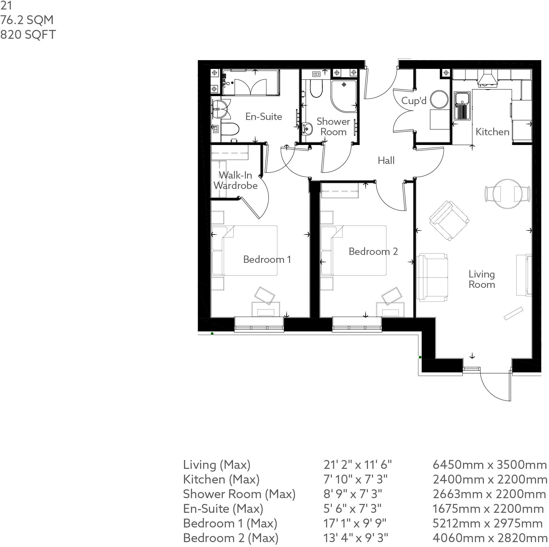
- First-floor two-bedroom apartment, 76.2 sqm (approx. 820 sq ft)
- Built 2020 with modern fitted kitchen and integrated appliances
- 24/7 emergency call system and video door entry for safety
- On-site house manager (Mon–Fri) and weekly communal activities
- Large landscaped communal gardens and residents' lounge
- Long lease remaining (997 years) — secure long-term tenure
- Main heating via electric room heaters (no gas central heating)
- Local crime rate above average; council tax band not provided
This first-floor two-bedroom retirement apartment in Stane House offers bright, low-maintenance living with a neutral palette and modern finishes. The open-plan living area and fully fitted kitchen create an inviting social space, while the master bedroom and flexible second room suit guests, hobbies or a home study.
Residents benefit from on-site support and community life — a house manager Monday to Friday, weekly activities, a communal lounge and extensive landscaped gardens for socialising. Safety features include a 24/7 emergency call system and video door entry for added peace of mind.
Practical details support long-term ownership: a long lease (997 years) and no flood risk. Note the property uses electric room heaters rather than gas central heating, council tax band is not provided, and the local crime rate is above average. The location gives easy access to Chelmsford, Stansted Airport and Braintree Freeport for shopping and travel.
1 bedroom retirement property for sale in 77 High Street,
Dunmow,
CM6 1AE, CM6 — £289,995 • 1 bed • 1 bath • 563 ft²
1 bedroom retirement property for sale in 77 High Street,
Dunmow,
CM6 1AE, CM6 — £284,995 • 1 bed • 1 bath • 592 ft²
2 bedroom apartment for sale in Stortford Road, Dunmow, CM6 — £325,000 • 2 bed • 2 bath • 728 ft²
2 bedroom apartment for sale in Brignall Place, Dunmow, Essex, CM6 — £265,000 • 2 bed • 2 bath • 775 ft²
2 bedroom apartment for sale in Haslers Lane, Dunmow, CM6 — £185,000 • 2 bed • 1 bath • 591 ft²
1 bedroom apartment for sale in Shire House, Weavers Close, Dunmow, CM6 — £170,000 • 1 bed • 1 bath • 407 ft²


















































































