Ready-to-build rural plot near Peterhead ideal for owner-build or small developer.
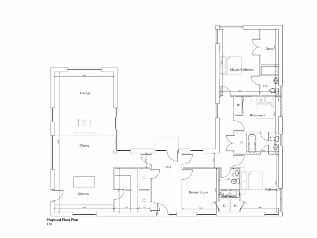
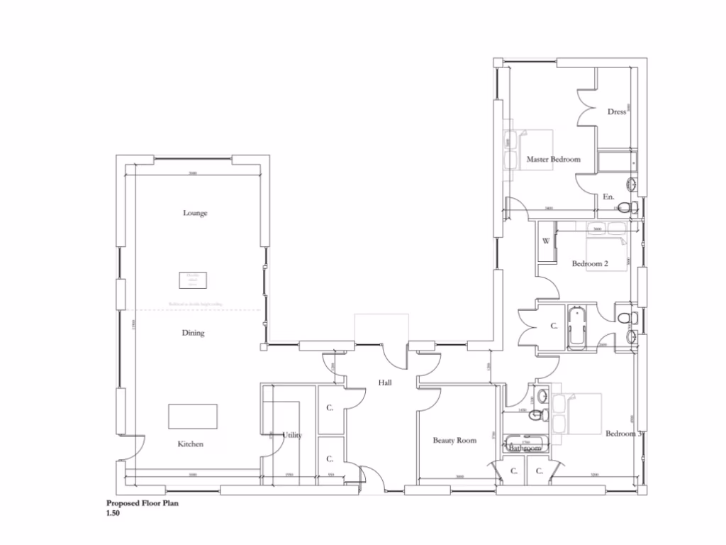
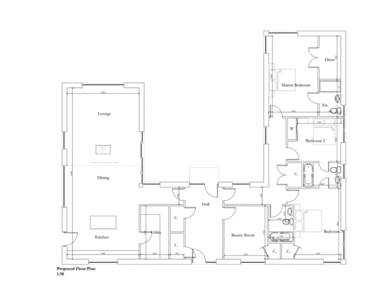
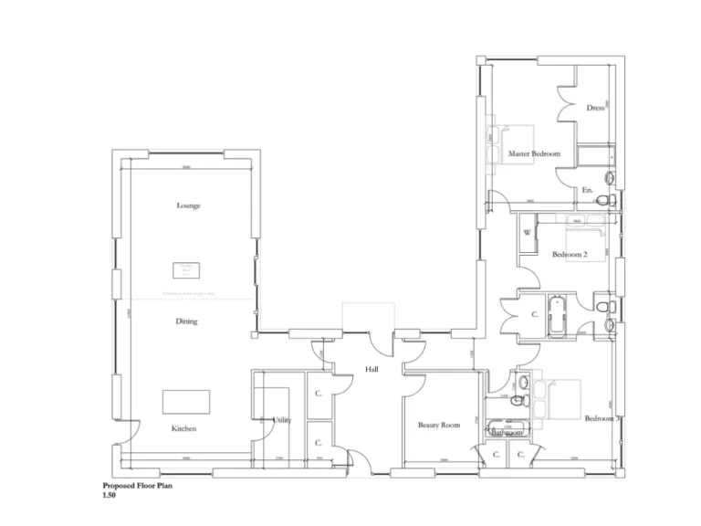
0.5-acre freehold plot with full planning permission (APP/2021/1005)
Approved for dwelling with access, parking and garden ground
Guide price £65,000; will be sold at timed online auction
Excellent mobile signal; clear flood-risk status (No Risk)
Very slow broadband and limited digital infrastructure
Area classified as very deprived; rural remoteness may limit amenities
Nearby comparables sold significantly higher, showing value potential
Buyer must verify services, boundaries and build costs pre-auction
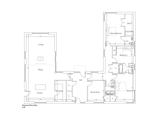
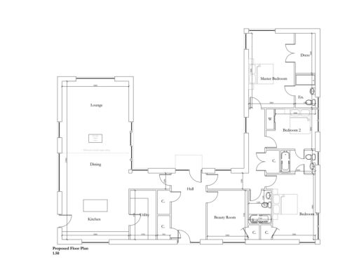
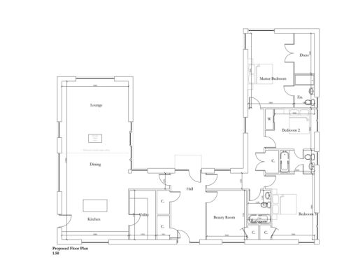
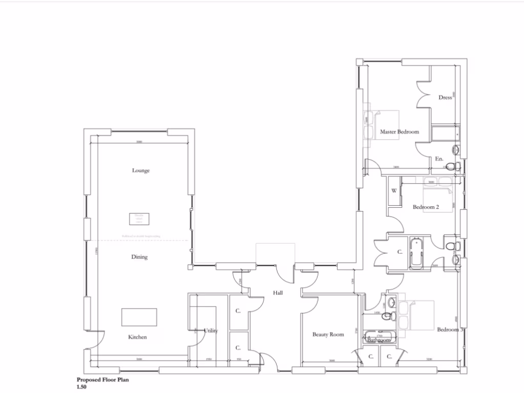
This substantial 0.5-acre freehold plot in Flushing, Longside, comes with full planning permission (Planning Ref: APP/2021/1005) for a new dwelling with associated access, parking and garden ground. The size and planning consent make it a straightforward opportunity for an owner-builder or small developer to deliver a detached home in a quiet rural setting close to Peterhead.
The plot benefits from excellent mobile signal and a clear flood-risk record, and nearby sales evidence indicates strong value uplift for developed parcels in the area. The site’s countryside location offers privacy and space for landscaping, parking and garden amenity — attractive for buyers wanting a rural retreat within reach of local towns.
Buyers should note practical constraints: the area records very slow broadband and is classified as very deprived, which may affect some occupiers and resale premium. The land will be sold at auction, so purchasers should be prepared to complete under auction conditions and verify service connections, site boundaries and build costs before bidding.
Overall this is a commercially and practically clear plot with approved consent and substantial development potential, best suited to someone comfortable delivering a new build in a remote rural location.
 Land for sale in Land at Flushing, Longside, Peterhead, AB42 4XS, AB42 — £70,000 • 1 bed • 1 bath • 1164 ft²
 Land for sale in Land at Flushing, Longside, Peterhead, AB42 4XS, AB42 — £70,000 • 1 bed • 1 bath • 1164 ft² Land for sale in Site at Leask Avenue, Peterhead, AB42 2XE, AB42 — £45,000 • 1 bed • 1 bath
 Land for sale in Site at Leask Avenue, Peterhead, AB42 2XE, AB42 — £45,000 • 1 bed • 1 bath Land for sale in Site at Leask Avenue, Peterhill, AB42 2XE, AB42 — £60,000 • 1 bed • 1 bath
 Land for sale in Site at Leask Avenue, Peterhill, AB42 2XE, AB42 — £60,000 • 1 bed • 1 bath Plot for sale in Plot At Burnside Of Craigellie, Lonmay, Fraserburgh, Aberdeenshire, AB43 — £65,000 • 4 bed • 1 bath • 1256 ft²
 Plot for sale in Plot At Burnside Of Craigellie, Lonmay, Fraserburgh, Aberdeenshire, AB43 — £65,000 • 4 bed • 1 bath • 1256 ft² Land for sale in Site of former Willowbank Cottage, Auchnagatt, Ellon, Aberdeenshire, AB41 — £45,000 • 1 bed • 1 bath
 Land for sale in Site of former Willowbank Cottage, Auchnagatt, Ellon, Aberdeenshire, AB41 — £45,000 • 1 bed • 1 bath Land for sale in Building plots  Nether Aden, Mintlaw, AB42 5BS, AB42 — £95,000 • 1 bed • 1 bath
 Land for sale in Building plots  Nether Aden, Mintlaw, AB42 5BS, AB42 — £95,000 • 1 bed • 1 bath


















































































