Charming central flat with conversion potential for buyers or landlords.
Grade II listed first-floor flat with period features and stained glass
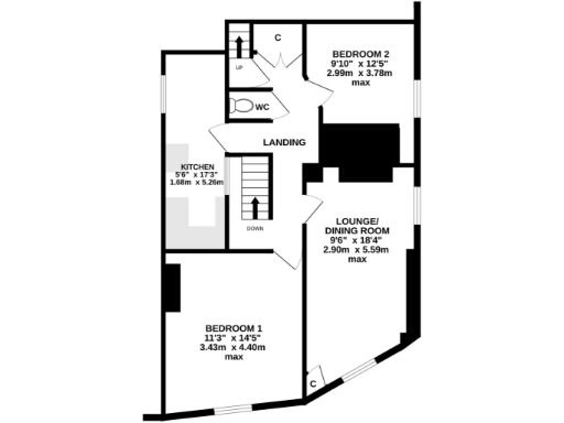
Compact 553 sq ft layout; two doubles, potential third-bedroom attic
Offered chain-free and presented in good decorative order throughout
Leasehold tenure; listed status will restrict alterations
Electric storage heaters; likely higher heating/running costs
Solid brick walls assumed uninsulated — potential retrofit costs
Located in town centre with fast broadband and excellent mobile signal
Above-average local crime rate; consider security and insurance implications
Set in the heart of Launceston, this Grade II listed first-floor flat combines period character with town-centre convenience. The dual-aspect lounge/dining room, sash windows and stained glass give genuine charm, while the compact fitted kitchen and built-in storage make efficient use of the 553 sq ft layout.
Currently configured as two double bedrooms with a large top-floor bathroom and an attic area previously used as a bedroom, the flat offers scope for a third bedroom or extra storage (headroom restricted). It is offered chain-free and presented in good decorative order, making it ready to occupy or let quickly.
Buyers should note this is a leasehold property in a listed building — any alterations will be restricted and may require listed-building consent. Heating is by electric storage heaters and the building has solid brick walls with no known insulation, which could mean higher running costs and potential upgrading work.
This is a practical option for first-time buyers seeking central town living or investors looking for a characterful rental close to local amenities and good broadband. Its small overall size and town-centre location suit those prioritising convenience over large living spaces.
2 bedroom flat for sale in Church Stile Flats, Launceston, PL15 — £115,000 • 2 bed • 1 bath • 560 ft²
3 bedroom maisonette for sale in Church Street, Launceston, Cornwall, PL15 — £120,000 • 3 bed • 1 bath • 926 ft²
1 bedroom flat for sale in Westgate Street, Launceston, PL15 — £99,950 • 1 bed • 1 bath • 517 ft²
2 bedroom apartment for sale in Kensey Place, Launceston, Cornwall, PL15 — £145,000 • 2 bed • 2 bath • 835 ft²
2 bedroom terraced house for sale in Castle Street, Launceston, Cornwall, PL15 — £175,000 • 2 bed • 1 bath • 587 ft²
2 bedroom apartment for sale in Tower Street, Launceston, Cornwall, PL15 — £100,000 • 2 bed • 1 bath • 3362 ft²






























































