Spacious family home with huge plot and extension potential.
Three double bedrooms ideal for family use
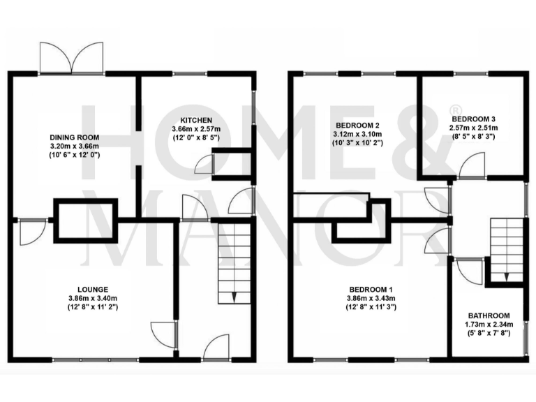
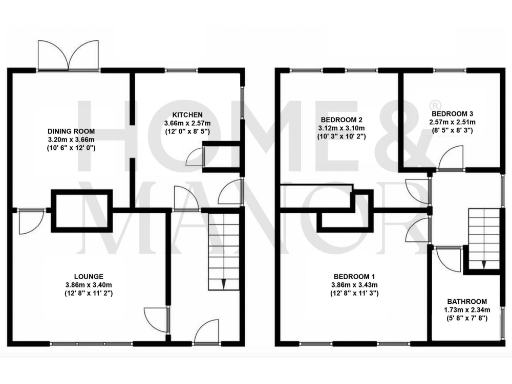
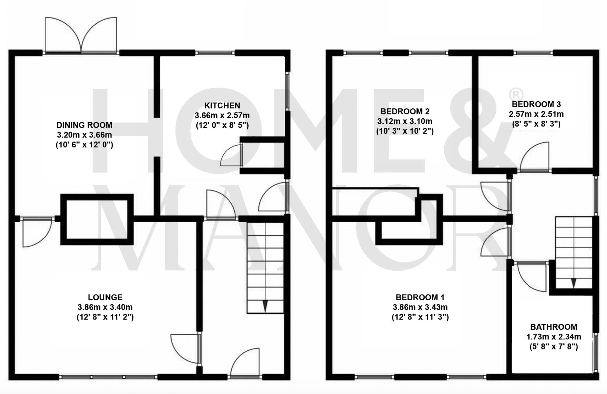
This well-presented three double-bedroom semi-detached house on Turnshaw Avenue offers comfortable family living on a notably large plot. The house is freehold, double-glazed and heated by a mains-gas boiler and radiators, with practical accommodation across an average-sized footprint of about 969 sqft. A private landscape garden, detached garage and off-street driveway give useful outdoor and storage space for families.
The location suits families and professionals: local primary and secondary schools are rated Good to Outstanding nearby, and the village provides everyday amenities including a pub, post box and woodland nearby. Mobile signal is excellent and broadband speeds are fast, supporting home working and study. There is no flood risk and council tax is very low.
A clear opportunity is the plot size: there is scope, subject to planning, for a double-storey extension to both the rear and side. That potential will appeal to buyers who want to add space or increase value. Practical points to note — the property has a single bathroom, and while presented nicely, buyers should confirm details such as glazing installation dates and any works required before altering the building.
Overall this ready-to-live-in house gives immediate family comfort with realistic scope for expansion. It will suit growing families seeking strong local schools, commuting convenience and room to adapt the home over time.
3 bedroom semi-detached house for sale in Garner Lane, Highburton, Huddersfield, Kirklees, HD8 — £350,000 • 3 bed • 2 bath • 1041 ft²
3 bedroom town house for sale in Birkhead Close, Kirkburton, HD8 — £325,000 • 3 bed • 2 bath • 1163 ft²
3 bedroom semi-detached house for sale in Elm Court, Kirkburton, HD8 — £270,000 • 3 bed • 1 bath • 872 ft²
3 bedroom semi-detached house for sale in Burton Acres Mews, Highburton, HD8 0RE, HD8 — £250,000 • 3 bed • 1 bath • 862 ft²
3 bedroom semi-detached house for sale in Southlands, Kirkheaton, HD5 — £325,000 • 3 bed • 2 bath • 850 ft²
2 bedroom terraced house for sale in Turnshaw Avenue, Kirkburton, HD8 — £240,000 • 2 bed • 1 bath • 753 ft²














































































































