Large plot with garage, parking and family-sized living near good schools.
Five double bedrooms with potential to create a sixth bedroom
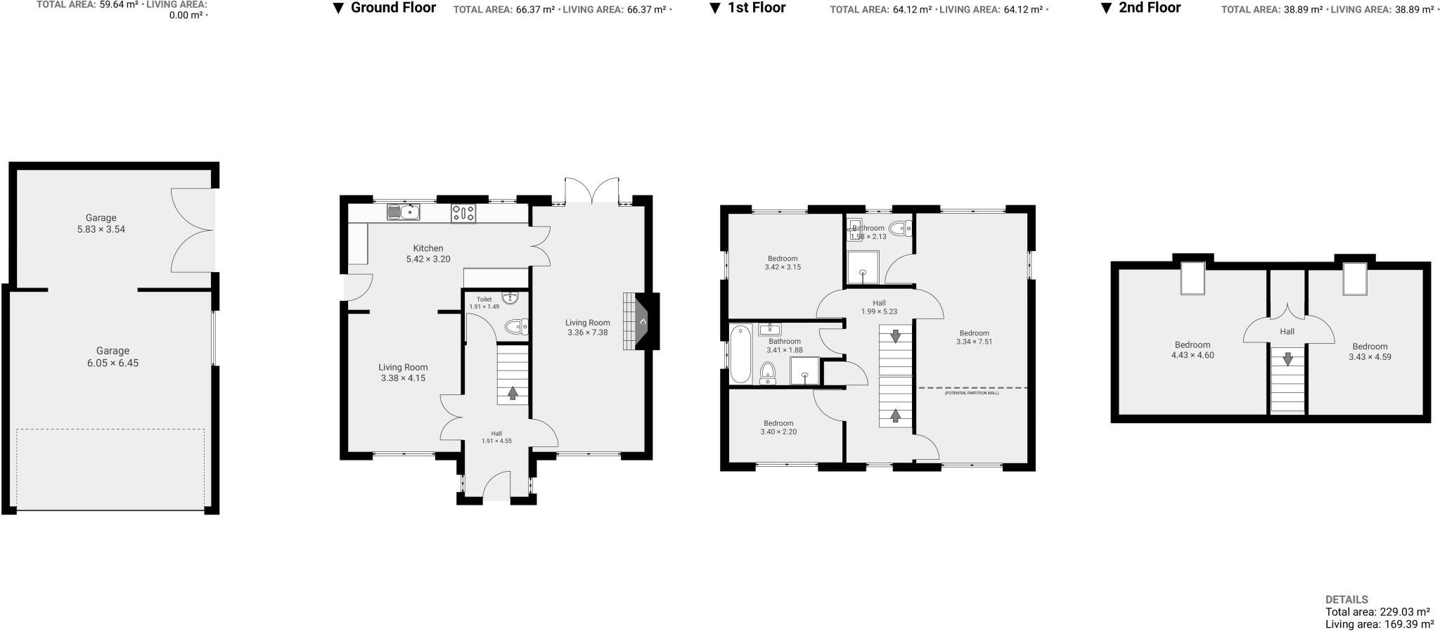
Russell Cottage is a modern stone-built detached family home in Rawdon’s sought-after "Little London" area. The house offers generous living space over multiple levels, highlighted by a dual-aspect living room with a solid-fuel stove and an open-plan kitchen-dining area that suits everyday family life and entertaining.
Five double bedrooms provide flexible sleeping arrangements, with the dual-aspect master suite including an en suite and the layout offering straightforward potential to create a sixth bedroom if required. The property sits on a large plot with an enclosed, low-maintenance astro-turf rear garden, a substantial drive providing plentiful parking and a large detached garage with power, light, electric door and water — convenient as storage or a potential home-office conversion (subject to planning and building regs).
Practical comforts include zoned gas central heating with a modern boiler, double glazing and good broadband and mobile coverage. The location is strong for families and professionals: local good-rated primary schools, easy access to Apperley Bridge rail links into Leeds, nearby parks, pubs and community amenities add everyday convenience.
Notable considerations: council tax is expensive, and any works to convert the garage will need the usual planning approvals and building regulations. The property is presented well but sits in an affluent, sought-after neighbourhood where demand is high; an early viewing is recommended to appreciate the size and potential.
3 bedroom character property for sale in Micklefield Lane, Rawdon, Leeds, LS19 — £550,000 • 3 bed • 2 bath • 1527 ft²
4 bedroom detached house for sale in Gladstone Crescent, Rawdon, Leeds, West Yorkshire, LS19 — £995,000 • 4 bed • 4 bath • 2065 ft²
4 bedroom detached house for sale in Whitelands, Rawdon, Leeds, West Yorkshire, LS19 — £500,000 • 4 bed • 2 bath • 1541 ft²
5 bedroom detached house for sale in Layton Mount, Rawdon, Leeds, West Yorkshire, LS19 — £745,000 • 5 bed • 3 bath • 2430 ft²
5 bedroom detached house for sale in Belmont Grove, Rawdon, Leeds, LS19 — £800,000 • 5 bed • 5 bath • 2976 ft²
4 bedroom detached house for sale in Springwood Road, Rawdon, Leeds, West Yorkshire, LS19 — £450,000 • 4 bed • 2 bath • 2988 ft²


































































































































































