Chain-free, well-equipped flat close to town amenities and transport links.
First-floor one-bedroom retirement flat, ready to move into
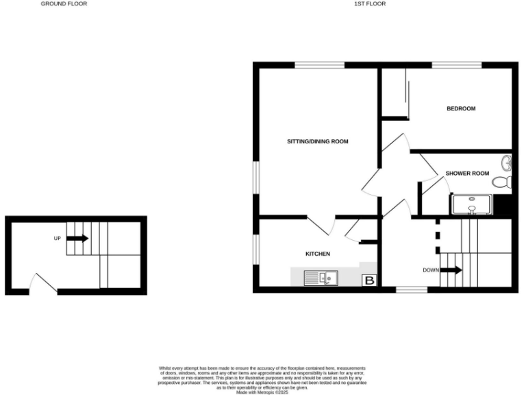
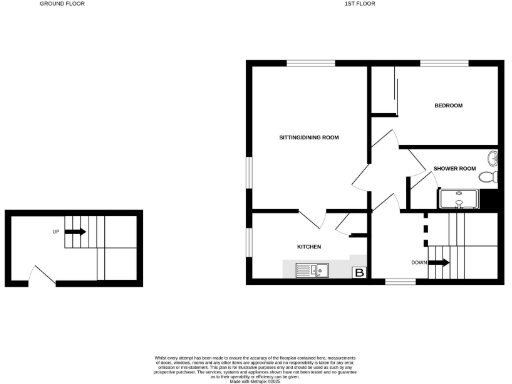
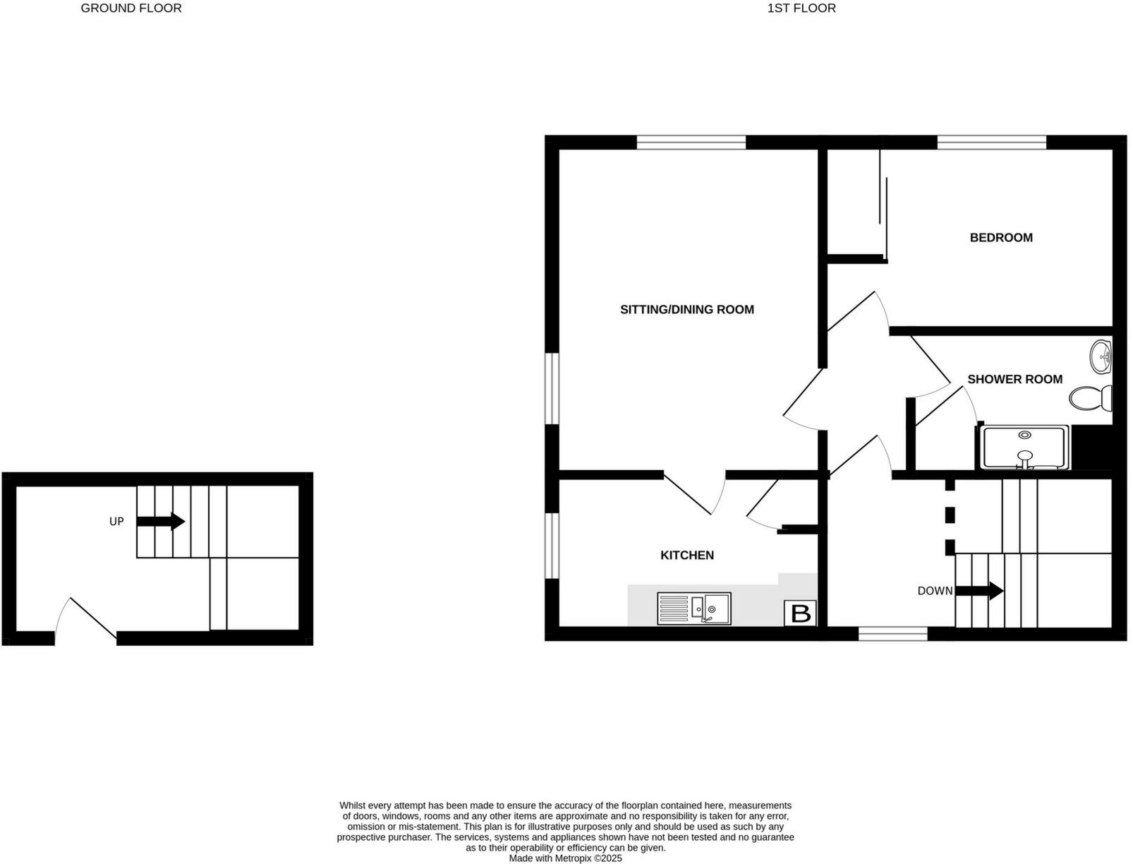
A well-presented first-floor retirement apartment in Bridgeside, ready for immediate occupation and offered chain free. The layout includes a generous sitting/dining room, separate kitchen, double bedroom with built-in cupboards and a roomy shower room — comfortable accommodation for a single person or couple.
The development provides practical onsite facilities: a warden, pull-cord alarms in each room, communal lounge, laundry room, residents’ parking and managed communal gardens. The flat benefits from gas central heating and double glazing, with low-maintenance outdoor space and excellent local amenities including shops and rail links.
Important practical notes: the property is leasehold — lease length, maintenance and ground rent details are to be confirmed. The EPC rating is awaited. Access is to the first-floor via communal stairs, which may be unsuitable for anyone with limited mobility. Council tax is in a low band, and broadband and mobile signals are reported strong.
2 bedroom flat for sale in Victoria Mews, Bridgeside, Deal, Kent, CT14 — £220,000 • 2 bed • 1 bath • 692 ft²
2 bedroom retirement property for sale in Bridgeside, Deal, CT14 — £179,950 • 2 bed • 1 bath • 711 ft²
1 bedroom retirement property for sale in Beechwood Avenue, Deal, CT14 — £159,995 • 1 bed • 1 bath • 560 ft²
1 bedroom retirement property for sale in Beechwood Avenue, Deal, CT14 — £135,000 • 1 bed • 1 bath • 539 ft²
1 bedroom flat for sale in Queen Street, Deal, CT14 — £110,000 • 1 bed • 1 bath • 506 ft²
1 bedroom flat for sale in Queen Street, Deal, CT14 — £105,000 • 1 bed • 1 bath • 442 ft²






































