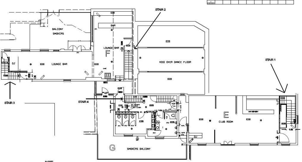
**Standout Features:**
- Established nightlife venue, currently trading as The Source Bar
- Valuable 24-hour trading licence
- Capacity for 600 patrons, with an additional external events licence for 1,300
- Prime location in Maidstone's lively nightlife area, two minutes from top shopping spots
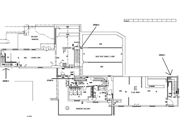
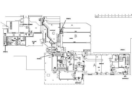
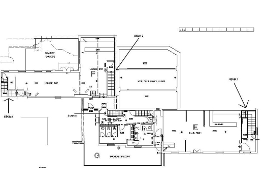
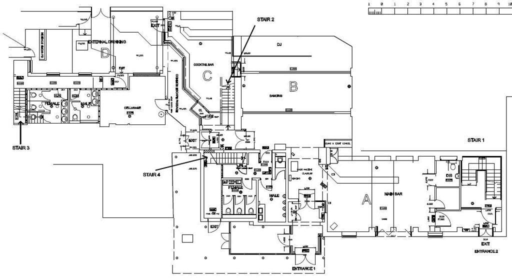
- Two-storey space with multiple bar areas, dance floors, and WC facilities
- Significant Gross Internal Area of nearly 6,500 sq ft across various levels
- Front forecourt included for additional outdoor space or events
**Concise Summary:**
Discover an enticing investment opportunity with this established leisure facility, The Source Bar, located in the bustling heart of Maidstone. This expansive nightclub boasts a versatile two-storey layout, accommodating up to 600 guests inside and 1,300 for outdoor events — perfect for hosting large gatherings and vibrant nightlife entertainment. Currently thriving after 25 years of operation, it features multiple bars, dedicated dance floors, and ample staff facilities.
Situated mere minutes from major shopping destinations and with excellent transport links to London, this property is ideally positioned for easy accessibility. While the venue is in good trading condition, potential buyers should consider any opportunities for aesthetic upgrades or renovations to further enhance its appeal. With a competitive price of £750,000 for the freehold, this opportunity for lucrative returns may not last long — seize your chance to own a central hub for social engagement today!
Restaurant for sale in 42-44 Earl Street, Maidstone, Kent, ME14 1PS, ME14 — POA • 1 bed • 1 bath • 3789 ft²
Commercial property for sale in 9 Gabriels Hill & 14 King Street, Maidstone, Kent, ME15 6HL, ME15 — £1,350,000 • 1 bed • 1 bath • 7736 ft²
Shop for sale in 90 Week Street, Maidstone, Kent, ME14 1RL, ME14 — £575,000 • 1 bed • 1 bath • 2964 ft²
Hotel for sale in Fremlin Walk, Maidstone, ME14 — £4,500,000 • 1 bed • 1 bath • 16146 ft²
Commercial property for sale in Zoo, 23-24 Market Buildings, Maidstone, ME14 1HP, ME14 — £795,000 • 1 bed • 1 bath • 3049 ft²
Restaurant for sale in R-26931 - Sankey's Bar & Kitchen, 39 Mount Ephraim, Tunbridge Wells TN4 8AA, TN4 — £1,500,000 • 1 bed • 1 bath • 5339 ft²






















































