Village living with annexe potential and easy rail commuting to London.
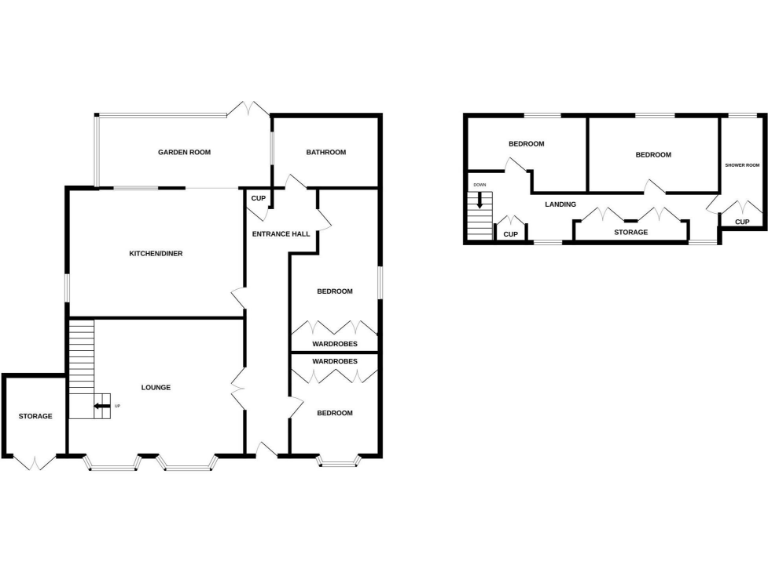
Four bedrooms including two ground-floor bedrooms for accessibility
Large 20'6 lounge and 20'6 fitted kitchen/diner with garden room
Self-contained rear annexe: living space, kitchen, shower room, bedroom
Block-paved in/out driveway with ample off-street parking
Approx 60' enclosed rear garden with patio and shed
Modest overall size ~980 sq ft; compact footprint for a detached house
EPC C, mains gas central heating, Council Tax Band D
Buyers should verify title and any annexe planning or services
Set in quiet Weeley Heath, this detached four-bedroom chalet-style home suits a family seeking village life with easy rail links to London. The ground floor delivers two bedrooms alongside a generous 20'6 lounge and an equally large fully fitted kitchen/diner that opens into a 20'3 garden room — comfortable, practical spaces for daily family living and entertaining.
A notable bonus is the self-contained annexe at the rear, with living space, kitchen, shower room and a bedroom. That annexe offers flexible uses: guest accommodation, home office, or rental income (subject to checks and permissions).
Outside, a block-paved in/out driveway provides ample off-street parking and direct access to a well-enclosed lawned garden of about 60' with a paved patio and shed. The home is presented well and benefits from mains gas heating, double glazing and an EPC rating of C, but overall internal floor area is modest at around 980 sq ft, so buyers should note the compact footprint compared with some detached homes.
Practical matters to confirm during purchase include verification of title and any planning history for the annexe. Council Tax is Band D. The village location offers good primary schools, low local crime and fast broadband/mobile connectivity, making this a solid, versatile family property in a rural community.
4 bedroom detached bungalow for sale in Clacton Road, Weeley Heath, CLACTON-ON-SEA, CO16 — £525,000 • 4 bed • 3 bath • 1604 ft²
4 bedroom chalet for sale in Clacton Road, Weeley Heath, CO16 — £375,000 • 4 bed • 1 bath
4 bedroom detached bungalow for sale in Colchester Road, Weeley, CO16 9, CO16 — £400,000 • 4 bed • 2 bath
4 bedroom detached house for sale in Crow Lane, Weeley, Clacton-on-Sea, Essex, CO16 — £500,000 • 4 bed • 2 bath • 1844 ft²
5 bedroom detached house for sale in Bentley Road, Weeley, CO16 — £695,000 • 5 bed • 4 bath • 3135 ft²
3 bedroom detached house for sale in Second Avenue, Weeley, CO16 — £375,000 • 3 bed • 2 bath • 853 ft²






















































































