Substantial plot, lodge and flexible living close to village amenities and schools.
Large, private landscaped rear garden with paved terraces and pergola
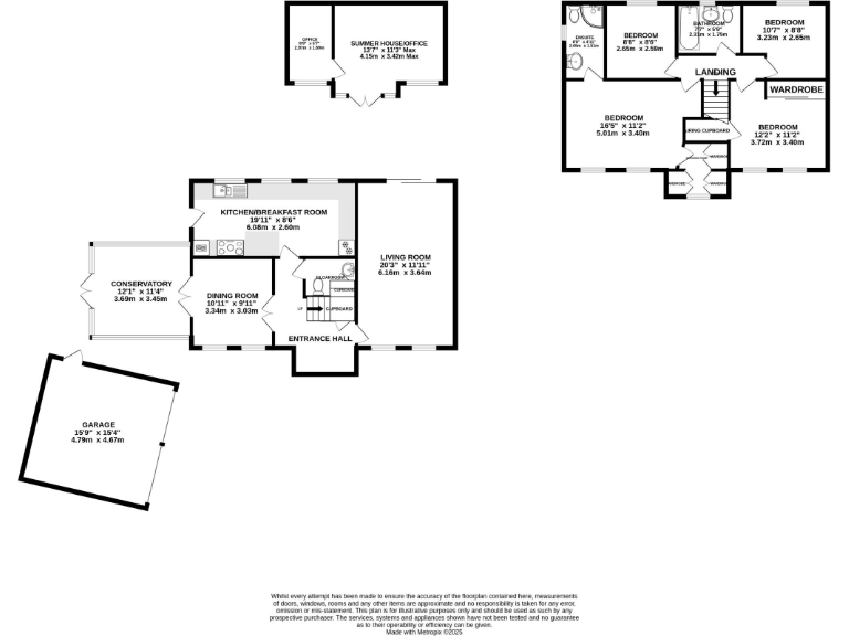
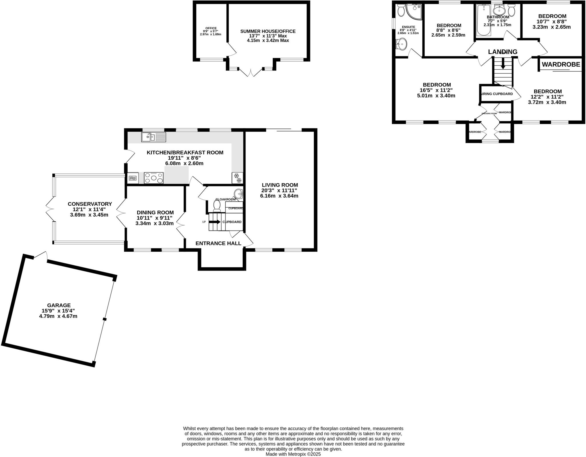
Set on a substantial, private plot in a peaceful village setting, this detached four-bedroom house offers flexible family living with exceptional outdoor amenity. The heart of the home is a double-aspect living room that opens onto the rear garden, supported by a separate dining/family room, conservatory and a well-equipped kitchen/breakfast room with integrated appliances. The generous principal bedroom benefits from a walk-in wardrobe and ensuite.
The large, landscaped rear garden is the property’s standout feature, arranged with lawns, paved terraces, pergola and a heated, insulated garden lodge currently arranged as two home offices. The lodge, greenhouse, raised rockeries and an alfresco ‘Gin Palace’ create versatile outdoor spaces for family life, entertaining or flexible home-working.
Practical points are straightforward: the house was built in the 1980s, has double glazing (install date unknown), mains gas boiler and radiators, an EPC rating of C and council tax band E. The detached double garage and sweeping driveway provide ample parking. While the property is well presented for its age, buyers should expect typical modernisation where preferred and to review service histories for heating and glazing if planning further improvement.
This home will suit families seeking village life with good local schools, generous indoor space and exceptional gardens that support hobbies, home-working and outdoor entertaining.
4 bedroom detached house for sale in Golden Hill Cottages, Hare Lane, Hordle, Hampshire, SO41 — £699,950 • 4 bed • 3 bath • 1700 ft²
Detached house for sale in Kivernell Place, Milford on Sea, Lymington, Hampshire, SO41 — £795,000 • 1 bed • 1 bath • 1394 ft²
4 bedroom detached house for sale in Berryfield Road, Hordle, Hampshire, SO41 — £735,000 • 4 bed • 2 bath • 2087 ft²
4 bedroom detached house for sale in Hare Lane, Hordle, Lymington, Hampshire, SO41 — £699,950 • 4 bed • 3 bath • 1654 ft²
4 bedroom detached house for sale in Middle Road, Sway, Lymington, Hampshire, SO41 — £775,000 • 4 bed • 2 bath • 1738 ft²
5 bedroom detached house for sale in Andrew Lane, Lower Ashley, New Milton, Hampshire, BH25 — £650,000 • 5 bed • 2 bath • 1291 ft²






















































































































