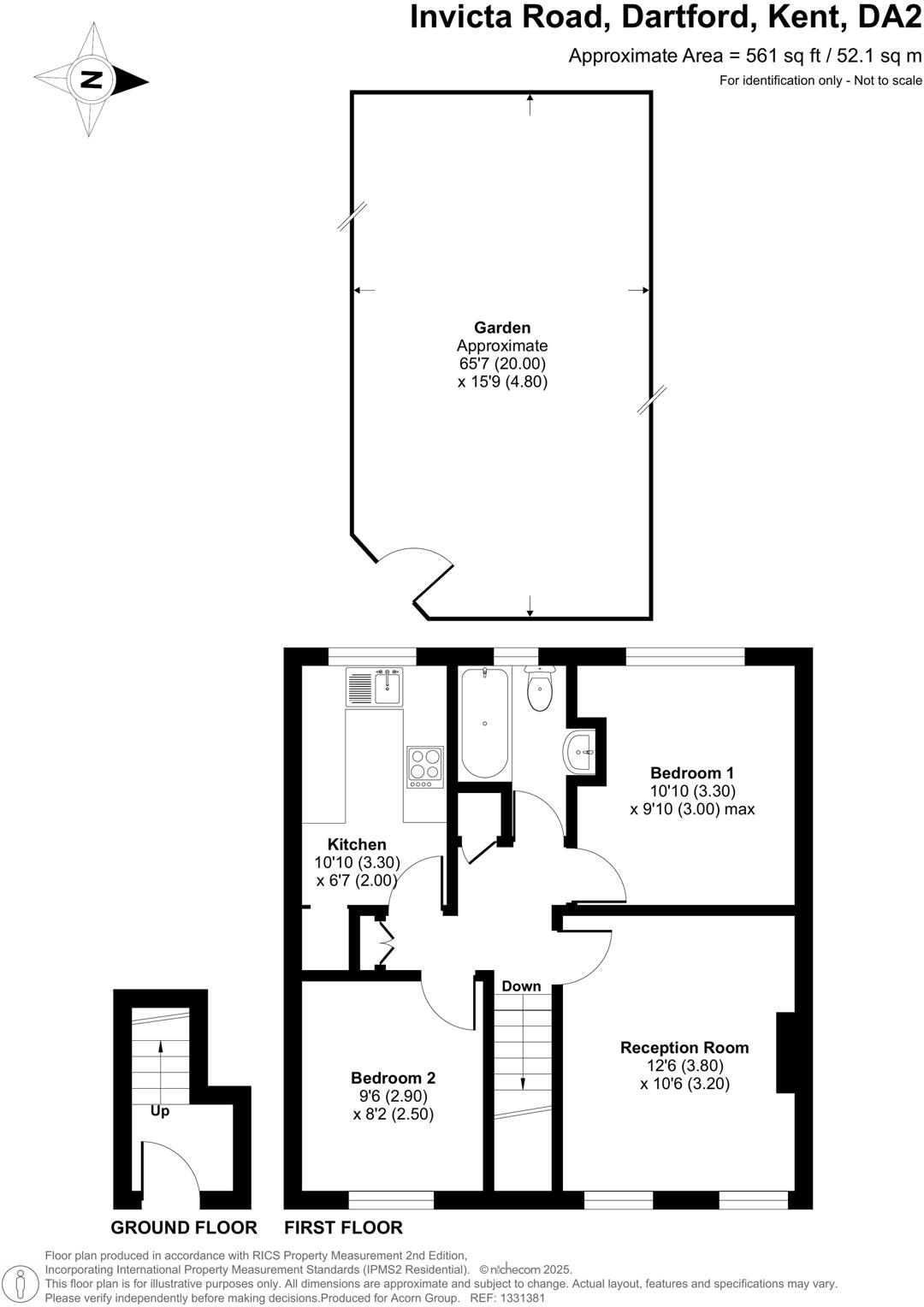
**Standout Features:**
- First-floor maisonette with two spacious bedrooms
- Generous living area and modern kitchen
- On-street parking available (no permit required)
- Well-connected to schools, local amenities, and transport links
- EPC rating: C
- Leasehold with 64 years remaining (potential mortgage issue)
**Overview:**
This delightful first floor maisonette is nestled in a sought-after residential area, making it an attractive option for small families or professionals. Offering two generous bedrooms and a spacious living room that boasts abundant natural light, this property is primed for comfortable living. The modern kitchen is perfect for culinary enthusiasts, while the on-street parking adds a layer of convenience for residents and guests.
While the property is in good condition with no immediate maintenance needs, potential buyers should be aware of the remaining lease term of 64 years, which may pose challenges for securing a mortgage. The location excels with its proximity to high-rated schools and essential local amenities, providing a balanced lifestyle. With average council tax and below-average service charges, this maisonette presents a practical and affordable option in an evolving community. Don’t miss your chance to create your ideal home in this vibrant area; schedule a viewing today!
2 bedroom maisonette for sale in Invicta Road, Dartford, Kent, DA2 — £240,000 • 2 bed • 1 bath • 522 ft²
2 bedroom maisonette for sale in Woodside Lane, Bexley, DA5 — £260,000 • 2 bed • 1 bath • 469 ft²
2 bedroom apartment for sale in Burnham Crescent, Dartford, Kent, DA1 — £100,000 • 2 bed • 1 bath • 393 ft²
2 bedroom maisonette for sale in Kenwyn Road, Dartford, Kent, DA1 — £230,000 • 2 bed • 1 bath • 611 ft²
2 bedroom maisonette for sale in London Road, Greenhithe, Kent, DA9 — £225,000 • 2 bed • 1 bath • 689 ft²
2 bedroom maisonette for sale in Bexley Lane, Crayford, Dartford, DA1 — £265,000 • 2 bed • 1 bath • 742 ft²






































































