Chain-free sale with a long lease
Short walk to West Harrow Tube and recreation park
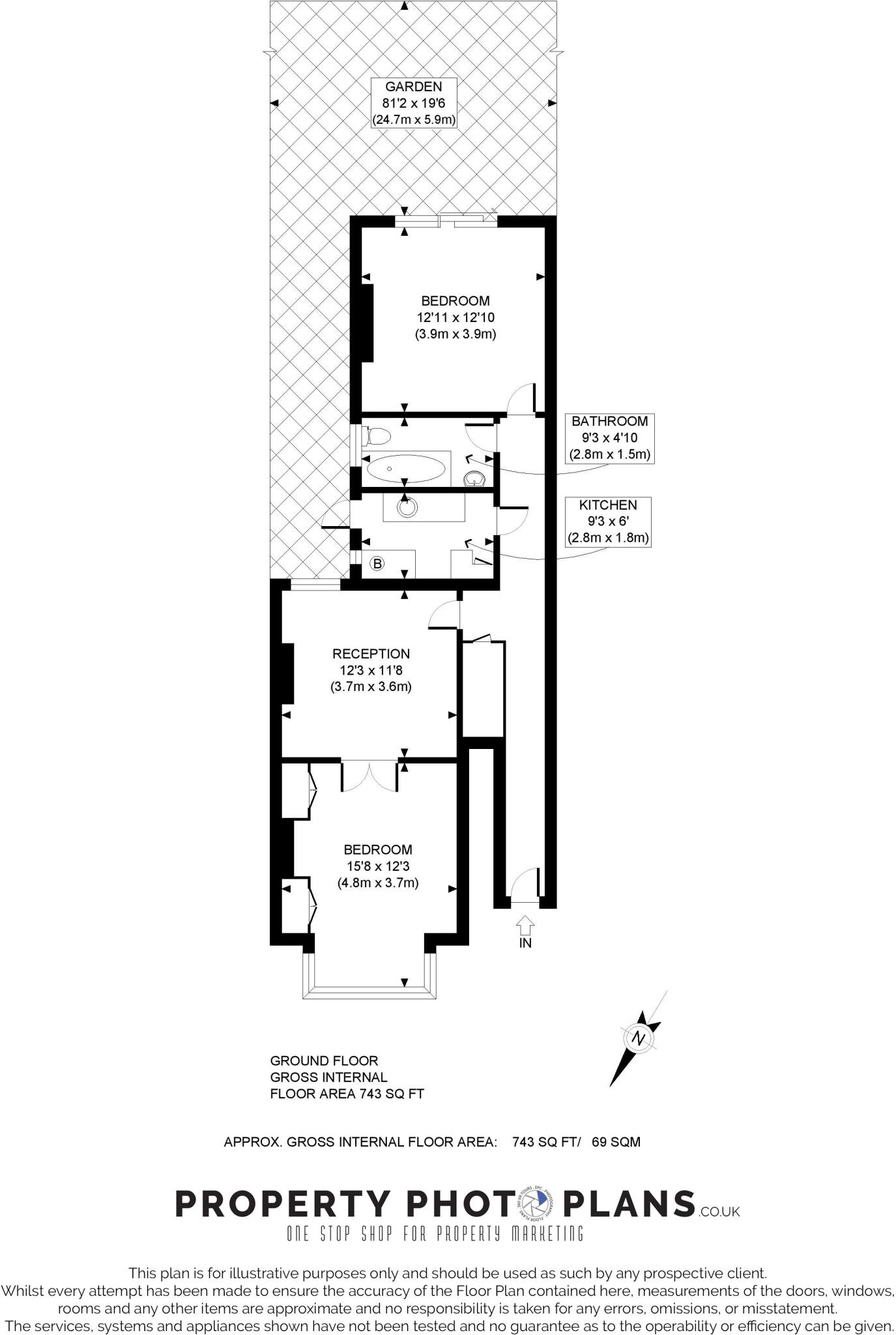
Private rear garden and off-street parking
Modern kitchen and bathroom, ready to occupy
Gas central heating and double glazing installed
EPC rating D — scope to improve energy efficiency
Solid brick construction; likely no cavity insulation
Leasehold tenure — check lease length and service costs
Set on Butler Road, this ground-floor two-bedroom maisonette offers a practical entry into West Harrow living. The flat is chain-free with a long lease, gas central heating, double glazing and a modern kitchen and bathroom — ready to move into for a first-time buyer or commuter.
Location is a clear strength: a short walk to West Harrow Metropolitan line station, local parks and several highly rated schools, making it convenient for commuting and family life. A private rear garden and off-street parking add useful outdoor and storage space rarely found at this price point.
Buyers should note a few material points: the building dates from the early 20th century with solid brick walls (no built-in insulation assumed), and the property currently carries an EPC rating of D. It is leasehold, so purchasers will need to review the lease length and any associated costs. Overall room sizes and the home’s footprint are average for the area, so there may be scope to personalise rather than extend.
For a buyer seeking an affordable, well-located home near transport links and outstanding schools, this maisonette represents straightforward value with clear potential to improve energy performance and personalise interiors over time.
2 bedroom maisonette for sale in Pinner Road, Harrow, HA1 — £350,000 • 2 bed • 1 bath • 616 ft²
2 bedroom maisonette for sale in Butler Road, Harrow, HA1 — £349,950 • 2 bed • 1 bath • 624 ft²
2 bedroom maisonette for sale in Merivale Road, Harrow, HA1 — £267,500 • 2 bed • 1 bath • 470 ft²
2 bedroom flat for sale in Longley Road, Harrow, HA1 — £365,000 • 2 bed • 1 bath • 578 ft²
2 bedroom maisonette for sale in Radnor Road, Harrow, HA1 — £425,000 • 2 bed • 1 bath • 600 ft²
2 bedroom flat for sale in Imperial Close, North Harrow, HA2 — £349,950 • 2 bed • 1 bath • 744 ft²










































