Well-priced central home with scope for updating and rental potential.
Chain free freehold Victorian terrace with two bedrooms
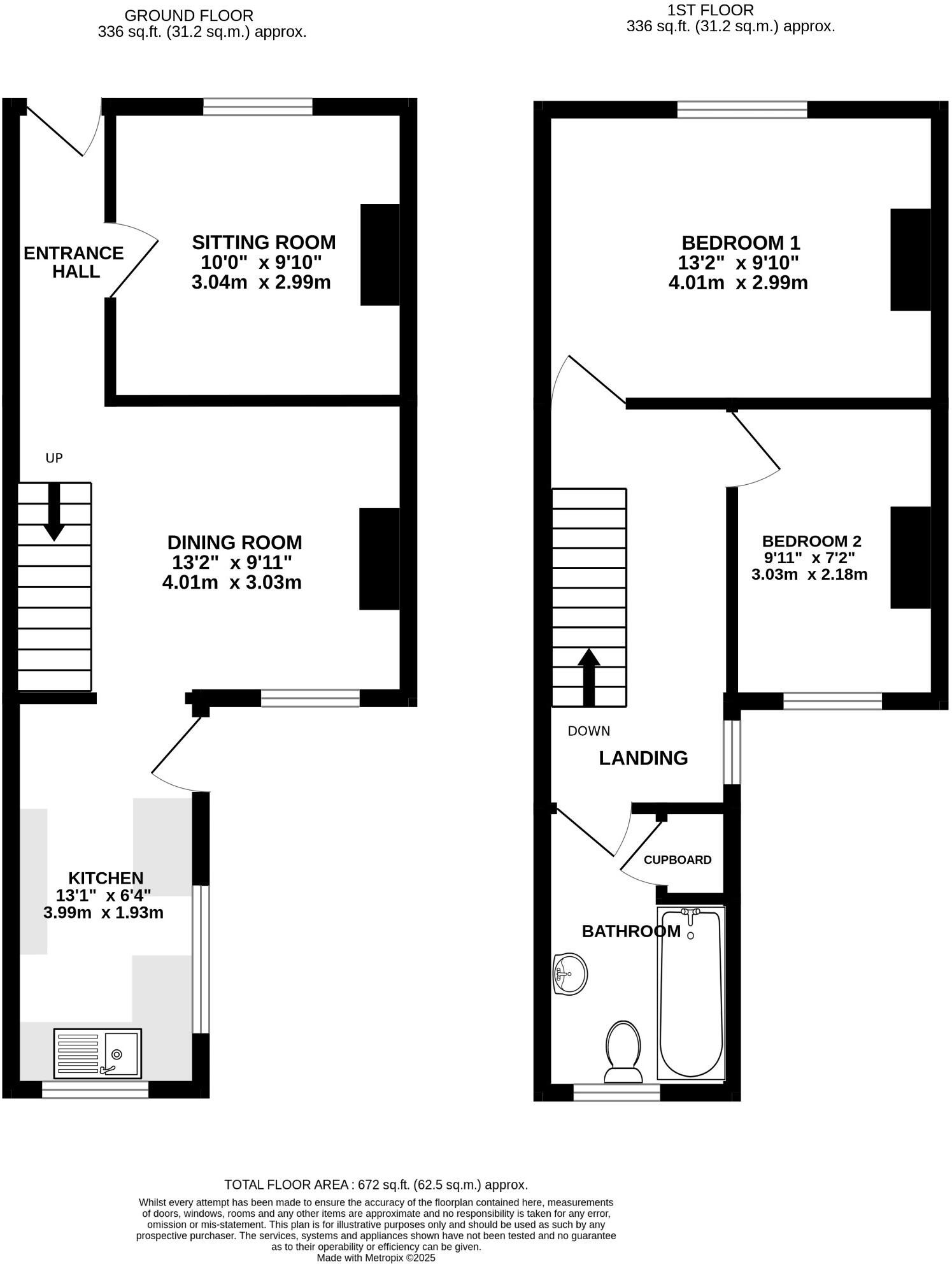
This two-bedroom Victorian terrace on Cobden Street is offered chain free and suits first-time buyers or investors seeking a compact, manageable home. A two-storey rear extension increases usable space, providing sitting and dining rooms plus a 13' kitchen and an enclosed rear garden. The property is freehold and of average overall size (approximately 672 sq ft).
The interior is generally well presented but shows signs of everyday wear; one living room image noted potential mould and some cosmetic wear, so straightforward decorating or remedial cleaning may be needed. There is no current EPC rating available. Services and structural condition are not detailed, so buyers should budget for surveys and any necessary upgrades.
Location is convenient for local amenities, schools and public transport, but the area scores high for deprivation and local crime is above average; this may affect resale expectations and suitability for some buyers. The small plot and modest room sizes reflect the property's urban, Victorian character rather than generous outdoor or living space.
Overall this home offers immediate occupancy with scope to add value through cosmetic updating or targeted refurbishment. It will appeal most to purchasers prioritising price, location and a chain-free purchase over large gardens or modern luxury finishes.
2 bedroom terraced house for sale in St. Anns Crescent, Gosport, PO12 — £210,000 • 2 bed • 1 bath • 748 ft²
2 bedroom terraced house for sale in Prince Alfred Street, Gosport, PO12 — £215,000 • 2 bed • 1 bath • 851 ft²
2 bedroom terraced house for sale in Leesland Road, Gosport, PO12 — £205,000 • 2 bed • 1 bath • 776 ft²
2 bedroom terraced house for sale in Sydney Road, Gosport, PO12 — £235,000 • 2 bed • 1 bath • 849 ft²
2 bedroom terraced house for sale in Ferrol Road, Gosport, PO12 — £195,000 • 2 bed • 1 bath • 819 ft²
2 bedroom terraced house for sale in Bedford Street, Gosport, PO12 — £182,000 • 2 bed • 1 bath • 489 ft²














































