**Standout Features:**
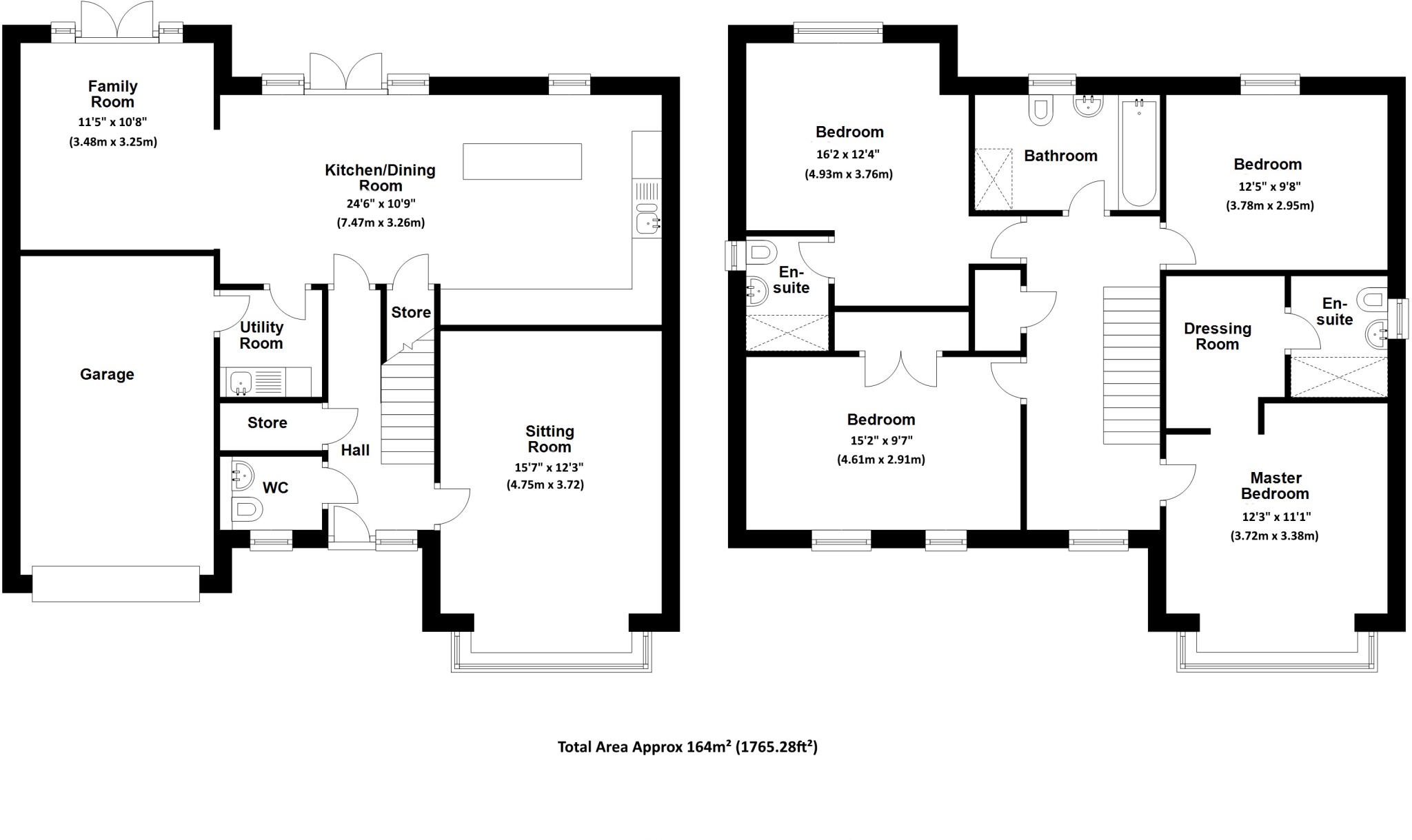
- Detached family home with four double bedrooms
- Open-plan kitchen/dining/family area ideal for modern living
- Spacious garden with privacy and outdoor entertaining space
- Integral garage and off-road parking for multiple vehicles
- Located in a peaceful village with low crime rates
**Summary:**
Discover this stunning four-bedroom detached home, perfectly positioned in a tranquil cul-de-sac on the edge of Felton Village. Built only six years ago, this modern residence boasts an expansive open-plan kitchen/dining/family area, complete with high-quality appliances, inviting ideal spaces for family gatherings and entertaining. The impressive master suite features a walk-in dressing area and en-suite bathroom, while an additional guest bedroom also offers an en-suite for added convenience.
Step outside to enjoy a private rear garden, bordered by open fields, featuring a large patio for alfresco dining and lush lawns. The property includes an integral garage, ample off-road parking, and is situated within a reputable school district—ideal for families. Although the current broadband speeds are fast, mobile signal reception is average, which may require consideration for those reliant on mobile connectivity. 
This home not only encapsulates modern living in a beautiful setting but also has incredible potential for personal touches and updates. With Felton's amenities a short walk away and larger towns like Morpeth and Alnwick just a short drive, this property truly offers a perfect balance of suburban living with accessibility to local conveniences. Don't miss your chance; homes like this in such a desirable area are rare and tend to go quickly!
 2 bedroom semi-detached house for sale in Benlaw Grove, Felton, NE65 — £225,000 • 2 bed • 1 bath • 1046 ft²
 2 bedroom semi-detached house for sale in Benlaw Grove, Felton, NE65 — £225,000 • 2 bed • 1 bath • 1046 ft² 5 bedroom detached house for sale in Main Street, Felton, Northumberland, NE65 — £525,000 • 5 bed • 3 bath • 2214 ft²
 5 bedroom detached house for sale in Main Street, Felton, Northumberland, NE65 — £525,000 • 5 bed • 3 bath • 2214 ft² 3 bedroom detached house for sale in Recreation Lane, Felton, Morpeth, Northumberland, NE65 — £375,000 • 3 bed • 1 bath • 1279 ft²
 3 bedroom detached house for sale in Recreation Lane, Felton, Morpeth, Northumberland, NE65 — £375,000 • 3 bed • 1 bath • 1279 ft² 2 bedroom semi-detached bungalow for sale in Wardle Close, Felton, Morpeth, NE65 — £171,500 • 2 bed • 1 bath • 648 ft²
 2 bedroom semi-detached bungalow for sale in Wardle Close, Felton, Morpeth, NE65 — £171,500 • 2 bed • 1 bath • 648 ft² 3 bedroom terraced house for sale in Main Street, Felton, Morpeth, Northumberland, NE65 — £200,000 • 3 bed • 1 bath • 503 ft²
 3 bedroom terraced house for sale in Main Street, Felton, Morpeth, Northumberland, NE65 — £200,000 • 3 bed • 1 bath • 503 ft² 5 bedroom detached house for sale in Malfin House, Low Close, Felton, Morpeth, Northumberland, NE65 — £725,000 • 5 bed • 4 bath • 2874 ft²
 5 bedroom detached house for sale in Malfin House, Low Close, Felton, Morpeth, Northumberland, NE65 — £725,000 • 5 bed • 4 bath • 2874 ft²










































































































