Large secluded garden, double garage and excellent links to central London..
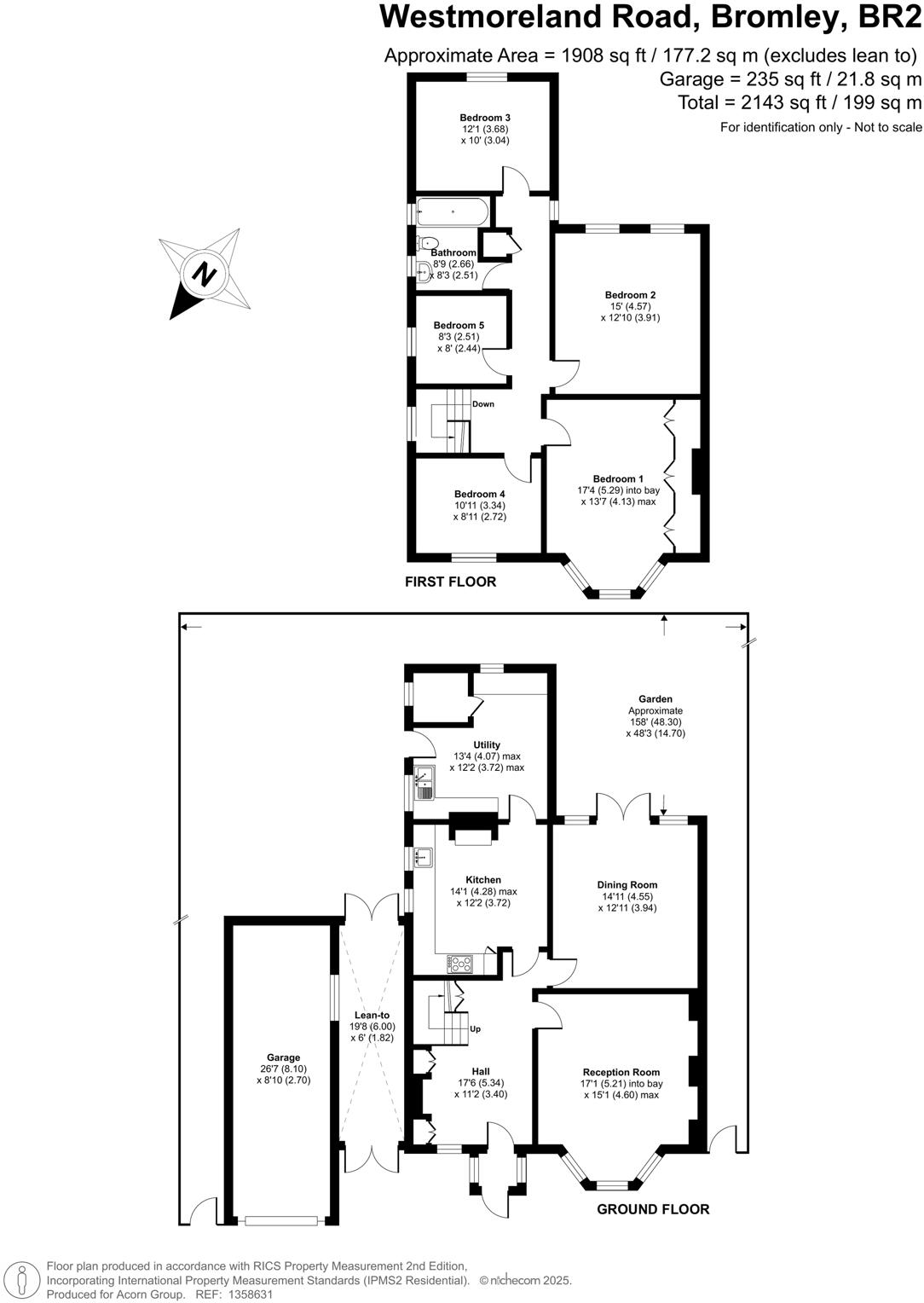
- 2,143 sq ft of period living space over multiple floors
- Five bedrooms and a separate formal dining room
- High-spec fitted kitchen with built-in appliances
- Private, recently landscaped rear garden around 158' long
- Off-street parking for two cars plus double garage
- 0.2 miles to Bromley South station; excellent commuter links
- Solid brick construction; likely no cavity insulation
- Energy rating D and Council Tax Band F (higher running costs)
Set over 2,143 sq ft, this early 20th-century detached house combines original Edwardian detailing with contemporary conveniences. High ceilings, fireplaces and decorative cornicing remain throughout, while a high-spec fitted kitchen and a generous utility room meet modern family needs.
The ground floor offers a grand entrance hall, formal lounge and separate dining room — ideal for entertaining and family living. Upstairs are five well-proportioned bedrooms and a family bathroom/WC. A private, secluded rear garden of approximately 158' has been recently landscaped and provides a peaceful outdoor space.
Practical features include off-street parking for two cars and a double garage. The property sits 0.2 miles from Bromley South station, providing fast frequent services into central London. Nearby schools include several highly regarded primaries and a good secondary school, making the location highly suitable for families.
Buyers should note a few material points: the house is of solid brick construction (likely without cavity insulation), glazing install dates are unknown, and the energy efficiency rating is D. Council Tax is in Band F and local crime rates are above average — factors to consider for running costs and security measures. Overall this is a spacious period home with strong location benefits and clear potential for further improvement.
5 bedroom detached house for sale in Hayes Road, Bromley, BR2 — £1,250,000 • 5 bed • 2 bath • 2646 ft²
4 bedroom semi-detached house for sale in Queen Anne Avenue, Bromley, BR2 — £975,000 • 4 bed • 2 bath • 2058 ft²
7 bedroom detached house for sale in London Lane, Bromley, BR1 — £1,470,000 • 7 bed • 3 bath • 4478 ft²
5 bedroom detached house for sale in Stone Road, Bromley, Kent, BR2 — £2,000,000 • 5 bed • 3 bath • 3100 ft²
5 bedroom detached house for sale in Rodway Road, Bromley, BR1 — £2,250,000 • 5 bed • 2 bath • 4000 ft²
5 bedroom semi-detached house for sale in Kings Avenue, Bromley, BR1 — £1,250,000 • 5 bed • 2 bath • 2452 ft²














































































