Move-in-ready house with conservatory, garage and nearby Good schools.
Three-bedroom detached house in popular Bartons location
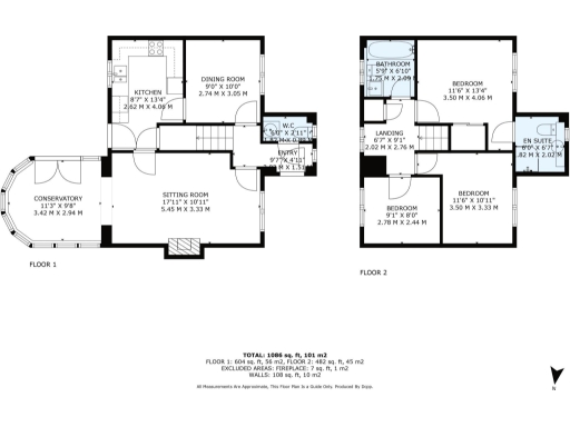
Set on the popular Bartons development, this well-presented three-bedroom detached home suits growing families seeking move-in-ready accommodation. The ground floor offers a separate sitting room, dining room and a modern kitchen, while a newly refurbished conservatory brings extra light and connects directly with the rear garden.
Upstairs the principal bedroom benefits from an ensuite shower and two further bedrooms share a family bathroom. Practical extras include a cloakroom on the ground floor, a driveway, and a single garage — useful for secure parking and storage. Broadband and mobile coverage are strong in this area, and local schools are rated Good.
The rear garden is mainly lawn with two paved patios and planted borders, providing straightforward outdoor space for children or low-maintenance gardening. The house occupies a small plot and is of average internal size (around 1,086 sq ft), so buyers seeking very large gardens or expansive grounds should note the modest outdoor footprint.
Tenure is freehold and there is mains gas central heating. The location benefits from very low crime and a comfortable suburban setting close to local amenities and transport links, making it an appealing family home in a sought-after part of Bury St Edmunds.
2 bedroom end of terrace house for sale in Brackenwood Crescent, Bury St. Edmunds, IP32 — £220,000 • 2 bed • 1 bath • 572 ft²
2 bedroom terraced house for sale in Brackenwood Crescent, Bury St. Edmunds, IP32 — £200,000 • 2 bed • 1 bath • 563 ft²
3 bedroom link detached house for sale in Cranesbill Drive, Bury St. Edmunds, IP32 — £325,000 • 3 bed • 2 bath
4 bedroom detached house for sale in Lyminster Close, Bury St. Edmunds, IP32 — £400,000 • 4 bed • 1 bath • 1206 ft²
3 bedroom detached house for sale in Shackeroo Road, Bury St Edmunds, IP32 7FB, IP32 — £350,000 • 3 bed • 2 bath • 905 ft²
3 bedroom detached house for sale in Eldred Close, Bury St. Edmunds, IP32 — £325,000 • 3 bed • 1 bath • 764 ft²


































































