Fully furnished 6th-floor one-bed with tenant — immediate rental income and long lease..
Tenant in situ providing immediate income
Strong gross yield approx 9% at current rent
Fully furnished; plug-and-play investment
Leasehold with ~995 years remaining
Service charge £1,894.48 (annual) reduces net return
Ground rent £513 per year (not negligible)
Electric room heaters — likely higher running costs
Area: Baltic Triangle, high crime recorded; city-centre demand
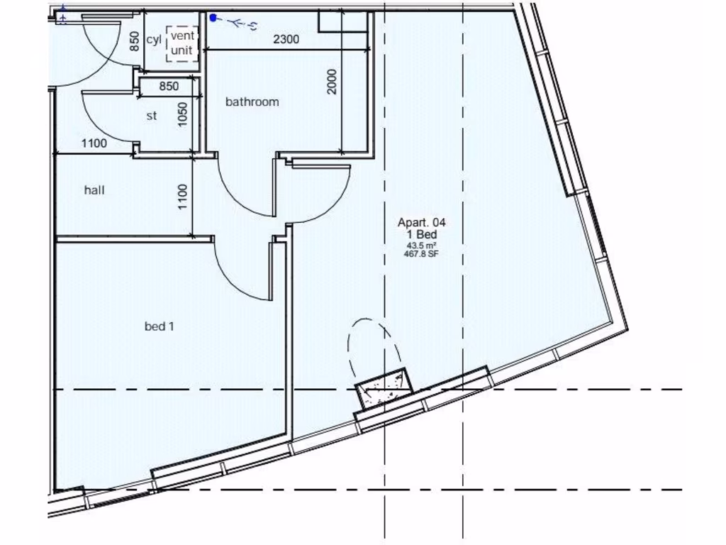
A turnkey one-bedroom apartment on the 6th floor of The Tower, Baltic Triangle, offered with a sitting tenant and immediate rental income. The flat is fully furnished and well-presented with a contemporary open-plan living/kitchen and modern bathroom — ready for a cash buyer seeking a plug-and-play investment.
Financially this unit delivers a strong gross yield (around 9% at the current rent of £900 pcm). The lease is effectively long (circa 995 years remaining), and an EWS1 certificate is in place. Fast broadband and excellent mobile signal support letting to students, young professionals, or hybrid workers in this central location.
Buyers should note the comparatively high annual service charge (£1,894.48) and a ground rent of £513, which reduce net returns. Heating is by electric room heaters rather than gas central heating, which can increase running costs. The wider area is a lively, multicultural student neighbourhood and records higher crime levels; consider tenant profile and insurance accordingly.
Overall this is a straightforward, low-management investment in a popular city-centre quarter, offering immediate income and long-term lease security. It suits cash investors seeking a furnished, let property close to Liverpool’s amenities and transport links.
1 bedroom flat for sale in The Tower, 19 Plaza Boulevard, Liverpool, L8 — £97,000 • 1 bed • 1 bath • 579 ft²
1 bedroom flat for sale in The Tower, 19 Plaza Boulevard, Liverpool, L8 — £99,900 • 1 bed • 1 bath • 645 ft²
1 bedroom property for sale in The Tower, 19 Plaza Boulevard, Liverpool, L8 — £110,000 • 1 bed • 1 bath • 312 ft²
2 bedroom flat for sale in The Tower, 19 Plaza Boulevard, Liverpool, L8 — £205,000 • 2 bed • 2 bath • 624 ft²
2 bedroom flat for sale in The Tower, 19 Plaza Boulevard, Liverpool, L8 — £210,000 • 2 bed • 2 bath • 689 ft²
2 bedroom flat for sale in The Tower, 19 Plaza Boulevard, Liverpool, L8 — £210,000 • 2 bed • 2 bath • 689 ft²


















































