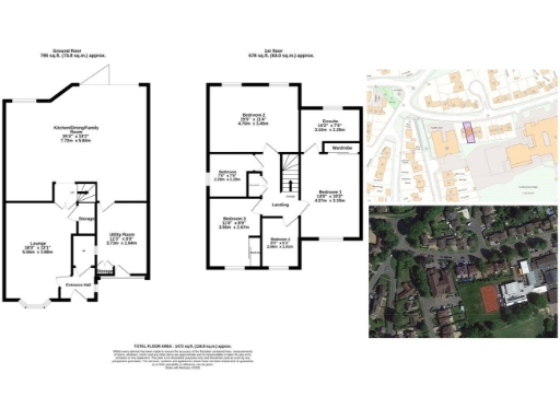
**Standout Features:**
- Extended semi-detached house with modern design
- Four spacious bedrooms, including master with ensuite
- Contemporary kitchen/dining/family area with bifolding doors
- Landscaped, private garden with remote-controlled lighting
- Off-street parking for multiple vehicles
- Energy-efficient underfloor heating 
**Concerns:**
- Average-sized property; may not suit those seeking expansive space
- Broadband speeds are slow
Experience the perfect blend of comfort and contemporary living in this beautifully presented four-bedroom extended semi-detached house in the desirable village of Crawley Down. The heart of this home is its outstanding kitchen/dining/family room, bathed in natural light from bifolding doors and large Velux windows. Enjoy family gatherings or entertaining guests in this spacious area equipped with modern appliances and underfloor heating for added luxury.
With four well-proportioned bedrooms—including a master suite with ensuite—this property offers ample space for families. The landscaped south-facing garden provides an idyllic retreat with a manageable lawn, perfect for outdoor leisure and entertaining. Parking is a breeze with a driveway that accommodates multiple vehicles, and the low crime rate in the area adds an extra layer of security.
Don’t miss out on the opportunity to own this gem in a community that boasts excellent local amenities, including nearby schools with good ratings. While the property is of average size and broadband speeds may be slow, the comforts and conveniences it offers will definitely pique the interest of families and potential investors alike. Schedule your viewing today and envision the possibilities this home holds!
 3 bedroom semi-detached house for sale in Hazel Way, Crawley Down, West Sussex, RH10 — £425,000 • 3 bed • 1 bath • 786 ft²
 3 bedroom semi-detached house for sale in Hazel Way, Crawley Down, West Sussex, RH10 — £425,000 • 3 bed • 1 bath • 786 ft² 3 bedroom semi-detached house for sale in Forest Close, RH10 — £475,000 • 3 bed • 2 bath • 1274 ft²
 3 bedroom semi-detached house for sale in Forest Close, RH10 — £475,000 • 3 bed • 2 bath • 1274 ft² 3 bedroom house for sale in Brookside, Crawley Down, RH10 — £400,000 • 3 bed • 1 bath • 991 ft²
 3 bedroom house for sale in Brookside, Crawley Down, RH10 — £400,000 • 3 bed • 1 bath • 991 ft² 4 bedroom detached house for sale in Underwood Close, Crawley Down, Crawley, RH10 — £525,000 • 4 bed • 1 bath • 1098 ft²
 4 bedroom detached house for sale in Underwood Close, Crawley Down, Crawley, RH10 — £525,000 • 4 bed • 1 bath • 1098 ft² 4 bedroom detached house for sale in Tiltwood Drive, Crawley Down, RH10 — £600,000 • 4 bed • 2 bath • 1441 ft²
 4 bedroom detached house for sale in Tiltwood Drive, Crawley Down, RH10 — £600,000 • 4 bed • 2 bath • 1441 ft² 3 bedroom semi-detached house for sale in Old Station Close, RH10 — £525,000 • 3 bed • 1 bath • 927 ft²
 3 bedroom semi-detached house for sale in Old Station Close, RH10 — £525,000 • 3 bed • 1 bath • 927 ft²


































































































































