Chain-free 3-bed neo-Georgian detached home with garage and underfloor heating in desirable Sawston..
Chain free three-bedroom detached house
Built 2025 — modern specification throughout
Large open-plan kitchen/dining/family room
Underfloor heating to ground floor, ASHP to radiators
Bay-windowed master bedroom with ensuite
Off-road parking for two plus integral garage
Modest rear garden, private and low-maintenance
Council Tax Band E; electric-based running costs
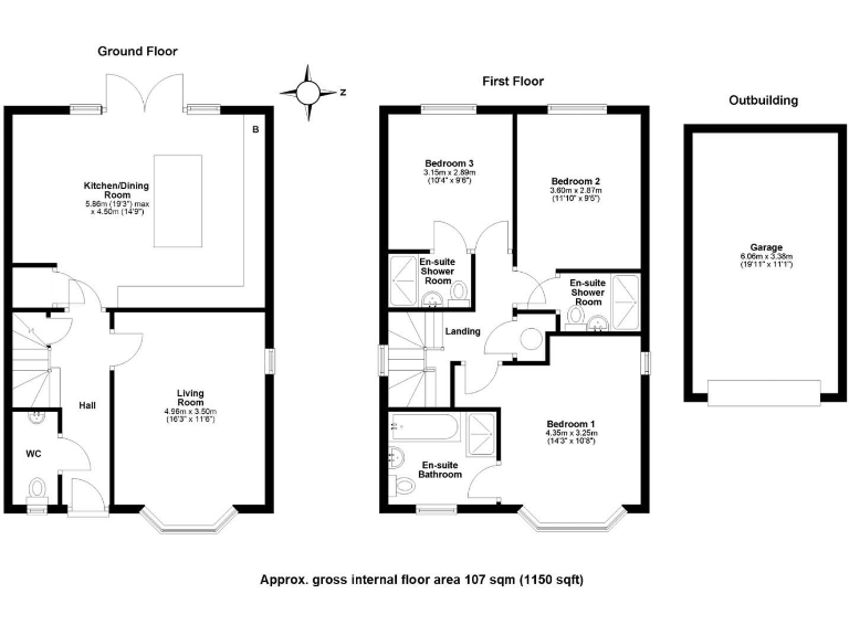
A contemporary three-bedroom detached home built in 2025, offered chain free and finished to a high specification. The ground floor features underfloor heating and a large open-plan kitchen/dining/family room with integrated appliances and direct garden access — ideal for family life and entertaining. The dual-aspect sitting room and bay-windowed master bedroom add natural light and classic proportions.
Practical benefits include off-road parking for two cars, an integral garage with power and light, fast broadband and air source heat pump heating to radiators. The property is freehold with a low annual grounds maintenance fee of £125 and an Energy Performance Certificate rated B (83). Sawston village amenities, good schools and commuter links (near Whittlesford station and M11) suit working families.
Buyers should note this is a new-build home with an above-average council tax band (E) and electric-based main fuel; running costs will depend on electricity tariffs. Plot and garden are private but modest in size. Overall this house will suit families seeking modern, low-maintenance living close to Cambridge, with scope to personalise finishes over time.
4 bedroom detached house for sale in Skylark Way, Sawston, CB22 — £925,000 • 4 bed • 3 bath • 2148 ft²
3 bedroom semi-detached house for sale in Bennett Way, Sawston, CB22 — £450,000 • 3 bed • 3 bath • 1002 ft²
4 bedroom detached house for sale in Pease Close, Tudor Meadow, Sawston, Cambridge, Cambridgeshire, CB22 — £875,000 • 4 bed • 3 bath • 2030 ft²
5 bedroom detached house for sale in Brands View, Wicken Bonhunt, CB11 — £1,395,000 • 5 bed • 3 bath • 3115 ft²
3 bedroom semi-detached house for sale in Bennett Way, Sawston, CB22 — £535,000 • 3 bed • 2 bath • 1161 ft²
3 bedroom detached house for sale in Elfleda Road, Cambridge, CB5 — £825,000 • 3 bed • 2 bath • 1333 ft²


































































































