Six bedrooms, outbuilding and easy access to Acton and Elizabeth Line stations.
- Six bedrooms, three bathrooms across three floors
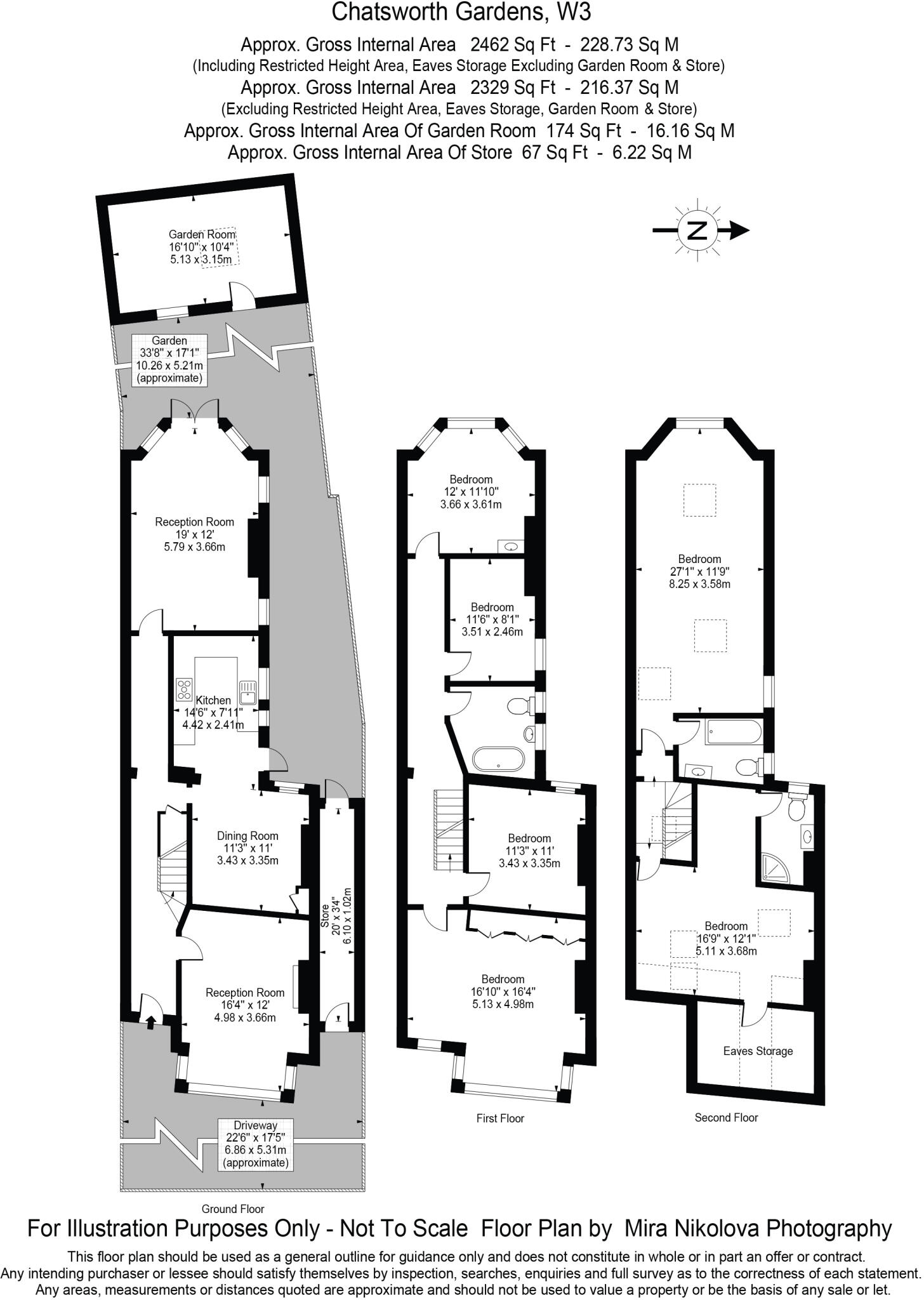
- Over 2,400 sq ft internal living space
- West-facing secluded garden with outbuilding
- Driveway providing multiple off-street parking spaces
- Strong period features: high ceilings, bay window, decorative fireplaces
- Chain free sale for quicker completion
- Solid brick walls assumed no insulation; may need fabric upgrades
- Area records very high crime and notable local deprivation
A substantial six-bedroom period semi-detached house offering over 2,400 sq ft across three floors, presented chain-free and ready for a growing family. High ceilings, bay windows and decorative fireplaces retain strong period character, while a large eat-in kitchen and two reception rooms give flexible living and entertaining space.
Practical benefits include off-street parking for multiple cars, a secluded west-facing rear garden with outbuilding, and excellent links to Acton Town, Ealing Common and Acton Main Line (Elizabeth Line) stations. Several highly rated primary and secondary schools lie within easy reach.
The property sits in an inner-city, diverse neighbourhood and faces material considerations: the area records very high crime levels and overall local deprivation. The house is solid-brick (original construction) with assumed no cavity insulation and double glazing fitted post-2002—further fabric improvements and modernisation could be needed. Council tax is quite expensive. These factors affect running costs and may warrant investment to improve thermal performance and security.
6 bedroom semi-detached house for sale in Chatsworth Gardens, London, W3 — £1,500,000 • 6 bed • 4 bath • 3000 ft²
6 bedroom semi-detached house for sale in King Edwards Gardens, Ealing, London, W3 — £1,750,000 • 6 bed • 4 bath • 2363 ft²
6 bedroom semi-detached house for sale in Heathfield Road, Acton, W3 — £1,650,000 • 6 bed • 2 bath • 2237 ft²
5 bedroom detached house for sale in Rosemont Road, London, W3 — £1,375,000 • 5 bed • 2 bath • 2189 ft²
4 bedroom semi-detached house for sale in Glendun Road, Acton, W3 — £1,595,000 • 4 bed • 3 bath • 2161 ft²
6 bedroom semi-detached house for sale in Buxton Gardens, Acton, W3 — £1,800,000 • 6 bed • 3 bath • 2300 ft²










































































